相模原市南区大野台3丁目
横浜線 古淵駅 バス14分 大野台中央小入口 停歩5分
2LDK
建物面積:80.1㎡
土地面積:82.44㎡
2001年06月築
3,350万円



| 物件種別 | 中古戸建 |
| 所在地 | GoogleMaps |
| 交通 | |
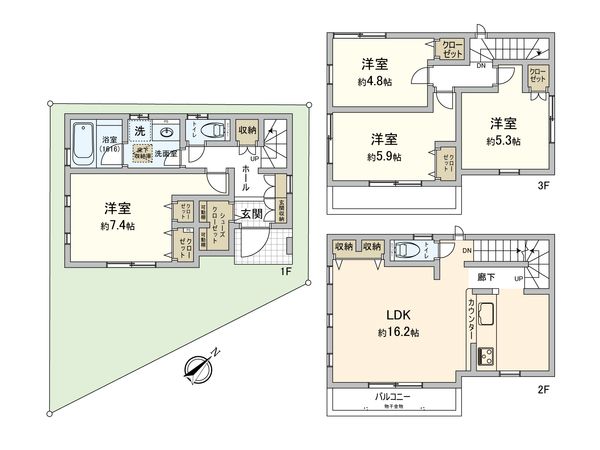
| 間取り | 4LDK |
| 建物面積 | 99.62㎡(約30.13坪) |
| 土地面積 | 66.43㎡(約20.09坪) ※別途私道約1.88㎡有 |
| 築年月 | 2017年11月築 |
■ 物件の特徴 ━━━━━━━━━━━━━━━・・・・・ 〇 JR横浜線「古淵」駅徒歩19分。 〇 角地×東南向きにつき、陽当たり・通風ともに良好。 〇 全室2面採光を確保した、開放感のある3階建4LDK住宅。 〇 南東側約7.2mの公道に面し、ゆとりある角地立地です。 〇 浄水器一体型・食器洗浄乾燥機付きシステムキッチン。 ○ 会話が弾むカウンターキッチン。 ○ TV付きバスルーム/オートバス・浴室乾燥機付き。 ○ 窓付き・1坪タイプのゆったりとした浴室。 ○ 全居室収納+床下収納+シューズインクロークで収納力充実。 ■ 三井のリハウス相模大野センターへお車でご来店いただく場合 ━━━━━━━━━━━━━━━・・・・・ ・ボーノ相模大野内にある【タイムズ相模原市営相模大野駅西側自動車駐車場】もしくは ・行幸通り沿いにある【タイムズ相模原市営相模大野立体駐車場】をご利用ください。 (入庫されたお時間確認のため、発行された駐車券はお手数ですが店舗までお持ちください) お帰りの際【駐車サービス券】をお渡しいたします。
| 所在地 | GoogleMaps |
| 価格 | 3,350万円 |
| 交通 | |
| その他費用 | - |
| 間取り | 4LDK |
| 建物面積 | 99.62㎡(約30.13坪) |
| 土地面積 | 66.43㎡(約20.09坪) ※別途私道約1.88㎡有 |
| 築年月 | 2017年11月築 |
| 建物構造 | 木造3階建 |
| 現況 | 居住中 |
| 駐車場 | - |
| 土地権利 | 所有権 |
| 地目 | 宅地 |
| 接道状況 | 南東側: 約 7.2m (公道)、南西側: 約 3.6m (公道) |
| 建ぺい率 | 60% |
| 容積率 | 150% |
| 用途地域 | 第一種中高層住居専用地域 |
| 都市計画 | 市街化区域 |
| 備考 | - |
| 引渡時期 | 相談 |
| 取引態様 | 仲介 |
| 更新日 | 2026年04月19日 |
| 次回更新予定 | 2026年05月03日 |
| 物件番号 | F80BDA0B |
最新のAI技術を活用した相談サービスです。
お客様一人ひとりのニーズに合わせて最適な情報をご提供します。
リハウスAIチャットの詳しい説明はこちら
GoogleMaps
| スーパー | イトーヨーカドー古淵店 約940m(徒歩12分) |
| スーパー | イオン相模原店 約1150m(徒歩15分) |
| 病院 | 医療法人直源会相模原南病院 約650m(徒歩9分) |
| 病院 | 大野台クリニック 約685m(徒歩9分) |
| 小学校 | 相模原市立大野台小学校 約500m(徒歩7分) |
| 中学校 | 相模原市立大野台中学校 約630m(徒歩8分) |
| その他利便施設1 | ローソン相模原東大沼店 約200m(徒歩3分) |
| その他利便施設2 | クリエイトエス・ディー相模原東大沼店 約965m(徒歩13分) |
| その他利便施設3 | 相模原大野台七郵便局 約820m(徒歩11分) |
| その他利便施設4 | MEGAドン・キホーテ古淵店 約1100m(徒歩14分) |
三井不動産リアルティ株式会社
国土交通大臣(15)第777号
0120-944-131
0120-944-131
物件の売却をご検討の方は、 はやめの査定依頼がおすすめです!
買い替えをご検討の方はこちら0120-944-131

