白根5丁目 戸建
3,780万円



| 物件種別 | 中古戸建 |
| 所在地 | GoogleMaps |
| 交通 | |
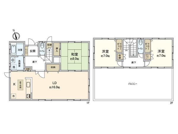
| 間取り | 3LDK |
| 建物面積 | 108.23㎡(約32.73坪) |
| 土地面積 | 179.52㎡(約54.3坪) |
| 築年月 | 1996年06月築 |
この物件情報を共有する
予約制内覧会を開催します!
| 開催日 | 4月11日(土)11:00 ~ 17:00 4月12日(日)11:00 ~ 17:00 4月18日(土)11:00 ~ 17:00 4月19日(日)11:00 ~ 17:00 4月25日(土)11:00 ~ 17:00 |
|---|
おすすめポイント
設備
- 浴室乾燥機
- 複層ガラス
- TVモニタ付インターホン
- 食器洗乾燥機
■ おすすめポイント ━━━━━━━━━━━━━━━・・・ ○ 相鉄本線「鶴ケ峰」駅 徒歩19分 ○ 南西向き・全居室2面採光以上、陽当り・通風良好 ○ LD約16帖・対面式キッチン・全居室収納付 ○ 全居室約6帖以上 ○ 生活環境良好 ○ 広々ワイドバルコニー ■ 内外装リフォーム内容(2025年1月竣工) ○張替(クロス・畳表替え) ○交換(キッチン・浴室・洗面化粧台・トイレ・給湯器) ○塗装(屋根・外壁) ○バルコニー防水処理 ○給排水配管 ■ 相鉄線~都心直通プロジェクト~ ━━━━━━━・・・ ○ JR直通線(令和元年11月30日開通) 武蔵小杉、目黒、大崎、渋谷、新宿等にアクセス ○ 東急直通線(令和5年3月18日開通) 新横浜、新綱島、日吉等にアクセス 都心へのアクセスがより便利に ■ 担当者より ━━━━━━━━━━━━━━━・・・ ○ ご見学希望の方はメールフォームまたはフリーコールにて 三井のリハウス二俣川センターまでご連絡ください 皆様からのお問い合わせを心よりお待ちしております
リノベーション&リフォーム情報
台所(キッチン)交換 | バスルーム交換 |
トイレ交換 | 洗面化粧台交換 |
床貼り替え | 給湯器交換 |
配管交換 |
水回り(キッチン、浴室、トイレ、洗面所、給排水管、給湯器)(2025年1月)
内装(床、壁)(2025年1月)
外装(外壁、屋根)(2025年1月)
物件情報
| 所在地 | GoogleMaps |
| 価格 | 3,780万円 |
| 交通 | |
| その他費用 | - |
| 間取り | 3LDK |
| 建物面積 | 108.23㎡(約32.73坪) |
| 土地面積 | 179.52㎡(約54.3坪) |
| 築年月 | 1996年06月築 |
| 建物構造 | 木造2階建 |
| 現況 | 空家 |
| 駐車場 | - |
| 土地権利 | 所有権 |
| 地目 | 宅地 |
| 接道状況 | - |
| 建ぺい率 | 50% |
| 容積率 | 100% |
| 用途地域 | 第一種低層住居専用地域 |
| 都市計画 | 市街化区域 |
| 備考 | ※地下車庫面積20.08平米 |
| 引渡時期 | 即時 |
| 取引態様 | 仲介 |
| 更新日 | 2026年04月06日 |
| 次回更新予定 | 2026年04月20日 |
| 物件番号 | F82BGA28 |
この物件のことを
AIに聞いてみませんか?
最新のAI技術を活用した相談サービスです。
お客様一人ひとりのニーズに合わせて最適な情報をご提供します。
リハウスAIチャットの詳しい説明はこちら

周辺情報
GoogleMaps
| スーパー | ユーコープ白根店 約500m(徒歩7分) |
| スーパー | 食品館あおば白根店 約520m(徒歩7分) |
| 公園 | 今宿東公園 約140m(徒歩2分) |
| 病院 | 白根診療所 約570m(徒歩8分) |
| 病院 | 石田クリニック 約630m(徒歩8分) |
| 小学校 | 横浜市立白根小学校 約790m(徒歩10分) |
| 中学校 | 横浜市立鶴ケ峯中学校 約360m(徒歩5分) |
| その他利便施設1 | 鶴ヶ峰駅(相鉄本線) 約1510m(徒歩19分) |
| その他利便施設2 | クリエイトエス・ディー新白根店 約850m(徒歩11分) |
| その他利便施設3 | ファミリーマート横浜白根店 約630m(徒歩8分) |
取扱店舗
- 営業時間
- 10:00~18:00
- 定休日
- 毎週火曜日・水曜日
- 住所
- 神奈川県横浜市旭区二俣川2-50-14 コプレ二俣川3F
三井不動産リアルティ株式会社
国土交通大臣(15)第777号
三井のリハウス 二俣川センター
- 営業時間10:00~18:00
- 定休日毎週火曜日・水曜日
0120-993-831
あなたへのおすすめ
横浜市旭区の物件情報
この物件を見学してみませんか?
この物件についてお問い合わせ
物件・住環境の詳しい情報、購入・ローン相談など、ささいなことでもお気軽にお問い合わせください。三井のリハウス 二俣川センター
- 営業時間10:00~18:00
- 定休日毎週火曜日・水曜日
0120-993-831

物件の売却をご検討の方は、 はやめの査定依頼がおすすめです!
買い替えをご検討の方はこちら見学予約
お問い合わせ
0120-993-831
- 営業時間 10:00~18:00
- 定休日 毎週火曜日・水曜日









