横浜市青葉区美しが丘西2丁目
東急田園都市線 たまプラーザ駅 バス15分 美しが丘西一丁目 停歩3分
4LDK
建物面積:108.26㎡
土地面積:151.59㎡
2006年01月築
6,480 万円



| 物件種別 | 中古戸建 |
| 所在地 | GoogleMaps |
| 交通 | |
| 間取り | 4LDK |
| 建物面積 | 147.31㎡(約44.56坪) |
| 土地面積 | 191.61㎡(約57.96坪) |
| 築年月 | 1994年03月築 |
返済計画を入力すると毎月のお支払い目安を表示できます
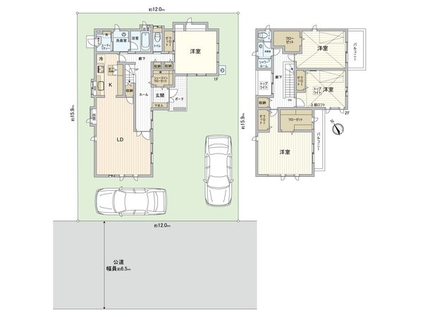
■ アクセス ━━━━━・・・ ○ 東急田園都市線・横浜市営地下鉄ブルーライン『あざみ野』駅からバス13分 バス停「すすき野二丁目」停 徒歩3分の立地 ■ 物件の特徴 ━━━━━・・・ ○ 三井ホーム施工の注文住宅 ○ 築31年の戸建 ○ 土地約57.96坪、建物約44.56坪の4LDK ○ 南西側約6.5m公道に面した整形地 ○ 2台駐車可能(車種による) ■ 設備・仕様 ━━━━━・・・ ○ キッチン(Panasonic) ○ 浴室(TOTO)1階 ○ シャワー室 2階 ○ トイレ(TOTO)1階、2階 ○ 洗面化粧台 1階、2階 【その他】 ○ 広々とした1階リビングダイニング ○ リビングダイニングに床暖房 ○ 一部電動シャッター ○ 洗面化粧台、トイレは2箇所設置 ○ 居室2部屋にウォークインクローゼット ○ 2階居室にロフト付き ■ ご希望の住まい探しをお手伝いします ━━━━━・・・ 閑静な住宅街で落ち着いた環境で スーパーや公園が徒歩圏内にあり大変便利です。 物件の詳細・ご相談はお気軽にお問い合わせください。
| 所在地 | GoogleMaps |
| 価格 | 6,480万円 |
| 交通 | |
| その他費用 | - |
| 間取り | 4LDK |
| 建物面積 | 147.31㎡(約44.56坪) |
| 土地面積 | 191.61㎡(約57.96坪) |
| 築年月 | 1994年03月築 |
| 建物構造 | 木造2階建 |
| 現況 | 空家 |
| 駐車場 | 有 |
| 土地権利 | 所有権 |
| 地目 | 宅地 |
| 接道状況 | 南西側: 約 6.5m (公道) |
| 建ぺい率 | 50% |
| 容積率 | 80% |
| 用途地域 | 第一種低層住居専用地域 |
| 都市計画 | 市街化区域 |
| 備考 | - |
| 引渡時期 | 相談 |
| 取引態様 | 仲介 |
| 更新日 | 2025年10月27日 |
| 次回更新予定 | 2025年11月10日 |
| 物件番号 | F87ASA05 |
GoogleMaps
| スーパー | すすき野とうきゅう 約500m(徒歩7分) |
| スーパー | コープすすき野デポー 約650m(徒歩9分) |
| 公園 | 虹ヶ丘南公園 約70m(徒歩1分) |
| 病院 | 虹ヶ丘クリニック 約190m(徒歩3分) |
| 小学校 | 横浜市立嶮山小学校 約550m(徒歩7分) |
| 中学校 | 横浜市立すすき野中学校 約850m(徒歩11分) |
| その他利便施設1 | マツモトキヨシ すすき野とうきゅう店 約500m(徒歩7分) |
| その他利便施設2 | ミニストップ虹ヶ丘店 約650m(徒歩9分) |
| その他利便施設3 | セブンイレブン 横浜すすき野2丁目店 約700m(徒歩9分) |
| その他利便施設4 | 横浜すすき野郵便局 約350m(徒歩5分) |
三井不動産リアルティ株式会社
国土交通大臣(15)第777号
0120-313-730
リノベーション工事の可能範囲については、本物件の管理組合規約等により一定の制限が加わる場合がございます。詳細については、工事内容の確定後に判明する部分もありますので、この点については事前にお含みおきください。
リノベーションに関するお問い合わせ0120-313-730
物件の売却をご検討の方は、 はやめの査定依頼がおすすめです!
買い替えをご検討の方はこちら0120-313-730
