藤沢市みその台 戸建
3,480万円



| 物件種別 | 中古戸建 |
| 所在地 | GoogleMaps |
| 交通 | 小田急電鉄江ノ島線 善行駅 徒歩11分 |
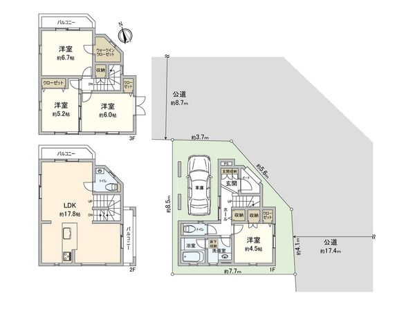
| 間取り | 4LDK |
| 建物面積 | 100.09㎡(約30.27坪) |
| 土地面積 | 55.39㎡(約16.75坪) |
| 築年月 | 2012年02月築 |
この物件情報を共有する
毎月のお支払い目安
返済計画を入力すると毎月のお支払い目安を表示できます
- ローン98,235円
- 管理費+修繕積立金0円
- その他費用0円
おすすめポイント
設備
- 浴室乾燥機
- TVモニタ付インターホン
- 食器洗乾燥機
特徴
- 前面道路幅員6m以上
-物件のおすすめポイント- ▼立地 ・小田急電鉄江ノ島線「善行」駅 徒歩11分 ・北東角地のため開放感あり ▼建物の特徴 ・全居室二面採光の4LDK ・ビルトインカースペース1台分あり(車種による) ▼お部屋の特徴 ・三面採光・二面バルコニーのLDK約17.8帖 ・洋室約6.7帖にはウォークインクローゼット付 ・可動間仕切りで一体利用可能な洋室約6.0帖・約5.2帖 ▼設備 ・食器洗浄乾燥機付 ・ゆっくりとバスタイムが楽しめる浴室TV付 ・浴室暖房換気乾燥機 ・1・2階にトイレ設置 ・TVモニター付きインターホン ▼リフォーム内容(2025年6月) 【新規交換】給湯器、トイレ、ポスト、インターホン 【張替】壁紙一部 【その他】ハウスクリーニング ▼周辺環境 ・ローソン藤沢白旗四丁目店 徒歩1分(約40m) ・第一立石公園 徒歩6分(約480m) ・神奈川県立スポーツセンター 徒歩3分(約240m) ■ ご希望の住まい探しをお手伝いします ━━━━━・・・ 物件の詳細・ご相談はお気軽にお問い合わせください。
リノベーション&リフォーム情報
トイレ交換 | 給湯器交換 |
水回り(トイレ、給湯器)(2025年6月)
内装(壁、ポスト、インターホン)(2025年6月)
ハウスクリーニング(2025年6月)
物件情報
| 所在地 | GoogleMaps |
| 価格 | 3,480万円 |
| 交通 | 小田急電鉄江ノ島線 善行駅 徒歩11分 |
| その他費用 | - |
| 間取り | 4LDK |
| 建物面積 | 100.09㎡(約30.27坪) |
| 土地面積 | 55.39㎡(約16.75坪) |
| 築年月 | 2012年02月築 |
| 建物構造 | 木造3階建 |
| 現況 | 空家 |
| 駐車場 | 有 |
| 土地権利 | 所有権 |
| 地目 | 宅地 |
| 接道状況 | 東側: 約 17.4m (公道)、北側: 約 8.7m (公道) |
| 建ぺい率 | 60% |
| 容積率 | 200% |
| 用途地域 | 第一種中高層住居専用地域 |
| 都市計画 | 市街化区域 |
| 備考 | 準防火地域/宅地造成工事規制区域 |
| 引渡時期 | 相談 |
| 取引態様 | 仲介 |
| 更新日 | 2026年01月05日 |
| 次回更新予定 | 2026年01月19日 |
| 物件番号 | F90AGB6B |
この物件のことを
AIに聞いてみませんか?
最新のAI技術を活用した相談サービスです。
お客様一人ひとりのニーズに合わせて最適な情報をご提供します。
リハウスAIチャットの詳しい説明はこちら

周辺情報
GoogleMaps
| スーパー | そうてつローゼン善行店 約820m(徒歩11分) |
| 公園 | 第一立石公園 約480m(徒歩6分) |
| 公園 | 第一伊勢山辺公園 約500m(徒歩7分) |
| 病院 | 関本医院 約320m(徒歩4分) |
| 小学校 | 藤沢市立大清水小学校 約920m(徒歩12分) |
| 中学校 | 藤沢市立大清水中学校 約980m(徒歩13分) |
| その他利便施設1 | ローソン 藤沢白旗四丁目店 約40m(徒歩1分) |
| その他利便施設2 | ツルハドラッグ 善行駅前店 約840m(徒歩11分) |
| その他利便施設3 | 善行市民センター・公民館・図書館 約680m(徒歩9分) |
| その他利便施設4 | 神奈川県立スポーツセンター球技場 約240m(徒歩3分) |
取扱店舗
三井のリハウス 藤沢センター
- 営業時間10:00~18:00
- 定休日毎週火曜日・水曜日
0120-399-031
あなたへのおすすめ
藤沢市の物件情報
この物件を見学してみませんか?
この物件についてお問い合わせ
物件・住環境の詳しい情報、購入・ローン相談など、ささいなことでもお気軽にお問い合わせください。三井のリハウス 藤沢センター
- 営業時間10:00~18:00
- 定休日毎週火曜日・水曜日
0120-399-031

物件の売却をご検討の方は、 はやめの査定依頼がおすすめです!
買い替えをご検討の方はこちら見学予約
お問い合わせ
0120-399-031
- 営業時間 10:00~18:00
- 定休日 毎週火曜日・水曜日









