藤沢市片瀬3丁目 戸建
5,996万円



| 物件種別 | 中古戸建 |
| 所在地 | GoogleMaps |
| 交通 | |
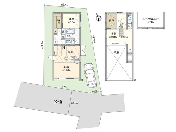
| 間取り | 2LDK |
| 建物面積 | 77.07㎡(約23.31坪) |
| 土地面積 | 103.23㎡(約31.22坪) |
| 築年月 | 2004年09月築 |
この物件情報を共有する
おすすめポイント
設備
- 浴室乾燥機
- 複層ガラス
- TVモニタ付インターホン
特徴
- 吹抜け
-物件のおすすめポイント- ▼立地 ・江ノ島電鉄「江ノ島」駅 徒歩7分 湘南モノレール「湘南江の島」駅 徒歩6分 ・第一種低層住居専用地域の閑静な住宅街 ▼建物の特徴 ・デザイナーズハウス ・1階は回遊動線 ・カースペース1台分あり(車種による) ▼お部屋の特徴 ・吹抜けとトップライトのある明るいLDK ・無垢床材を使用したLD ・大きな窓で陽当たり/開放感良好 ・江の島(一部)と富士山が見えるルーフバルコニー ▼設備 ・3口コンログリル付 ・浴室換気乾燥暖房機 ・1・2階トイレ付 ・セカンド洗面 ・使い勝手の良い納戸付 ・約7帖のルーフバルコニー ▼リフォーム内容(2025年7月) 【新規交換】トイレ、ガスコンロ、給湯器、ペアガラス一部 【張替】クロス 【その他】無垢材フローリングコーティング、屋根外壁塗装、 バルコニー防水 ▼周辺環境 ・スーパー、コンビニ、公園などが徒歩10分圏内で住環境良好 ■ ご希望の住まい探しをお手伝いします ━━━━・・・ 物件の詳細・ご相談はお気軽にお問い合わせください。
リノベーション&リフォーム情報
トイレ交換 | 床貼り替え |
給湯器交換 |
水回り(トイレ、給湯器、ガスコンロ)(2025年7月)
内装(床、壁、ペアガラス一部)(2025年7月)
外装(外壁、屋根、バルコニー防水)(2025年7月)
ハウスクリーニング(2025年5月)
物件情報
| 所在地 | GoogleMaps |
| 価格 | 5,996万円 |
| 交通 | |
| その他費用 | - |
| 間取り | 2LDK |
| 建物面積 | 77.07㎡(約23.31坪) |
| 土地面積 | 103.23㎡(約31.22坪) |
| 築年月 | 2004年09月築 |
| 建物構造 | 木造2階建 |
| 現況 | 空家 |
| 駐車場 | 有 |
| 土地権利 | 所有権 |
| 地目 | 宅地 |
| 接道状況 | 南西側: 約 4m (公道) |
| 建ぺい率 | 50% |
| 容積率 | 80% |
| 用途地域 | 第一種低層住居専用地域 |
| 都市計画 | 市街化区域 |
| 備考 | 法22条区域/宅地造成工事規制区域 |
| 引渡時期 | 相談 |
| 取引態様 | 仲介 |
| 更新日 | 2026年04月13日 |
| 次回更新予定 | 2026年04月27日 |
| 物件番号 | F90AGBA6 |
この物件のことを
AIに聞いてみませんか?
最新のAI技術を活用した相談サービスです。
お客様一人ひとりのニーズに合わせて最適な情報をご提供します。
リハウスAIチャットの詳しい説明はこちら

周辺情報
GoogleMaps
| スーパー | 全日食チェーン YAOFUKU 約660m(徒歩9分) |
| スーパー | やまか江の島店 約720m(徒歩9分) |
| 公園 | 下諏訪公園 約290m(徒歩4分) |
| 病院 | 片瀬クリニックプラザ 約290m(徒歩4分) |
| 小学校 | 藤沢市立片瀬小学校 約480m(徒歩6分) |
| 中学校 | 藤沢市立片瀬中学校 約1000m(徒歩13分) |
| その他利便施設1 | ローソン 片瀬海岸一丁目店 約400m(徒歩5分) |
| その他利便施設2 | ハックドラッグ江の島店 約730m(徒歩10分) |
| その他利便施設3 | 片瀬郵便局 約310m(徒歩4分) |
| その他利便施設4 | 片瀬市民センター・片瀬公民館・片瀬市民図書館 約250m(徒歩4分) |
取扱店舗
三井のリハウス 藤沢センター
- 営業時間10:00~18:00
- 定休日毎週水曜日
0120-399-031
あなたへのおすすめ
藤沢市の物件情報
この物件を見学してみませんか?
この物件についてお問い合わせ
物件・住環境の詳しい情報、購入・ローン相談など、ささいなことでもお気軽にお問い合わせください。三井のリハウス 藤沢センター
- 営業時間10:00~18:00
- 定休日毎週水曜日
0120-399-031

物件の売却をご検討の方は、 はやめの査定依頼がおすすめです!
買い替えをご検討の方はこちら見学予約
お問い合わせ
0120-399-031
- 営業時間 10:00~18:00
- 定休日 毎週水曜日









