藤沢市鵠沼松が岡3丁目
小田急電鉄江ノ島線 鵠沼海岸駅 徒歩10分
3LDK
建物面積:102.39㎡
土地面積:129.17㎡
新築
6,080万円



| 物件種別 | 中古戸建 |
| 所在地 | GoogleMaps |
| 交通 | |
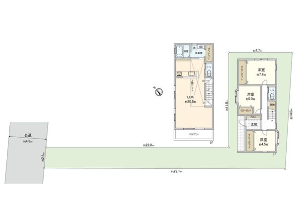
| 間取り | 3LDK |
| 建物面積 | 95.22㎡(約28.8坪) |
| 土地面積 | 158.42㎡(約47.92坪) ※路地状敷地部分約55.51㎡含む |
| 築年月 | 2015年10月築 |
返済計画を入力すると毎月のお支払い目安を表示できます
-物件のおすすめポイント- ▼立地 ・小田急電鉄江ノ島線「鵠沼海岸」駅まで徒歩10分 江ノ島電鉄線「鵠沼」駅まで徒歩9分 ・2路線利用可能で、通勤・通学に便利な立地 ・湘南海岸公園まで徒歩7分(約510m)の立地 ▼建物の特徴 ・2015年10月築、室内コンディション良好 ・道路側、敷地裏側ともに抜けており、採光・通風良好 ・ロフト付き勾配天井で明るく開放感な2階リビングダイニング(床材には無垢を使用) ・2階に水回りを集約した間取り配置で優れた家事導線を実現 ・カースペース3台分あり(車種による) ▼設備 ・家族との会話が弾む対面式キッチン、食器洗浄機付き ・窓付の明るい浴室、浴室換気乾燥機付き ・全居室に収納、階段付きのゆとりあるロフト ▼周辺環境 ・第一種低層住居専用地域の閑静な住宅街 ・Odakyu OX 江ノ島店(約710m)、クリエイトS・D 小田急鵠沼海岸駅前店(約840m)、ファミリーマート鵠沼海岸店(約810m)と買物便利 ■ 物件の詳細・ご相談はお気軽に担当:奥田までお問い合わせください。
| 所在地 | GoogleMaps |
| 価格 | 6,080万円 |
| 交通 | |
| その他費用 | - |
| 間取り | 3LDK |
| 建物面積 | 95.22㎡(約28.8坪) |
| 土地面積 | 158.42㎡(約47.92坪) ※路地状敷地部分約55.51㎡含む |
| 築年月 | 2015年10月築 |
| 建物構造 | 木造2階建 |
| 現況 | 空家 |
| 駐車場 | 有 |
| 土地権利 | 所有権 |
| 地目 | 宅地 |
| 接道状況 | 北西側: 約 4.5m (公道) |
| 建ぺい率 | 40% |
| 容積率 | 80% |
| 用途地域 | 第一種低層住居専用地域 |
| 都市計画 | 市街化区域 |
| 備考 | ※法22条区域 ※宅地造成及び特定盛土等規制法 ※第3号鵠沼風致地区 ※鵠南みどり会住民協定 |
| 引渡時期 | 相談 |
| 取引態様 | 仲介 |
| 更新日 | 2026年02月05日 |
| 次回更新予定 | 2026年02月19日 |
| 物件番号 | F90AUA09 |
最新のAI技術を活用した相談サービスです。
お客様一人ひとりのニーズに合わせて最適な情報をご提供します。
リハウスAIチャットの詳しい説明はこちら
GoogleMaps
| スーパー | Odakyu OX 江ノ島店 約710m(徒歩9分) |
| スーパー | そうてつローゼン鵠沼店 約1240m(徒歩16分) |
| 公園 | 下藤ヶ谷公園 約410m(徒歩6分) |
| 病院 | 鵠沼海岸内科クリニック 約840m(徒歩11分) |
| 小学校 | 藤沢市立鵠洋小学校 約1350m(徒歩17分) |
| 中学校 | 藤沢市立湘洋中学校 約1940m(徒歩25分) |
| その他利便施設1 | クリエイトS・D 小田急鵠沼海岸駅前店 約840m(徒歩11分) |
| その他利便施設2 | ファミリーマート 鵠沼海岸店 約810m(徒歩11分) |
| その他利便施設3 | セブン-イレブン 鵠沼海岸店 約960m(徒歩12分) |
| その他利便施設4 | 鵠沼海岸郵便局 約1010m(徒歩13分) |
0120-399-031
0120-399-031
物件の売却をご検討の方は、 はやめの査定依頼がおすすめです!
買い替えをご検討の方はこちら0120-399-031

