藤沢市鵠沼松が岡4丁目 戸建
15,800万円



| 物件種別 | 中古戸建 |
| 所在地 | GoogleMaps |
| 交通 | 小田急電鉄江ノ島線 鵠沼海岸駅 徒歩4分 |
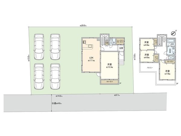
| 間取り | 4LDK |
| 建物面積 | 139.31㎡(約42.14坪) |
| 土地面積 | 265.41㎡(約80.28坪) |
| 築年月 | 1999年02月築 |
この物件情報を共有する
おすすめポイント
設備
- 浴室乾燥機
- TVモニタ付インターホン
-物件のおすすめポイント- ▼立地 ・小田急江ノ島線「鵠沼海岸」駅 徒歩4分 ・第一種低層住居専用地域内 ▼建物の特徴 ・来客時に便利なTVモニター付インターホン ・カーライフを満喫できる4台分のカースペース(車種による) ▼お部屋の特徴 ・南東、南西向の2面採光で明るいLDK約17.1帖 ・自然光が入る全居室2面採光 ・可動間仕切りで一体利用可能な洋室約4.8帖 ・掃除がしやすい全居室フローリング仕様 ▼設備 ・効率的な動線のL字型キッチン ・窓がある浴室 ・浴室換気乾燥暖房機 ・温水洗浄便座付トイレ ・全居室収納あり ・シューズインクローク ▼リフォーム内容(2025年11月) 【新規交換】キッチン、UB、トイレ、洗面化粧台、建具等 【張替】フローリング、クロス 【その他】外壁塗装 ▼周辺環境 ・スーパー、コンビニ、公園などが徒歩6分圏内で住環境良好 ・鵠洋小学校まで徒歩9分(約720m) ■ ご希望の住まい探しをお手伝いします ━━━━・・・ 物件の詳細・ご相談はお気軽にお問い合わせください。
リノベーション&リフォーム情報
全室クロス/壁紙貼り替え | 台所(キッチン)交換 |
バスルーム交換 | トイレ交換 |
洗面化粧台交換 | 床貼り替え |
給湯器交換 | 扉交換 |
水回り(キッチン、浴室、トイレ、洗面所、給湯器、防水パン)(2025年11月)
内装(全室クロス、床、建具)(2025年11月)
外装(外壁)(2025年11月)
物件情報
| 所在地 | GoogleMaps |
| 価格 | 15,800万円 |
| 交通 | 小田急電鉄江ノ島線 鵠沼海岸駅 徒歩4分 |
| その他費用 | - |
| 間取り | 4LDK |
| 建物面積 | 139.31㎡(約42.14坪) |
| 土地面積 | 265.41㎡(約80.28坪) |
| 築年月 | 1999年02月築 |
| 建物構造 | 鉄筋コンクリート造2階建 |
| 現況 | 空家 |
| 駐車場 | 有 |
| 土地権利 | 所有権 |
| 地目 | 宅地 |
| 接道状況 | 南東側: 約 4.6m (公道) |
| 建ぺい率 | 50% |
| 容積率 | 80% |
| 用途地域 | 第一種低層住居専用地域 |
| 都市計画 | 市街化区域 |
| 備考 | 法22条区域/宅地造成工事規制区域 |
| 引渡時期 | 相談 |
| 取引態様 | 仲介 |
| 更新日 | 2026年04月27日 |
| 次回更新予定 | 2026年05月11日 |
| 物件番号 | F90BGA06 |
この物件のことを
AIに聞いてみませんか?
最新のAI技術を活用した相談サービスです。
お客様一人ひとりのニーズに合わせて最適な情報をご提供します。
リハウスAIチャットの詳しい説明はこちら

周辺情報
GoogleMaps
| スーパー | そうてつローゼン 鵠沼店 約420m(徒歩6分) |
| 公園 | 一木公園 約100m(徒歩2分) |
| 病院 | ありあけ内科クリニック藤沢院 約35m(徒歩1分) |
| 小学校 | 藤沢市立鵠洋小学校 約720m(徒歩9分) |
| 中学校 | 藤沢市立湘洋中学校 約1540m(徒歩20分) |
| その他利便施設1 | セブン-イレブン 鵠沼海岸店 約280m(徒歩4分) |
| その他利便施設2 | クリエイトS・D 小田急鵠沼海岸駅前店 約290m(徒歩4分) |
| その他利便施設3 | 鵠沼海岸郵便局 約320m(徒歩4分) |
| その他利便施設4 | 鵠沼市民センター・市民図書館 約380m(徒歩5分) |
| その他利便施設5 | 鵠沼海岸(湘南海岸公園前) 約1200m(徒歩15分) |
取扱店舗
三井のリハウス 藤沢センター
- 営業時間10:00~18:00
- 定休日毎週水曜日
0120-399-031
あなたへのおすすめ
藤沢市の物件情報
この物件を見学してみませんか?
この物件についてお問い合わせ
物件・住環境の詳しい情報、購入・ローン相談など、ささいなことでもお気軽にお問い合わせください。三井のリハウス 藤沢センター
- 営業時間10:00~18:00
- 定休日毎週水曜日
0120-399-031

物件の売却をご検討の方は、 はやめの査定依頼がおすすめです!
買い替えをご検討の方はこちら見学予約
お問い合わせ
0120-399-031
- 営業時間 10:00~18:00
- 定休日 毎週水曜日





