藤沢市善行5丁目 戸建
3,190万円



| 物件種別 | 中古戸建 |
| 所在地 | GoogleMaps |
| 交通 | 小田急電鉄江ノ島線 善行駅 徒歩13分 |
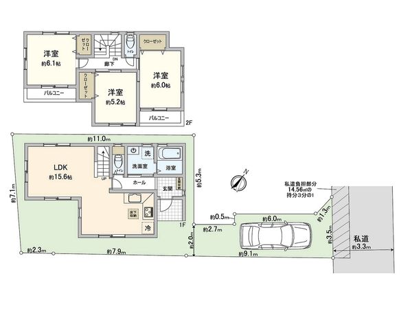
| 間取り | 3LDK |
| 建物面積 | 81.14㎡(約24.54坪) |
| 土地面積 | 100.1㎡(約30.28坪) ※路地状敷地部分約21.2㎡含む ※別途私道約14.56㎡有 (共有持分 1/3) |
| 築年月 | 2007年06月築 |
この物件情報を共有する
おすすめポイント
設備
- 浴室乾燥機
- TVモニタ付インターホン
-物件のおすすめポイント- ▼立地 ・小田急電鉄江ノ島線「善行」駅 徒歩13分 ・第一種低層住居専用地域の閑静な住宅街 ▼建物の特徴 ・カースペース1台分あり(車種による) ・来客時に便利なTVモニター付インターホン ▼お部屋の特徴 ・3面採光で明るいLDK約15.6帖 ・コミュニケーションを育むリビングイン階段採用 ・掃除がしやすい全居室フローリング仕様 ▼設備 ・効率的な動線のL字型キッチン ・ゆったりと入れる1坪タイプのお風呂 ・1・2階トイレ付 ・全居室収納あり ・床下収納あり ▼リフォーム内容(2026年4月) 【新規交換】キッチン水栓、コンロ、浴室鏡 等 【張替】クロス、クッションフロア、網戸 【その他】外壁屋根塗装、ハウスクリーニング等 ▼周辺環境 ・善行中学校 約640m(徒歩8分) ・ウエルシア藤沢善行店 約490m(徒歩7分) ■ ご希望の住まい探しをお手伝いします ━━━━・・・ 物件の詳細・ご相談はお気軽にお問い合わせください。
リノベーション&リフォーム情報
全室クロス/壁紙貼り替え | 床貼り替え |
水回り(コンロ、水栓、浴室鏡、浴槽フタ)(2026年4月)
内装(全室クロス、床、クッションフロア、網戸、ポスト)(2026年4月)
外装(外壁、屋根、バルコニー)(2026年4月)
火災報知器交換、録画機能付きインターホン交換、ハウスクリーニング等(2026年4月)
物件情報
| 所在地 | GoogleMaps |
| 価格 | 3,190万円 |
| 交通 | 小田急電鉄江ノ島線 善行駅 徒歩13分 |
| その他費用 | - |
| 間取り | 3LDK |
| 建物面積 | 81.14㎡(約24.54坪) |
| 土地面積 | 100.1㎡(約30.28坪) ※路地状敷地部分約21.2㎡含む ※別途私道約14.56㎡有 (共有持分 1/3) |
| 築年月 | 2007年06月築 |
| 建物構造 | 木造2階建 |
| 現況 | 空家 |
| 駐車場 | 有 |
| 土地権利 | 所有権 |
| 地目 | 宅地 |
| 接道状況 | 北東側: 約 3.3m (私道) |
| 建ぺい率 | 50% |
| 容積率 | 80% |
| 用途地域 | 第一種低層住居専用地域 |
| 都市計画 | 市街化区域 |
| 備考 | 法22条区域/宅地造成工事規制区域 |
| 引渡時期 | 相談 |
| 取引態様 | 仲介 |
| 更新日 | 2026年04月27日 |
| 次回更新予定 | 2026年05月11日 |
| 物件番号 | F90BGA3B |
この物件のことを
AIに聞いてみませんか?
最新のAI技術を活用した相談サービスです。
お客様一人ひとりのニーズに合わせて最適な情報をご提供します。
リハウスAIチャットの詳しい説明はこちら

周辺情報
GoogleMaps
| スーパー | Aコープ善行店 約1000m(徒歩13分) |
| 公園 | 椎の実公園 約370m(徒歩5分) |
| 公園 | 中原公園 約380m(徒歩5分) |
| 病院 | 石川医院 約950m(徒歩12分) |
| 小学校 | 藤沢市立善行小学校 約1240m(徒歩16分) |
| 中学校 | 藤沢市立善行中学校 約640m(徒歩8分) |
| その他利便施設1 | 善行駅 西口(小田急 江ノ島線) 約980m(徒歩13分) |
| その他利便施設2 | ファミリーマート 藤沢善行店 約790m(徒歩10分) |
| その他利便施設3 | ウエルシア藤沢善行店 約490m(徒歩7分) |
| その他利便施設4 | 藤沢善行郵便局 約840m(徒歩11分) |
取扱店舗
三井のリハウス 藤沢センター
- 営業時間10:00~18:00
- 定休日毎週水曜日
0120-399-031
あなたへのおすすめ
藤沢市の物件情報
この物件を見学してみませんか?
この物件についてお問い合わせ
物件・住環境の詳しい情報、購入・ローン相談など、ささいなことでもお気軽にお問い合わせください。三井のリハウス 藤沢センター
- 営業時間10:00~18:00
- 定休日毎週水曜日
0120-399-031

物件の売却をご検討の方は、 はやめの査定依頼がおすすめです!
買い替えをご検討の方はこちら見学予約
お問い合わせ
0120-399-031
- 営業時間 10:00~18:00
- 定休日 毎週水曜日









