藤沢市本藤沢2丁目 戸建
3,999万円



| 物件種別 | 中古戸建 |
| 所在地 | GoogleMaps |
| 交通 | 小田急電鉄江ノ島線 藤沢本町駅 徒歩17分 |
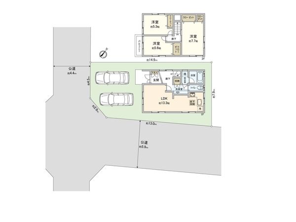
| 間取り | 3LDK |
| 建物面積 | 80.11㎡(約24.23坪) |
| 土地面積 | 105.95㎡(約32.04坪) |
| 築年月 | 1988年02月築 |
この物件情報を共有する
おすすめポイント
設備
- 浴室乾燥機
- TVモニタ付インターホン
- 食器洗乾燥機
-物件のおすすめポイント- ▼立地 ・小田急電鉄江ノ島「藤沢本町」駅 徒歩17分 ・第一種低層住居専用地域の閑静な住宅街 ▼建物の特徴 ・パナホーム施工の軽量鉄骨造 ・南東・南西の角地につき開放感あり ・カースペース2台分あり(車種による) ▼お部屋の特徴 ・3面採光の明るいLDK約13.3帖 ・自然光が入る全居室2面採光 ・掃除がしやすい全居室フローリング仕様 ▼設備 ・スペースを有効活用できるL字型キッチン ・家事の時短になるビルトイン食器洗浄機付 ・窓がある浴室 ・温水洗浄便座付トイレ ・全居室収納あり ▼リフォーム内容(2026年4月) 【新規交換】キッチン、UB、給湯器、玄関ドア 等 【張替】全室クロス、フローリング 【その他】屋根・外壁塗装、防蟻処理、バルコニー防水処理 ▼周辺環境 ・石原谷公園 約70m(徒歩1分) ・ファミリーマート藤沢稲荷店 約230m(徒歩3分) ・ウエルシア本藤沢店 約250m(徒歩4分) ■ ご希望の住まい探しをお手伝いします ━━━━・・・ 物件の詳細・ご相談はお気軽にお問い合わせください。
リノベーション&リフォーム情報
全室クロス/壁紙貼り替え | 台所(キッチン)交換 |
バスルーム交換 | トイレ交換 |
洗面化粧台交換 | 床貼り替え |
給湯器交換 | 扉交換 |
水回り(キッチン、浴室、トイレ、洗面所、給湯器)(2026年4月)
内装(全室クロス、床、建具、玄関ドア、WIC可動棚)(2026年4月)
外装(外壁、屋根)(2026年4月)
坊蟻処理、バルコニー防水処理(2026年4月)
物件情報
| 所在地 | GoogleMaps |
| 価格 | 3,999万円 |
| 交通 | 小田急電鉄江ノ島線 藤沢本町駅 徒歩17分 |
| その他費用 | - |
| 間取り | 3LDK |
| 建物面積 | 80.11㎡(約24.23坪) |
| 土地面積 | 105.95㎡(約32.04坪) |
| 築年月 | 1988年02月築 |
| 建物構造 | 軽量鉄骨造2階建 |
| 現況 | 空家 |
| 駐車場 | 有 |
| 土地権利 | 所有権 |
| 地目 | 宅地 |
| 接道状況 | 南東側: 約 5.9m (公道)、南西側: 約 4.4m (公道) |
| 建ぺい率 | 50% |
| 容積率 | 80% |
| 用途地域 | 第一種低層住居専用地域 |
| 都市計画 | 市街化区域 |
| 備考 | 法22条区域/宅地造成工事規制区域 |
| 引渡時期 | 相談 |
| 取引態様 | 仲介 |
| 更新日 | 2026年04月17日 |
| 次回更新予定 | 2026年05月01日 |
| 物件番号 | F90BGA6E |
この物件のことを
AIに聞いてみませんか?
最新のAI技術を活用した相談サービスです。
お客様一人ひとりのニーズに合わせて最適な情報をご提供します。
リハウスAIチャットの詳しい説明はこちら

周辺情報
GoogleMaps
| スーパー | FUJI 善行店 約930m(徒歩12分) |
| 公園 | 石原谷公園 約70m(徒歩1分) |
| 公園 | 石名坂第三公園 約290m(徒歩4分) |
| 病院 | 医療法人社団栄友会本藤沢ゆずクリニック 約860m(徒歩11分) |
| 小学校 | 藤沢市立本町小学校 約2070m(徒歩26分) |
| 中学校 | 藤沢市立第一中学校 約1890m(徒歩24分) |
| その他利便施設1 | ファミリーマート藤沢稲荷店 約230m(徒歩3分) |
| その他利便施設2 | ウエルシア本藤沢店 約250m(徒歩4分) |
| その他利便施設3 | 荏原湘南スポーツセンター 約440m(徒歩6分) |
| その他利便施設4 | 石名坂温水プール 約640m(徒歩8分) |
取扱店舗
三井のリハウス 藤沢センター
- 営業時間10:00~18:00
- 定休日毎週水曜日
0120-399-031
あなたへのおすすめ
藤沢市の物件情報
この物件を見学してみませんか?
この物件についてお問い合わせ
物件・住環境の詳しい情報、購入・ローン相談など、ささいなことでもお気軽にお問い合わせください。三井のリハウス 藤沢センター
- 営業時間10:00~18:00
- 定休日毎週水曜日
0120-399-031

物件の売却をご検討の方は、 はやめの査定依頼がおすすめです!
買い替えをご検討の方はこちら見学予約
お問い合わせ
0120-399-031
- 営業時間 10:00~18:00
- 定休日 毎週水曜日









