鎌倉市西鎌倉1丁目
湘南モノレール 西鎌倉駅 徒歩4分
5LDK
建物面積:142.54㎡
土地面積:302.74㎡
2019年05月築
10,800万円



| 物件種別 | 中古戸建 |
| 所在地 | GoogleMaps |
| 交通 | |
| 間取り | 2LDK |
| 建物面積 | 100.19㎡(約30.3坪) |
| 土地面積 | 170.01㎡(約51.42坪) |
| 築年月 | 2021年03月築 |
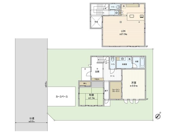
-物件のおすすめポイント- ▼立地 ・寺社仏閣が点在し、古都鎌倉らしい緑豊かな住環境 ・閑静な住宅街に佇む2LDKの一戸建て ・前面道路幅員約5.0m、車通りも少ないため車両の出し入れも安心です ▼建物の特徴 ・2021年3月築、杉坂建築事務所施工の拘りの注文住宅 ・カースペース1台分有り(車種による) ▼お部屋の特徴 ・2階のLDKは広々約21.9帖 ・対面式キッチンで家族の会話も弾みます ・各居室は6帖以上でゆとりのある間取です ・玄関は吹き抜けで開放感有り ・足を伸ばしてくつろげる和室約7.7帖 ▼設備 ・IHコンロのシステムキッチン ・シンク周りをスッキリみせる浄水器一体型水栓 ・雨の日の洗濯にも便利な浴室換気乾燥機付 ・トイレには快適な温水洗浄便座付 ・収納力の高いウォークインクローゼット付 ・来客時に便利なTVモニター付インターホン ▼周辺環境 ・第二小学校まで徒歩3分、お子様の通学も安心 ・閑静な住宅街 ■ ご希望の住まい探しをお手伝いします ━━━━・・・ 物件の詳細・ご相談はお気軽にお問い合わせください。
| 所在地 | GoogleMaps |
| 価格 | 10,800万円 |
| 交通 | |
| その他費用 | - |
| 間取り | 2LDK |
| 建物面積 | 100.19㎡(約30.3坪) |
| 土地面積 | 170.01㎡(約51.42坪) |
| 築年月 | 2021年03月築 |
| 建物構造 | 木造2階建 |
| 現況 | 空家 |
| 駐車場 | 有 |
| 土地権利 | 所有権 |
| 地目 | 宅地 |
| 接道状況 | 南西側: 約 5m (公道) |
| 建ぺい率 | 40% |
| 容積率 | 80% |
| 用途地域 | 第一種低層住居専用地域 |
| 都市計画 | 市街化区域 |
| 備考 | 宅地造成等規制区域、埋蔵文化財包蔵地、法22条区域 ■建物状況調査 実施済み(報告書あり) 建物検査実施日:2025年9月19日 |
| 引渡時期 | 相談 |
| 取引態様 | 仲介 |
| 更新日 | 2026年05月15日 |
| 次回更新予定 | 2026年05月29日 |
| 物件番号 | F91BDA04 |
最新のAI技術を活用した相談サービスです。
お客様一人ひとりのニーズに合わせて最適な情報をご提供します。
リハウスAIチャットの詳しい説明はこちら
GoogleMaps
| スーパー | もとまちユニオン 鎌倉店 約1440m(徒歩18分) |
| 公園 | 二階堂すいせん公園 約180m(徒歩3分) |
| 病院 | 清川病院 約1180m(徒歩15分) |
| 小学校 | 鎌倉市立第二小学校 約170m(徒歩3分) |
| 中学校 | 鎌倉市立第二中学校 約730m(徒歩10分) |
| その他利便施設1 | 鎌倉駅 東口(JR) 約1620m(徒歩21分) |
| その他利便施設2 | ファミリーマート鎌倉雪ノ下店 約570m(徒歩8分) |
三井不動産リアルティ株式会社
国土交通大臣(15)第777号
0120-679-031
0120-679-031
物件の売却をご検討の方は、 はやめの査定依頼がおすすめです!
買い替えをご検討の方はこちら0120-679-031

