鎌倉市七里ガ浜2丁目
江ノ島電鉄 鎌倉高校前駅 徒歩12分
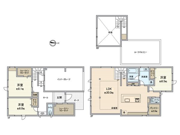
3LDK
建物面積:165.38㎡
土地面積:215.6㎡
築1年未満
23,800万円



| 物件種別 | 中古戸建 |
| 所在地 | GoogleMaps |
| 交通 | 横須賀線 鎌倉駅 徒歩10分 |
| 間取り | 3LDK |
| 建物面積 | 163.61㎡(約49.49坪) |
| 土地面積 | 140.6㎡(約42.53坪) |
| 築年月 | 2025年02月築 |
返済計画を入力すると毎月のお支払い目安を表示できます
-物件のおすすめポイント- ▼立地 ・横須賀線「鎌倉」駅まで徒歩10分のアクセス(約770m) ▼建物の特徴 ・約13.2平米の開放感あふれるルーフバルコニー ・車を雨や日差しから守るビルトインガレージ付 (1階建物面積に車庫部分21.53平米を含む) ▼お部屋の特徴 ・家具付きで、すぐに快適な暮らしをスタート(小物除く) ・アイランドキッチンがあり広々とした約30帖のLDK ・全居室が二面採光の明るい住まい空間です ・全居室6帖以上、収納豊富で居住空間を有効活用できます ▼設備 ・リビングは寒い日でも暖かく過ごせる床暖房付 ・収納力の高いウォークインクローゼット ・アウトドア用品等の収納にも便利なシューズインクローク ・調味料のストックや非常食の収納に便利なパントリー付 ・家事の時短に役立つ食器洗乾燥機 ▼周辺環境 ・鎌倉市立御成小学校まで約500m、低学年のお子様にも負担の少ない距離です ■ ご希望の住まい探しをお手伝いします ━━━━━・・・ 物件の詳細・ご相談はお気軽にお問い合わせください。
| 所在地 | GoogleMaps |
| 価格 | 23,800万円 |
| 交通 | 横須賀線 鎌倉駅 徒歩10分 |
| その他費用 | - |
| 間取り | 3LDK |
| 建物面積 | 163.61㎡(約49.49坪) |
| 土地面積 | 140.6㎡(約42.53坪) |
| 築年月 | 2025年02月築 |
| 建物構造 | 木造2階建 |
| 現況 | 空家 |
| 駐車場 | 有 |
| 土地権利 | 所有権 |
| 地目 | 宅地 |
| 接道状況 | 北側: 約 5.8m (公道) |
| 建ぺい率 | 60% |
| 容積率 | 200% |
| 用途地域 | 第一種中高層住居専用地域 |
| 都市計画 | 市街化区域 |
| 備考 | ※1階建物面積に車庫部分21.53平米を含む |
| 引渡時期 | 相談 |
| 取引態様 | 仲介 |
| 更新日 | 2026年02月16日 |
| 次回更新予定 | 2026年03月02日 |
| 物件番号 | F92BGA06 |
最新のAI技術を活用した相談サービスです。
お客様一人ひとりのニーズに合わせて最適な情報をご提供します。
リハウスAIチャットの詳しい説明はこちら
GoogleMaps
| スーパー | やまか鎌倉店 約700m(徒歩9分) |
| スーパー | 東急ストア 鎌倉店 約880m(徒歩11分) |
| 公園 | 由比ガ浜はぜ公園 約560m(徒歩7分) |
| 病院 | かまくらファミリークリニック 約490m(徒歩7分) |
| 小学校 | 鎌倉市立御成小学校 約500m(徒歩7分) |
| 中学校 | 鎌倉市立御成中学校 約210m(徒歩3分) |
| その他利便施設1 | ファミリーマート 鎌倉御成町店 約560m(徒歩7分) |
| その他利便施設2 | スギドラッグ 鎌倉駅前店 約940m(徒歩12分) |
| その他利便施設3 | 鎌倉市役所 約500m(徒歩7分) |
三井不動産リアルティ株式会社
国土交通大臣(15)第777号
0120-622-031
0120-622-031
物件の売却をご検討の方は、 はやめの査定依頼がおすすめです!
買い替えをご検討の方はこちら0120-622-031

