瀬戸市高根町3丁目戸建
1,680万円



| 物件種別 | 中古戸建 |
| 所在地 | GoogleMaps |
| 交通 | 愛知環状鉄道 瀬戸口駅 徒歩23分 |
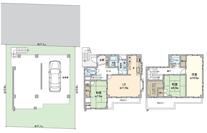
| 間取り | 3LDK |
| 建物面積 | 111.49㎡(約33.72坪) |
| 土地面積 | 140.03㎡(約42.35坪) |
| 築年月 | 1994年03月築 |
この物件情報を共有する
予約制内覧会を開催します!
| 開催日 | 5月2日(土)10:00 ~ 17:00 5月3日(日)10:00 ~ 17:00 5月9日(土)10:00 ~ 17:00 5月10日(日)10:00 ~ 17:00 5月16日(土)10:00 ~ 17:00 |
|---|
おすすめポイント
■おすすめポイント ▼立地 ・愛知環状鉄道「瀬戸口」駅徒歩23分 ▼特徴 ・土地面積140.03平米(約42.35坪) ・建物面積111.49平米(約33.72坪) ・ウォークインクローゼット有 ・トイレ2箇所有 ・駐車スペース有(車種による)
物件情報
| 所在地 | GoogleMaps |
| 価格 | 1,680万円 |
| 交通 | 愛知環状鉄道 瀬戸口駅 徒歩23分 |
| その他費用 | - |
| 間取り | 3LDK |
| 建物面積 | 111.49㎡(約33.72坪) |
| 土地面積 | 140.03㎡(約42.35坪) |
| 築年月 | 1994年03月築 |
| 建物構造 | 鉄骨造2階建 |
| 現況 | 空家 |
| 駐車場 | - |
| 土地権利 | 所有権 |
| 地目 | 宅地 |
| 接道状況 | 北東側: 約 5m (公道) |
| 建ぺい率 | 60% |
| 容積率 | 200% |
| 用途地域 | 準工業地域 |
| 都市計画 | 市街化区域 |
| 備考 | 【小学校について】通学路の指定につきましては各学校、教育委員会へご確認ください。 |
| 引渡時期 | 相談 |
| 取引態様 | 仲介 |
| 更新日 | 2026年04月26日 |
| 次回更新予定 | 2026年05月10日 |
| 物件番号 | FA5BDA10 |
この物件のことを
AIに聞いてみませんか?
最新のAI技術を活用した相談サービスです。
お客様一人ひとりのニーズに合わせて最適な情報をご提供します。
リハウスAIチャットの詳しい説明はこちら

周辺情報
GoogleMaps
| スーパー | カネスエ三郷店 約900m(徒歩12分) |
| スーパー | 西友瀬戸店 約1000m(徒歩13分) |
| 小学校 | 幡山西小学校 約1160m(徒歩15分) |
| 中学校 | 幡山中学校 約2400m(徒歩30分) |
| その他利便施設1 | セブンイレブン瀬戸高根町店 約560m(徒歩7分) |
| その他利便施設2 | セブンイレブン瀬戸西本地町店 約720m(徒歩9分) |
| その他利便施設3 | ドラッグスギヤマ本地店 約280m(徒歩4分) |
| その他利便施設4 | アイセイ薬局尾張旭店 約720m(徒歩9分) |
| その他利便施設5 | 瀬戸本地簡易郵便局 約690m(徒歩9分) |
取扱店舗
三井のリハウス 徳重センター
- 営業時間10:00~18:00
- 定休日毎週火曜日・水曜日
0120-16-0031
瀬戸市の物件情報
この物件のリノベーションに関する問い合わせはこちらから。
リノベーション工事の可能範囲については、本物件の管理組合規約等により一定の制限が加わる場合がございます。詳細については、工事内容の確定後に判明する部分もありますので、この点については事前にお含みおきください。
リノベーションに関するお問い合わせこの物件を見学してみませんか?
この物件についてお問い合わせ
物件・住環境の詳しい情報、購入・ローン相談など、ささいなことでもお気軽にお問い合わせください。三井のリハウス 徳重センター
- 営業時間10:00~18:00
- 定休日毎週火曜日・水曜日
0120-16-0031

物件の売却をご検討の方は、 はやめの査定依頼がおすすめです!
買い替えをご検討の方はこちら見学予約
お問い合わせ
0120-16-0031
- 営業時間 10:00~18:00
- 定休日 毎週火曜日・水曜日

