一宮市三条
名鉄尾西線 奥町駅 徒歩27分
4LDK
建物面積:96.07㎡
土地面積:110.21㎡
2026年01月築(予定)
2,598万円



| 物件種別 | 中古戸建 |
| 所在地 | GoogleMaps |
| 交通 | 名鉄名古屋本線 名鉄一宮駅 バス14分 尾西公園前 停歩13分 |
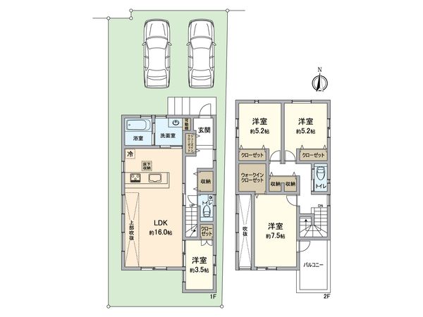
| 間取り | 4LDK |
| 建物面積 | 99.37㎡(約30.05坪) |
| 土地面積 | 122.86㎡(約37.16坪) |
| 築年月 | 2024年08月築 |
返済計画を入力すると毎月のお支払い目安を表示できます
-物件のおすすめポイント- ▼立地 ・名鉄名古屋本線名鉄一宮駅 バス14分 名鉄バス尾西公園前停 徒歩13分 ▼建物の特徴 ・築後未入居のオール電化住宅 ・並列駐車2台可(車種による) ▼お部屋の特徴 ・LDK約16帖 ・リビングに吹抜あり ・廊下収納あり ・玄関にシューズクロークあり ・2階ウォークインクローゼットあり ▼設備 ・IHコンロ・食洗機付キッチン ・1階タンクレストイレ ・浴室暖房乾燥機あり ▼周辺環境 ・三条小学校まで約750m ・尾西第一中学校まで約550m ■ ご希望の住まい探しをお手伝いします ━━━━━・・・ 物件の詳細・ご相談はお気軽にお問い合わせください。
| 所在地 | GoogleMaps |
| 価格 | 2,598万円 |
| 交通 | 名鉄名古屋本線 名鉄一宮駅 バス14分 尾西公園前 停歩13分 |
| その他費用 | - |
| 間取り | 4LDK |
| 建物面積 | 99.37㎡(約30.05坪) |
| 土地面積 | 122.86㎡(約37.16坪) |
| 築年月 | 2024年08月築 |
| 建物構造 | 木造2階建 |
| 現況 | 空家 |
| 駐車場 | - |
| 土地権利 | 所有権 |
| 地目 | 雑種地 |
| 接道状況 | 北側: 約 4m (公道) |
| 建ぺい率 | 60% |
| 容積率 | 200%(前面道路幅員による制限を受けます) |
| 用途地域 | 第一種住居地域 |
| 都市計画 | 市街化区域 |
| 備考 | ① |
| 引渡時期 | 相談 |
| 取引態様 | 仲介 |
| 更新日 | 2025年12月08日 |
| 次回更新予定 | 2025年12月22日 |
| 物件番号 | FB2AGA57 |
最新のAI技術を活用した相談サービスです。
お客様一人ひとりのニーズに合わせて最適な情報をご提供します。
リハウスAIチャットの詳しい説明はこちら
GoogleMaps
| スーパー | スーパー三心三条店 約990m(徒歩13分) |
| 公園 | 第3号三条緑地 約400m(徒歩5分) |
| 小学校 | 三条小学校 約750m(徒歩10分) |
| 中学校 | 尾西第一中学校 約550m(徒歩7分) |
| その他利便施設1 | ミニストップ一宮三条店 約500m(徒歩7分) |
| その他利便施設2 | ゲンキー尾西三条店 約730m(徒歩10分) |
| その他利便施設3 | 尾西三条郵便局 約820m(徒歩11分) |
0120-32-1931
0120-32-1931
物件の売却をご検討の方は、 はやめの査定依頼がおすすめです!
買い替えをご検討の方はこちら0120-32-1931

