清須市土田2丁目
名鉄名古屋本線 新清洲駅 徒歩11分
3LDK
建物面積:99㎡
土地面積:151.23㎡
2019年03月築
4,680万円



| 物件種別 | 中古戸建 |
| 所在地 | GoogleMaps |
| 交通 | 名鉄名古屋本線 丸ノ内駅 徒歩4分 |
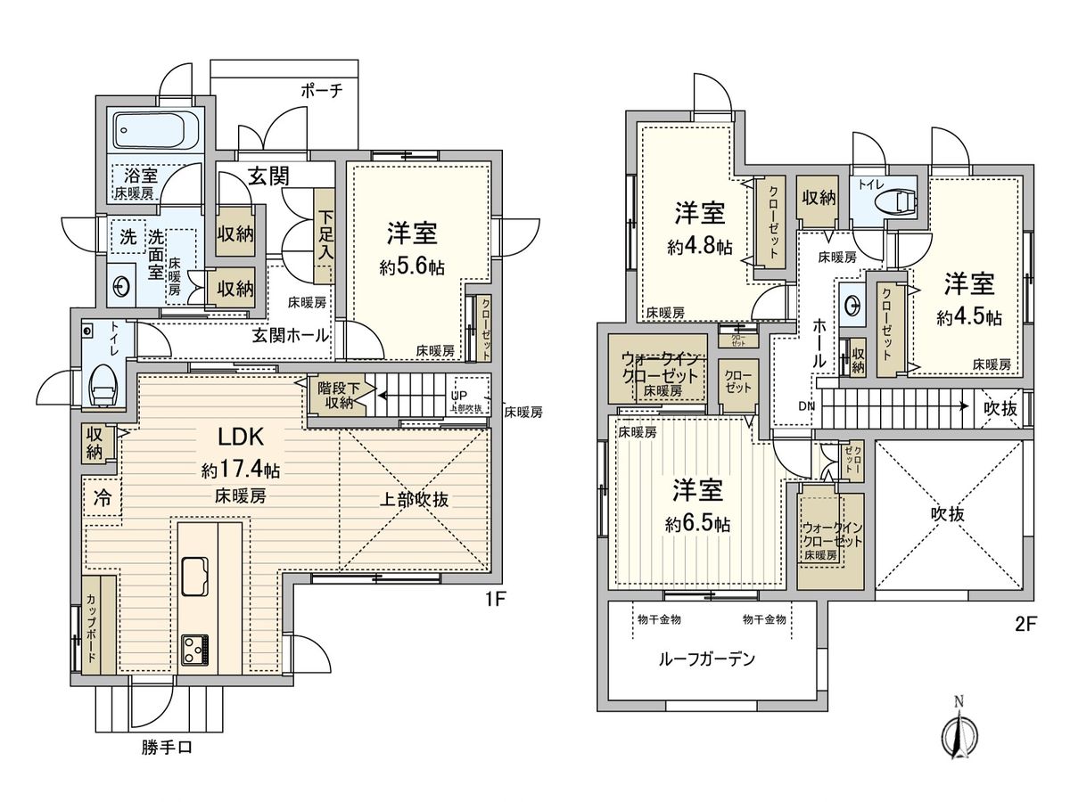
| 間取り | 4LDK |
| 建物面積 | 106.71㎡(約32.27坪) |
| 土地面積 | 160.19㎡(約48.45坪) |
| 築年月 | 2019年04月築 |
-物件のおすすめポイント- ▼立地 ・名鉄名古屋本線「丸ノ内」駅 徒歩約4分 ▼建物の特徴 ・ 一条工務店施工 ・平成31年4月建築 ・敷地面積 約48坪 ・駐車スペース3台分(車種による)カーポート1台分あり ・太陽と雨の力で汚れを落とす光触媒の外壁 ▼お部屋の特徴 ・ 吹き抜けのある開放感あふれるリビングダイニング ・ 掃除がしやすい全居室フローリング仕様 ・ 家族間のコミュニケーションが増えるリビング階段 ・ ウォークインクローゼット等収納充実(2階洋室2箇所) ・ 雨の日も洗濯物が濡れにくい2階ルーフガーデン ▼設備 ・寒い冬でも足元を暖めてくれる床暖房設置 (リビング・キッチン・洋室・洗面・浴室・) ・ お手入れが簡単なIHクッキングヒーター付 ・ 追い焚き機能が付いたユニットバス ・ トイレには快適な温水洗浄便座付 ■ ご希望の住まい探しをお手伝いします ━━━━━・・・ 物件の詳細・ご相談はお気軽にお問い合わせください。
室内を内覧しているように物件を見学することができます。
| 所在地 | GoogleMaps |
| 価格 | 4,680万円 |
| 交通 | 名鉄名古屋本線 丸ノ内駅 徒歩4分 |
| その他費用 | - |
| 間取り | 4LDK |
| 建物面積 | 106.71㎡(約32.27坪) |
| 土地面積 | 160.19㎡(約48.45坪) |
| 築年月 | 2019年04月築 |
| 建物構造 | 木造2階建 |
| 現況 | 空家 |
| 駐車場 | - |
| 土地権利 | 所有権 |
| 地目 | 宅地 |
| 接道状況 | 北側: 約 6m (公道) |
| 建ぺい率 | 60% |
| 容積率 | 200% |
| 用途地域 | 第一種住居地域 |
| 都市計画 | 市街化区域 |
| 備考 | ④ |
| 引渡時期 | 相談 |
| 取引態様 | 仲介 |
| 更新日 | 2026年04月27日 |
| 次回更新予定 | 2026年05月11日 |
| 物件番号 | FB3AUA19 |
最新のAI技術を活用した相談サービスです。
お客様一人ひとりのニーズに合わせて最適な情報をご提供します。
リハウスAIチャットの詳しい説明はこちら
GoogleMaps
| スーパー | フィール清須店 約1100m(徒歩14分) |
| 小学校 | 清須東小学校 約760m(徒歩10分) |
| 中学校 | 清洲中学校 約2040m(徒歩26分) |
| その他利便施設1 | ファミリーマート清洲丸の内店 約510m(徒歩7分) |
| その他利便施設2 | ウエルシア清洲店 約690m(徒歩9分) |
| その他利便施設3 | 清洲丸之内郵便局 約470m(徒歩6分) |
0120-33-1931
0120-33-1931
物件の売却をご検討の方は、 はやめの査定依頼がおすすめです!
買い替えをご検討の方はこちら0120-33-1931

