刈谷市野田町新上納
東海道本線(熱海~米原) 野田新町駅 徒歩20分
3SLDK
建物面積:153.34㎡
土地面積:201.23㎡
2003年12月築
4,350万円



| 物件種別 | 中古戸建 |
| 所在地 | GoogleMaps |
| 交通 | 東海道本線(熱海~米原) 東刈谷駅 徒歩17分 |
| 間取り | 4LDK |
| 建物面積 | 132.13㎡(約39.96坪) |
| 土地面積 | 256.86㎡(約77.7坪) |
| 築年月 | 1992年03月築 |
返済計画を入力すると毎月のお支払い目安を表示できます
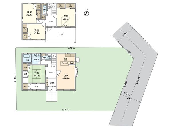
-物件のおすすめポイント- ▼立地 ・東海道本線「東刈谷」駅 徒歩17分 ・前面道路幅員約4.0m 北東角地 ・閑静な住宅街 ▼特徴 ・敷地面積:256.86平米(約77.7坪) ・建物延床面積:132.13平米(約39.9坪) ・平成4年3月築トヨタホーム施工の4LDK ・南向き玄関で明るく迎える住まい ・東向きLDKは約16.1帖の広さ ・和室は約8.0帖で仏間,縁側あり ・2階洋室は約8.4帖、6.8帖、7.2帖の3室 ・ベランダは南向きで日当たり良好 ・浴室に北西向きの窓で換気良好 ・クローゼット,押入など豊富な収納スペースあり ・駐車スペース3台分あり(車種による) ▼リフォーム履歴有り ・2019年1月1階トイレ交換 ・2019年10月給湯器交換 ・2017年7月外壁塗装・ベランダ防水シート張替え ▼周辺環境 ・スーパー,コンビニなど生活施設が徒歩圏内に充実 ■ ご希望の住まい探しをお手伝いします ━━━━━・・・ 物件の詳細・ご相談はお気軽にお問い合わせください。
水回り(1階トイレ交換、2019年10月給湯器交)(2019年1月)
外装(外壁塗装・ベランダ防水シート張替え)(2017年7月)
| 所在地 | GoogleMaps |
| 価格 | 4,350万円 |
| 交通 | 東海道本線(熱海~米原) 東刈谷駅 徒歩17分 |
| その他費用 | - |
| 間取り | 4LDK |
| 建物面積 | 132.13㎡(約39.96坪) |
| 土地面積 | 256.86㎡(約77.7坪) |
| 築年月 | 1992年03月築 |
| 建物構造 | 軽量鉄骨造2階建 |
| 現況 | 居住中 |
| 駐車場 | - |
| 土地権利 | 所有権 |
| 地目 | 宅地 |
| 接道状況 | 北側: 約 4m (公道)、東側: 約 4m (公道) |
| 建ぺい率 | 60% |
| 容積率 | 200% |
| 用途地域 | 工業地域 |
| 都市計画 | 市街化区域 |
| 備考 | - |
| 引渡時期 | 相談 |
| 取引態様 | 仲介 |
| 更新日 | 2025年12月21日 |
| 次回更新予定 | 2026年01月04日 |
| 物件番号 | FB7AUA02 |
最新のAI技術を活用した相談サービスです。
お客様一人ひとりのニーズに合わせて最適な情報をご提供します。
リハウスAIチャットの詳しい説明はこちら
GoogleMaps
| スーパー | 問屋スーパーサント刈谷店 約540m(徒歩7分) |
| 公園 | 大脇東公園 約300m(徒歩4分) |
| 公園 | 二本木公園 約320m(徒歩4分) |
| 小学校 | 東刈谷小学校 約820m(徒歩11分) |
| 中学校 | 朝日中学校 約1520m(徒歩19分) |
| その他利便施設1 | ファミリーマート刈谷末広店 約650m(徒歩9分) |
0120-64-0031
0120-64-0031
物件の売却をご検討の方は、 はやめの査定依頼がおすすめです!
買い替えをご検討の方はこちら0120-64-0031

