世田谷区梅丘3丁目
小田急電鉄小田原線 梅ヶ丘駅 徒歩13分
2SLDK
建物面積:109.31㎡
土地面積:95.09㎡
2025年12月築(予定)
17,000 万円



| 物件種別 | 中古戸建 |
| 所在地 | GoogleMaps |
| 交通 | |
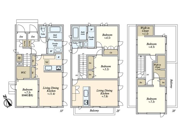
| 間取り | 5LDK |
| 建物面積 | 141.12㎡(約42.68坪) |
| 土地面積 | 98.35㎡(約29.75坪) ※別途私道約3.83㎡有 |
| 築年月 | 2016年07月築 |
予約制内覧会を開催します!
| 開催日 | 10月26日(日)11:00 ~ 17:00 11月1日(土)11:00 ~ 17:00 11月2日(日)11:00 ~ 17:00 11月8日(土)11:00 ~ 17:00 11月9日(日)11:00 ~ 17:00 |
|---|
返済計画を入力すると毎月のお支払い目安を表示できます
-物件のおすすめポイント- ▼立地 ・2路線3駅利用可能な立地 ・小田急小田原線「豪徳寺」駅 徒歩7分 ・小田急小田原線「梅ヶ丘」駅 徒歩8分 ・東急世田谷線「山下」駅 徒歩8分 ▼特徴 ・平成28年7月築 ・角地につき開放感有 ・住友林業施工の二世帯注文住宅 ・1階/1LDK、2・3階/4LDKの間取り ・玄関、リビング、キッチン、浴室、トイレ各2か所有 ・WIC2か所有り、豊富な収納スペース ・ご家族との会話が弾む対面式キッチン ・駐車スペース有(車種・サイズによる) ▼リフォーム履歴(2025年7月実施) ・2階システムキッチン交換(食器洗浄乾燥機付) ・トイレ交換(温水洗浄便座付) ・クロス貼替 ・床フロアタイル上貼 ・一部建具交換 ・ハウスクリーニング 等 ▼周辺環境 ・第一種低層住居専用地域の閑静な住宅街 ・小学校・中学校徒歩10分圏内、子育てにも適した環境 ■ ご希望の住まい探しをお手伝いします ━━━━━・・・ 物件の詳細・ご相談はお気軽にお問い合わせください。
| 所在地 | GoogleMaps |
| 価格 | 17,000万円 |
| 交通 | |
| その他費用 | - |
| 間取り | 5LDK |
| 建物面積 | 141.12㎡(約42.68坪) |
| 土地面積 | 98.35㎡(約29.75坪) ※別途私道約3.83㎡有 |
| 築年月 | 2016年07月築 |
| 建物構造 | 木造3階建 |
| 現況 | 空家 |
| 駐車場 | - |
| 土地権利 | 所有権 |
| 地目 | 宅地 |
| 接道状況 | 北側: 約 3.7m (公道)、東側: 約 3.7m (公道) |
| 建ぺい率 | 60% |
| 容積率 | 150% |
| 用途地域 | 第一種低層住居専用地域 |
| 都市計画 | 市街化区域 |
| 備考 | 隅切部分面積0.86平米別途有 |
| 引渡時期 | 即時 |
| 取引態様 | 仲介 |
| 更新日 | 2025年10月25日 |
| 次回更新予定 | 2025年11月08日 |
| 物件番号 | FBIASA0C |
GoogleMaps
| スーパー | サミットストア梅ヶ丘店 約670m(徒歩9分) |
| スーパー | 業務スーパー梅ヶ丘店 約520m(徒歩7分) |
| 公園 | 世田谷区立若林五丁目公園 約550m(徒歩7分) |
| 病院 | つぼ内科おなかクリニック 約150m(徒歩2分) |
| 小学校 | 世田谷区立城山小学校 約500m(徒歩7分) |
| 中学校 | 世田谷区立世田谷中学校 約570m(徒歩8分) |
| その他利便施設1 | ファミリーマート小浦世田谷梅丘店 約250m(徒歩4分) |
| その他利便施設2 | ココカラファイン豪徳寺二番店 約610m(徒歩8分) |
| その他利便施設3 | 世田谷梅丘郵便局 約690m(徒歩9分) |
三井不動産リアルティ株式会社
国土交通大臣(15)第777号
0120-923-731
0120-923-731
物件の売却をご検討の方は、 はやめの査定依頼がおすすめです!
買い替えをご検討の方はこちら0120-923-731
