札幌市中央区南二十六条西9丁目
札幌市営軌道線 東屯田通駅 徒歩10分
7LDK
建物面積:238.71㎡
土地面積:216.85㎡
1996年08月築
5,980万円



| 物件種別 | 中古戸建 |
| 所在地 | GoogleMaps |
| 交通 | 札幌市営軌道線 西線16条駅 徒歩3分 |
| 間取り | 4LDK |
| 建物面積 | 168.56㎡(約50.98坪) |
| 土地面積 | 144.76㎡(約43.78坪) |
| 築年月 | 2008年07月築 |
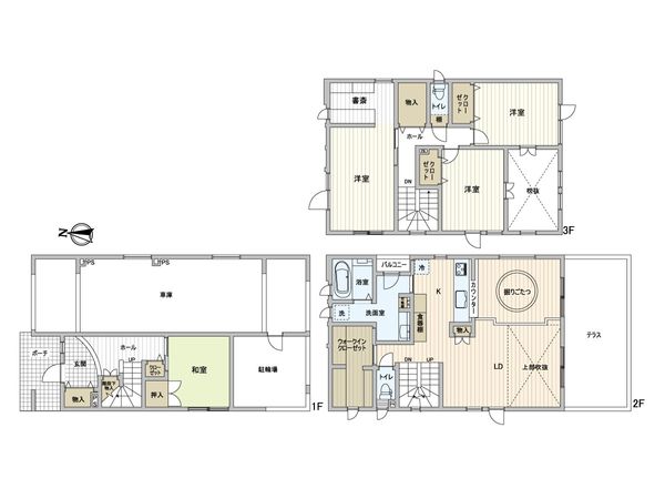
-物件のおすすめポイント- ▼立地 ○ 札幌市電「西線16条」駅 徒歩3分 ○ 伏見小学校まで徒歩2分(約160m)、伏見中学校まで徒歩8分(約580m)とお子様の通学に安心の環境 ○ 徒歩5分圏内にスーパーやコンビニ等の生活利便施設点在 ▼物件の特徴 ○ FPホーム(旧松本建工)旧施工 ○ 平成20年7月築、木・鉄筋コンクリート造の3階建て ○ 3LDK+納戸 ○ 2階リビング部分は吹抜けがあり日当たり・通風良好 ○ リビングから続く南向きのテラスが暮らしに広がりをプラス ○ 広々としたテラスではBBQなどが楽しめます ○ ダイニング部分には掘りごたつを備え、家族団らんの時間がより温かく、心地よく過ごせる空間に ○ 3階南側洋室2部屋の窓からはリビングを見下ろすことができ、ご家族の様子が自然に感じることができます ○ 広い納戸、ウォークインクローゼット、物入等、豊富な収納 ○ 水回りがまとまった家事効率の高い間取 ○ 洋室には書斎として使えるスペースがあり、在宅ワークはもちろんお子様の勉強スペースとしても利用可能 ○ キッチンからつながるバルコニーはゴミの分別に使用可能です ○ 2階と3階にトイレ有り ○ 道路からの視線が入りにくい裏庭があり、ご家族だけの時間を安心してお過ごしいただけます ○ ビルトインガレージに2台駐車可能(車種による制限有り) ■ ご希望の住まい探しをお手伝いします ━━━━━・・・ 物件の詳細・ご相談はお気軽にお問い合わせください。
| 所在地 | GoogleMaps |
| 価格 | 5,980万円 |
| 交通 | 札幌市営軌道線 西線16条駅 徒歩3分 |
| その他費用 | - |
| 間取り | 4LDK |
| 建物面積 | 168.56㎡(約50.98坪) |
| 土地面積 | 144.76㎡(約43.78坪) |
| 築年月 | 2008年07月築 |
| 建物構造 | その他3階建 |
| 現況 | 空家 |
| 駐車場 | - |
| 土地権利 | 所有権 |
| 地目 | 宅地 |
| 接道状況 | 北側: 約 6m (公道) |
| 建ぺい率 | 80% |
| 容積率 | 300% |
| 用途地域 | 近隣商業地域 |
| 都市計画 | 市街化区域 |
| 備考 | - |
| 引渡時期 | 即時 |
| 取引態様 | 仲介 |
| 更新日 | 2026年04月18日 |
| 次回更新予定 | 2026年05月02日 |
| 物件番号 | FC1BAA11 |
最新のAI技術を活用した相談サービスです。
お客様一人ひとりのニーズに合わせて最適な情報をご提供します。
リハウスAIチャットの詳しい説明はこちら
GoogleMaps
| スーパー | フードセンターやまもと 約190m(徒歩3分) |
| スーパー | ラルズマート伏見店 約580m(徒歩8分) |
| 公園 | 伏見もいわ山公園 約200m(徒歩3分) |
| 病院 | 伏見内科 約280m(徒歩4分) |
| 小学校 | 伏見小学校 約160m(徒歩2分) |
| 中学校 | 伏見中学校 約580m(徒歩8分) |
| その他利便施設1 | ツルハドラッグ南20条店 約380m(徒歩5分) |
| その他利便施設2 | セブンイレブン札幌南16条店 約220m(徒歩3分) |
| その他利便施設3 | 山鼻郵便局 約260m(徒歩4分) |
三井不動産リアルティ札幌株式会社
北海道知事石狩(8)第5813号
0120-312-440
0120-312-440
物件の売却をご検討の方は、 はやめの査定依頼がおすすめです!
買い替えをご検討の方はこちら0120-312-440

