大和町吉岡まほろば2丁目 戸建
15,000万円



| 物件種別 | 店舗・事務所(一棟) |
| 所在地 | GoogleMaps |
| 交通 | 仙台市地下鉄南北線 泉中央駅 バス64分 大和町バスターミナル 停歩12分 |
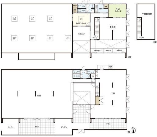
| 間取り | 3K |
| 建物面積 | 327.92㎡(約99.19坪) |
| 土地面積 | 938.95㎡(約284.03坪) |
| 築年月 | 2017年11月築 |
この物件情報を共有する
おすすめポイント
設備
- 屋根裏収納
特徴
- 前面道路幅員6m以上
■おすすめポイント ━━━━━━━━━━━━━━━・・・・・ ○ロードサイドの視認性の高い立地 ○駐車場も広々14台分確保 ○店舗部分は天井も高く、トップライトもあり明るい印象です ○店舗部分・工房部分は入口が分かれているため別々の利用も可能です 〇スーパー、百均、コンビニ等が徒歩圏内に揃っており、急な用事にも対応しやすい 〇役場、銀行、郵便局も徒歩圏内のため、各種手続きがスムーズ ■ライフインフォメーション ━━━━━・・・・・ ○宮城交通「大和町バスターミナル」停 停歩12分 約960m ○セブンイレブン大和吉田高田西店 徒歩1分 約80m ○トライアル大和まほろば店 徒歩2分 約150m ○クスリのアオキ大和町吉岡店 徒歩4分 約250m ○サンデー大和吉岡店 徒歩4分 約320m ○吉岡まほろばクリニック 徒歩7分 約530m ○吉岡南中央公園 徒歩7分 約550m ○ヤマザワ吉岡店 徒歩8分 約610m ○ダイソーヤマザワ吉岡SC店 徒歩9分 約720m ○大和町役場 徒歩10分 約780m ○仙台銀行吉岡支店 徒歩13分 約970m ○吉岡郵便局 徒歩16分 約1220m
物件情報
| 所在地 | GoogleMaps |
| 価格 | 15,000万円 |
| 交通 | 仙台市地下鉄南北線 泉中央駅 バス64分 大和町バスターミナル 停歩12分 |
| その他費用 | - |
| 間取り | 3K |
| 建物面積 | 327.92㎡(約99.19坪) |
| 土地面積 | 938.95㎡(約284.03坪) |
| 築年月 | 2017年11月築 |
| 建物構造 | 木造2階建 |
| 現況 | 居住中 |
| 駐車場 | 有 |
| 土地権利 | 所有権 |
| 地目 | 宅地 |
| 接道状況 | 南西側: 約 26m (公道) |
| 建ぺい率 | 60% |
| 容積率 | 200% |
| 用途地域 | 第二種住居地域 |
| 都市計画 | 市街化区域 |
| 備考 | 駐車場は必ず現地をご確認ください。 |
| 引渡時期 | 相談 |
| 取引態様 | 仲介 |
| 更新日 | 2026年05月14日 |
| 次回更新予定 | 2026年05月28日 |
| 物件番号 | FD2ARA08 |
周辺情報
GoogleMaps
| 公園 | 吉岡南中央公園 約550m(徒歩7分) |
| 病院 | 吉岡まほろばクリニック 約530m(徒歩7分) |
| 小学校 | 大和町立吉岡小学校 約1920m(徒歩24分) |
| 中学校 | 大和町立大和中学校 約2080m(徒歩26分) |
| その他利便施設1 | 宮城交通「大和町バスターミナル」停 約860m(徒歩11分) |
| その他利便施設2 | セブンイレブン大和吉田高田西店 約80m(徒歩1分) |
| その他利便施設3 | クスリのアオキ大和町吉岡店 約250m(徒歩4分) |
| その他利便施設4 | 大和町役場 約780m(徒歩10分) |
| その他利便施設5 | 仙台銀行吉岡支店 約970m(徒歩13分) |
| その他利便施設6 | 吉岡郵便局 約1220m(徒歩16分) |
取扱店舗
三井のリハウス 泉中央センター
- 営業時間10:00~18:00
- 定休日毎週火曜日・水曜日
0120-31-3191
黒川郡大和町の物件情報
この物件を見学してみませんか?
この物件についてお問い合わせ
物件・住環境の詳しい情報、購入・ローン相談など、ささいなことでもお気軽にお問い合わせください。三井のリハウス 泉中央センター
- 営業時間10:00~18:00
- 定休日毎週火曜日・水曜日
0120-31-3191

物件の売却をご検討の方は、 はやめの査定依頼がおすすめです!
買い替えをご検討の方はこちら見学予約
お問い合わせ
0120-31-3191
- 営業時間 10:00~18:00
- 定休日 毎週火曜日・水曜日

