名取市植松ロードサイド事務所倉庫
5LDK/514.14㎡(約155.52坪)
14,500万円



物件情報
おすすめポイント
取扱店舗
| 物件種別 | 事務所(一棟) |
| 所在地 | GoogleMaps |
| 交通 | 東北本線 館腰駅 徒歩7分 |
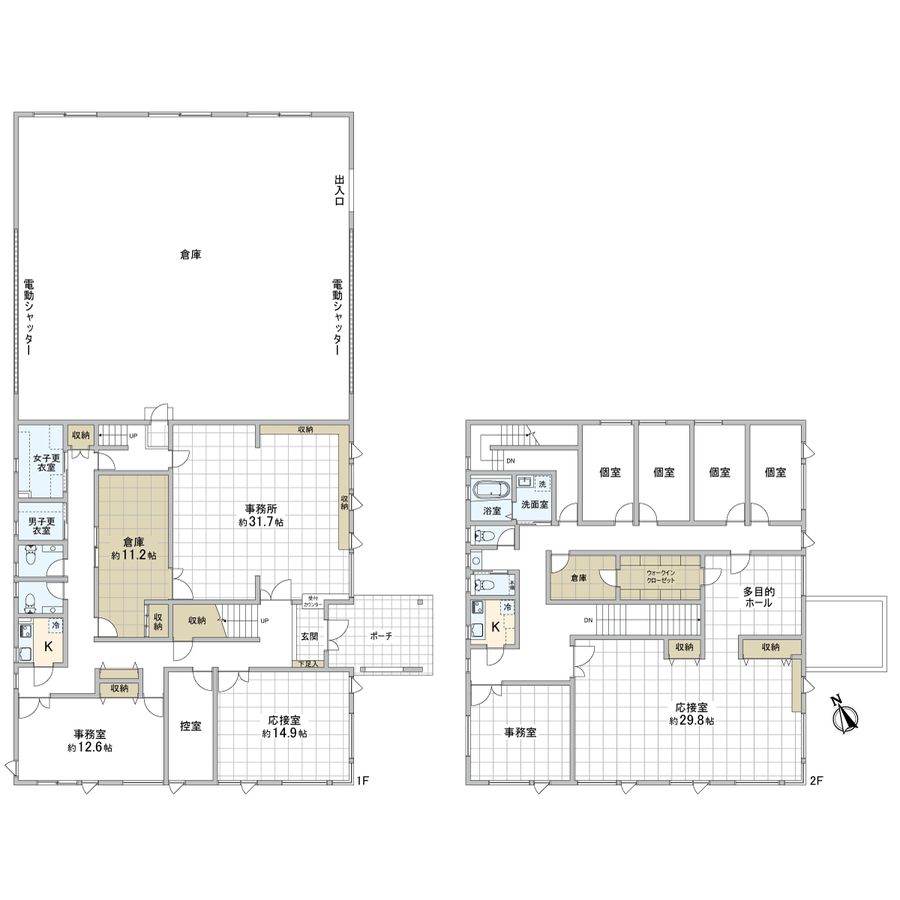
| 間取り | 5LDK |
| 建物面積 | 514.14㎡(約155.52坪) |
| 土地面積 | 1238.39㎡(約374.61坪) |
| 築年月 | 2017年04月築 |
この物件情報を共有する
おすすめポイント
特徴
- 前面道路幅員6m以上
・国道4号バイパス沿い、交通量による視認性が高い立地の事務所倉庫物件です ・土地面積約374.61坪、建物は平成29年築の事務所(木造)+倉庫(鉄骨造)の約155.52坪 ・屋根設置の太陽光発電設備附属 ・敷地内にガレージ(倉庫)あり ・仙台空港や国道沿い商業施設へのアクセスも良好な位置にあります
物件情報
| 所在地 | GoogleMaps |
| 価格 | 14,500万円 |
| 交通 | 東北本線 館腰駅 徒歩7分 |
| その他費用 | - |
| 間取り | 5LDK |
| 建物面積 | 514.14㎡(約155.52坪) |
| 土地面積 | 1238.39㎡(約374.61坪) |
| 築年月 | 2017年04月築 |
| 建物構造 | 木造2階建 |
| 現況 | 居住中 |
| 駐車場 | - |
| 土地権利 | 所有権 |
| 地目 | 宅地 |
| 接道状況 | 東側: 約 24.7m (公道) |
| 建ぺい率 | 60% |
| 容積率 | 200% |
| 用途地域 | 準工業地域 |
| 都市計画 | 市街化区域 |
| 備考 | ・建物構造は一部倉庫部分が鉄骨造となります。 ・屋根設置の太陽光発電設備附属 ・敷地内西にガレージ(倉庫)、北側カーポート駐車場あり |
| 引渡時期 | 相談 |
| 取引態様 | 仲介 |
| 更新日 | 2026年04月17日 |
| 次回更新予定 | 2026年05月01日 |
| 物件番号 | FD8BTA01 |
取扱店舗
ソリューション営業部 営業グループ
- 営業時間
- 09:30~18:00
- 定休日
- 水曜・日曜 ※2026/5/2(土)~2026/5/6(水)GW休業期間
- 住所
- 宮城県仙台市青葉区一番町4-6-1 仙台第一生命タワービルディング 18F
三井不動産リアルティ東北株式会社
宮城県知事(8)第3998号
ソリューション営業部 営業グループ
- 営業時間09:30~18:00
- 定休日水曜・日曜 ※2026/5/2(土)~2026/5/6(水)GW休業期間
0120-926-331
名取市の物件情報
この物件を見学してみませんか?
この物件についてお問い合わせ
物件・住環境の詳しい情報、購入・ローン相談など、ささいなことでもお気軽にお問い合わせください。ソリューション営業部 営業グループ
- 営業時間09:30~18:00
- 定休日水曜・日曜 ※2026/5/2(土)~2026/5/6(水)GW休業期間
0120-926-331

物件の売却をご検討の方は、 はやめの査定依頼がおすすめです!
買い替えをご検討の方はこちら見学予約
お問い合わせ
0120-926-331
- 営業時間 09:30~18:00
- 定休日 水曜・日曜 ※2026/5/2(土)~2026/5/6(水)GW休業期間

