練馬区西大泉2丁目
西武池袋・豊島線 保谷駅 徒歩20分
5LDK
建物面積:143.26㎡
土地面積:193.67㎡
2004年11月築
10,780万円



| 物件種別 | 中古戸建 |
| 所在地 | GoogleMaps |
| 交通 | 西武池袋・豊島線 大泉学園駅 バス10分 大泉風致地区 停歩12分 |
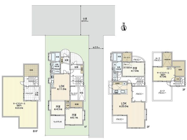
| 間取り | 1階2LDK、2・3階1LDK+S×2 ※S・サービススペースは納戸です |
| 建物面積 | 193.61㎡(約58.56坪) |
| 土地面積 | 145.9㎡(約44.13坪) ※別途私道約19.36㎡有 |
| 築年月 | 2007年07月築 |
■ 物件名 ━━━━━━━━━━━━━━━・・・・・ ○ 練馬区大泉学園町6丁目2世帯住宅 ■ おすすめポイント ━━━━━━━━━━━━━━━・・・・・ ○ 平成19年築のレンガ調外壁の注文住宅 ○ 玄関独立型の2世帯住宅 ○ カースペース2台(車種による) ○ 北側約5.4m公道・東側通路の為、通風良好 ○ 敷地面積約44坪、ゆとりのある敷地 ○ 建物面積約58坪、地下1階付RC・木造3階建 ○ 広々使える約20帖のLDK ○ 天井高約3mの開放感のあるリビング ○ 約23.25帖の地下室有 ○ 小屋裏収納、ロフト、納戸等の豊富な収納があります ○ 1階ウッドデッキ、2階バルコニー、3階両面バルコニー ○ 間取り:1階2LDK、2・3階1LDK+S×2 ○ 3階ルーフバルコニーより晴れた日には富士山も望めます ■ 担当者より ━━━━━━━━━━━━━━━・・・・・ 注文住宅ならではのこだわりの造りとなっております。室内が白を基調としたお部屋の為、明るい空間となっていますので、お問い合わせお待ちしております。
| 所在地 | GoogleMaps |
| 価格 | 10,780万円 |
| 交通 | 西武池袋・豊島線 大泉学園駅 バス10分 大泉風致地区 停歩12分 |
| その他費用 | - |
| 間取り | 1階2LDK、2・3階1LDK+S×2 ※S・サービススペースは納戸です |
| 建物面積 | 193.61㎡(約58.56坪) |
| 土地面積 | 145.9㎡(約44.13坪) ※別途私道約19.36㎡有 |
| 築年月 | 2007年07月築 |
| 建物構造 | 鉄筋コンクリート造3階 地下1階建 |
| 現況 | 居住中 |
| 駐車場 | 有 |
| 土地権利 | 所有権 |
| 地目 | 宅地 |
| 接道状況 | 北側: 約 5.4m (公道) |
| 建ぺい率 | 50% |
| 容積率 | 100% |
| 用途地域 | 第一種低層住居専用地域 |
| 都市計画 | 市街化区域 |
| 備考 | 間取は「1LDK+2S」+「2LDK」の二世帯住宅です |
| 引渡時期 | 相談 |
| 取引態様 | 仲介 |
| 更新日 | 2026年04月25日 |
| 次回更新予定 | 2026年05月09日 |
| 物件番号 | FECARA0B |
最新のAI技術を活用した相談サービスです。
お客様一人ひとりのニーズに合わせて最適な情報をご提供します。
リハウスAIチャットの詳しい説明はこちら
GoogleMaps
| スーパー | ベルク池田店 約770m(徒歩10分) |
| 公園 | おもかげの森緑地 約220m(徒歩3分) |
| 小学校 | 練馬区立大泉学園緑小学校 約890m(徒歩12分) |
| 中学校 | 練馬区立大泉学園中学校 約1330m(徒歩17分) |
| その他利便施設1 | ファミリーマート大泉学園通り店 約700m(徒歩9分) |
| その他利便施設2 | 練馬大泉学園郵便局 約650m(徒歩9分) |
0120-58-1131
0120-58-1131
物件の売却をご検討の方は、 はやめの査定依頼がおすすめです!
買い替えをご検討の方はこちら0120-58-1131

