新座市片山3丁目
西武池袋・豊島線 大泉学園駅 バス19分 久保新田 停歩11分
4SLDK
建物面積:105.99㎡
土地面積:106.13㎡
2011年02月築
4,350万円



| 物件種別 | 中古戸建 |
| 所在地 | GoogleMaps |
| 交通 | |
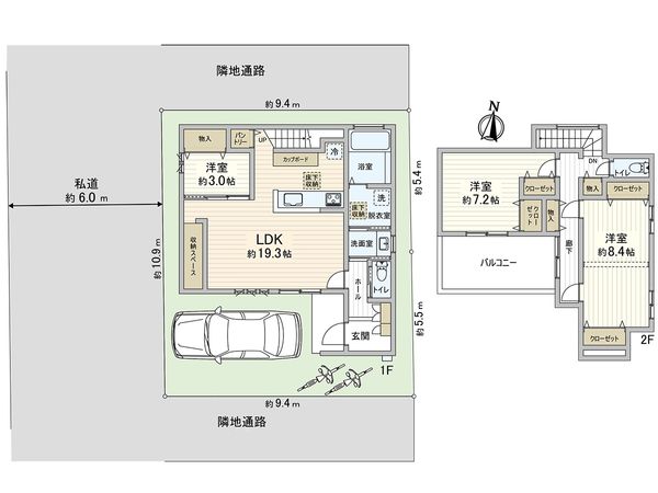
| 間取り | 3LDK |
| 建物面積 | 98.12㎡(約29.68坪) |
| 土地面積 | 103.3㎡(約31.24坪) |
| 築年月 | 2022年12月築 |
返済計画を入力すると毎月のお支払い目安を表示できます
■ 物件名 ━━━━━━━━━━・・・・・ ○ 新座市片山三丁目 戸建 ■ 交通 ━━━━━━━━━━━・・・・・ ○ 西武池袋線 「大泉学園」駅 バス19分 「久保新田」 停歩7分 ○ 西武池袋線 「ひばりヶ丘」駅 バス15分 「あけぼの住宅前」 停歩11分 ■ おすすめポイント ━━━━━・・・・・ ○ 土地面積103.3平米(約31.24坪) ○ 建物面積98.12平米(約29.68坪) ○ 2駅利用可能 ○ 南北隣地通路・西側道路のため陽当たり良好 ○ 令和4年12月築の3LDK ○ 約19.3帖の広々としたLDK ○ LDKは続き間の洋室3帖と合わせると開放感あり ○ 会話の弾む対面式キッチン ○ プライバシーが保たれるハイウォールバルコニー ○ トイレ2箇所(1・2F) ○ 駐車スペースあり(車種による) 〇 スーパーやコンビニ等買い物に便利 ■ 御客様へのメッセージ ━━━━━━━━━━━━━━━・・・・・ この度は物件詳細画面をご覧いただきありがとうございます。 御客様からのお問い合わせを心よりお待ちしております。
| 所在地 | GoogleMaps |
| 価格 | 4,350万円 |
| 交通 | |
| その他費用 | - |
| 間取り | 3LDK |
| 建物面積 | 98.12㎡(約29.68坪) |
| 土地面積 | 103.3㎡(約31.24坪) |
| 築年月 | 2022年12月築 |
| 建物構造 | 木造2階建 |
| 現況 | 居住中 |
| 駐車場 | - |
| 土地権利 | 所有権 |
| 地目 | 宅地 |
| 接道状況 | 西側: 約 6m (公道) |
| 建ぺい率 | 60% |
| 容積率 | 100% |
| 用途地域 | 第一種低層住居専用地域 |
| 都市計画 | 市街化区域 |
| 備考 | - |
| 引渡時期 | 相談 |
| 取引態様 | 仲介 |
| 更新日 | 2026年02月20日 |
| 次回更新予定 | 2026年03月06日 |
| 物件番号 | FECASA0B |
最新のAI技術を活用した相談サービスです。
お客様一人ひとりのニーズに合わせて最適な情報をご提供します。
リハウスAIチャットの詳しい説明はこちら
GoogleMaps
| スーパー | ベルク池田店 約480m(徒歩6分) |
| スーパー | サミットストア新座片山店 約640m(徒歩8分) |
| 公園 | 片山三丁目第二児童遊園 約270m(徒歩4分) |
| 病院 | 瀧島医院 約570m(徒歩8分) |
| 小学校 | 新座市立片山小学校 約900m(徒歩12分) |
| 中学校 | 新座市立第三中学校 約1400m(徒歩18分) |
| その他利便施設1 | セブンイレブン練馬西大泉6丁目店 約870m(徒歩11分) |
0120-58-1131
0120-58-1131
物件の売却をご検討の方は、 はやめの査定依頼がおすすめです!
買い替えをご検討の方はこちら0120-58-1131

