綾瀬市深谷上5丁目
相模鉄道本線 さがみ野駅 バス16分 本郷 停歩2分
3LDK
建物面積:92.73㎡
土地面積:94.19㎡
新築
3,480万円



| 物件種別 | 中古戸建 |
| 所在地 | GoogleMaps |
| 交通 | |
| 間取り | 2LDK |
| 建物面積 | 86.88㎡(約26.28坪) |
| 土地面積 | 88.66㎡(約26.81坪) |
| 築年月 | 2023年02月築 |
返済計画を入力すると毎月のお支払い目安を表示できます
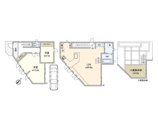
▼おすすめポイント ・モデルハウスとして使用していたため、室内良好 ・サクラ・オーク等の無垢フローリング仕様 ・珪藻土を使った壁 ・断熱材セルロースファイバー使用 ・LDKは約20.5帖とゆったりくつろげる空間 ・温かい自然光が入る南向きの約12.3帖の洋室 ・カースペース1台分あり(車種による) ・窓のある明るいシステムキッチン ・窓があり、換気しやすく明るい浴室・脱衣所 ・使い勝手の良い約5.2帖の小屋裏収納付 ・南道路に面しているため日当たり良好 ・角地につき開放感あり ・道路との高低差の少ない平坦地 ▼周辺環境 ・区画整理事業地のため、住環境良好 ・南側にさえぎる建物がないため、開放感あり ■ お気軽にお問合せください━━━━━━━━━━━━━━━・・・・・ 物件見学のご要望、購入に際しての諸費用、住宅ローン、その他ご相談も承ります。 下方にございます「お問合せ」または「見学予約」にて、もしくはフリーコール「0120-944-431」までお気軽にお問合せください。 キッズコーナーもご用意しておりますので、小さなお子様をお連れしてのご来店も歓迎です。 駐車場はビナウォーク提携駐車場(※)をご利用いただくか、近隣のコインパーキングに駐車の際は弊店にて精算させていただきます。 皆様からのお問い合わせ、心よりお待ちしております。 (※)ビナウォーク内にある地下駐車場は市営駐車場のため提携しておりません。ご注意ください。
| 所在地 | GoogleMaps |
| 価格 | 3,480万円 |
| 交通 | |
| その他費用 | - |
| 間取り | 2LDK |
| 建物面積 | 86.88㎡(約26.28坪) |
| 土地面積 | 88.66㎡(約26.81坪) |
| 築年月 | 2023年02月築 |
| 建物構造 | 木造2階建 |
| 現況 | 空家 |
| 駐車場 | 有 |
| 土地権利 | 所有権 |
| 地目 | 宅地 |
| 接道状況 | 南側: 約 12m (公道)、西側: 約 11.6m (公道) |
| 建ぺい率 | 60% |
| 容積率 | 200% |
| 用途地域 | 第一種中高層住居専用地域 |
| 都市計画 | 市街化区域 |
| 備考 | - |
| 引渡時期 | 即時 |
| 取引態様 | 仲介 |
| 更新日 | 2026年01月26日 |
| 次回更新予定 | 2026年02月09日 |
| 物件番号 | FEKAWA06 |
最新のAI技術を活用した相談サービスです。
お客様一人ひとりのニーズに合わせて最適な情報をご提供します。
リハウスAIチャットの詳しい説明はこちら
GoogleMaps
| スーパー | 業務スーパー綾瀬中央店 約730m(徒歩10分) |
| スーパー | フレッシュマム綾瀬深谷上店 約520m(徒歩7分) |
| スーパー | ヤオコー綾瀬店 約790m(徒歩10分) |
| 公園 | 深谷中央1号公園 約270m(徒歩4分) |
| 病院 | 原クリニック 約650m(徒歩9分) |
| 小学校 | 綾瀬市立寺尾小学校 約690m(徒歩9分) |
| 中学校 | 綾瀬市立綾北中学校 約990m(徒歩13分) |
| その他利便施設1 | セブンイレブン綾瀬早川店 約720m(徒歩9分) |
| その他利便施設2 | 綾瀬市役所 約640m(徒歩8分) |
| その他利便施設3 | ザマーケットプレイス綾瀬 約790m(徒歩10分) |
三井不動産リアルティ株式会社
国土交通大臣(15)第777号
0120-944-431
0120-944-431
物件の売却をご検討の方は、 はやめの査定依頼がおすすめです!
買い替えをご検討の方はこちら0120-944-431

