練馬区豊玉南2丁目
西武新宿線 野方駅 徒歩15分
1K
建物面積:255㎡
土地面積:231.53㎡
1984年08月築
17,980万円



| 物件種別 | 中古戸建 |
| 所在地 | GoogleMaps |
| 交通 | |
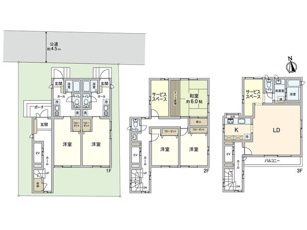
| 間取り | 3SLDK ※S・サービススペースは納戸です |
| 建物面積 | 182.02㎡(約55.06坪) |
| 土地面積 | 121.42㎡(約36.72坪) |
| 築年月 | 1998年03月築 |
■ 交通 ━━━━━━━━━━━━━・・・・・ ○ 西武池袋・豊島・有楽町線「 練馬」駅 徒歩5分 〇 都営大江戸線「練馬」駅 徒歩6分 ■ おすすめポイント ━━━━━━━━━━━━━━━・・・・・ 〇 4路線利用可能 ○ 賃貸併用3階建て戸建 ○ ホームエレベーターあり 〇 南に面したリビングは3階のため陽当たり通風良好 〇 南に面した明るい洋室 〇 多目的に使用できる納戸あり 〇 3階には南向きバルコニー設置 〇 南町小学校まで徒歩約1分と子育て世帯にもおすすめ 〇 賃貸併用住宅(1K×2戸、3SSLDK) 【担当者より】 この度は物件詳細をご覧くださり、ありがとうございます。 「練馬」駅徒歩5分の戸建のご紹介です。 お気軽にお問い合わせください。
| 所在地 | GoogleMaps |
| 価格 | 17,980万円 |
| 交通 | |
| その他費用 | - |
| 間取り | 3SLDK ※S・サービススペースは納戸です |
| 建物面積 | 182.02㎡(約55.06坪) |
| 土地面積 | 121.42㎡(約36.72坪) |
| 築年月 | 1998年03月築 |
| 建物構造 | 軽量鉄骨造3階建 |
| 現況 | 空家 |
| 駐車場 | 有 |
| 土地権利 | 所有権 |
| 地目 | 宅地 |
| 接道状況 | 北側: 約 4.5m (公道) |
| 建ぺい率 | 60% |
| 容積率 | 200% |
| 用途地域 | 第一種中高層住居専用地域 |
| 都市計画 | 市街化区域 |
| 備考 | - |
| 引渡時期 | 相談 |
| 取引態様 | 仲介 |
| 更新日 | 2026年04月03日 |
| 次回更新予定 | 2026年04月17日 |
| 物件番号 | FK5BBA18 |
最新のAI技術を活用した相談サービスです。
お客様一人ひとりのニーズに合わせて最適な情報をご提供します。
リハウスAIチャットの詳しい説明はこちら
GoogleMaps
| スーパー | ライフココネリ練馬駅前店 約400m(徒歩5分) |
| スーパー | 西友練馬店 約450m(徒歩6分) |
| 病院 | 小原クリニック 約230m(徒歩3分) |
| 小学校 | 練馬区立南町小学校 約70m(徒歩1分) |
| 中学校 | 練馬区立開進第二中学校 約300m(徒歩4分) |
| その他利便施設1 | 西武池袋線 練馬駅(中央口) 約340m(徒歩5分) |
| その他利便施設2 | 練馬駅(都営地下鉄 大江戸線) 約420m(徒歩6分) |
| その他利便施設3 | セブンイレブン練馬駅北口店 約290m(徒歩4分) |
| その他利便施設4 | ファミリーマート練馬駅西口店 約400m(徒歩5分) |
| その他利便施設5 | トモズCoconeri店 約450m(徒歩6分) |
| その他利便施設6 | 練馬二郵便局 約350m(徒歩5分) |
0120-77-4131
リノベーション工事の可能範囲については、本物件の管理組合規約等により一定の制限が加わる場合がございます。詳細については、工事内容の確定後に判明する部分もありますので、この点については事前にお含みおきください。
リノベーションに関するお問い合わせ0120-77-4131
物件の売却をご検討の方は、 はやめの査定依頼がおすすめです!
買い替えをご検討の方はこちら0120-77-4131

