世田谷区祖師谷6丁目
京王電鉄京王線 千歳烏山駅 徒歩16分
2SLDK
建物面積:68.85㎡
土地面積:44.42㎡
2008年05月築
4,980万円



| 物件種別 | 中古戸建 |
| 所在地 | GoogleMaps |
| 交通 | |
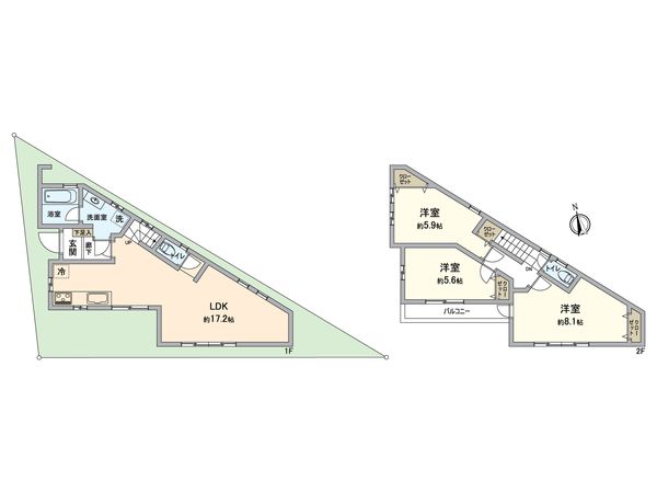
| 間取り | 3LDK |
| 建物面積 | 84.34㎡(約25.51坪) |
| 土地面積 | 79㎡(約23.89坪) ※但し高圧電線路下面積有 (約40.25㎡) |
| 築年月 | 2011年08月築 |
-物件のおすすめポイント- ▼立地 ・京王線2駅利用可 「仙川」駅徒歩18分 特急停車駅「千歳烏山」駅徒歩22分 ▼建物の特徴 ・南向きのため陽当たり良好 ・カースペースあり(車種による) ・建物が隣接しておらず独立感がございます ・西側、南側が道路及び通路のため、日当たり・通風良好です ・西側私道につき、人通りが少なく落ち着いた環境です ▼お部屋の特徴 ・二面採光で明るく風通しの良いリビングダイニング ・キッチン部分にも2箇所窓あり ・コミュニケーションの取りやすいリビング階段 ・全居室収納あり ▼設備 ・床暖房(LD部分) ・全居室複層ガラス ・トイレ2箇所 ▼周辺環境 ・閑静な住宅街 ・緑も多く遊具も充実した給田四丁目緑地まで約410m ■ ご希望の住まい探しをお手伝いします ━━━━━・・・ 物件の詳細・ご相談はお気軽にお問い合わせください。
| 所在地 | GoogleMaps |
| 価格 | 4,980万円 |
| 交通 | |
| その他費用 | - |
| 間取り | 3LDK |
| 建物面積 | 84.34㎡(約25.51坪) |
| 土地面積 | 79㎡(約23.89坪) ※但し高圧電線路下面積有 (約40.25㎡) |
| 築年月 | 2011年08月築 |
| 建物構造 | 木造2階建 |
| 現況 | 空家 |
| 駐車場 | 有 |
| 土地権利 | 所有権 |
| 地目 | 宅地 |
| 接道状況 | 西側: 約 6m (私道) |
| 建ぺい率 | 60% |
| 容積率 | 200% |
| 用途地域 | 第一種住居地域 |
| 都市計画 | 市街化区域 |
| 備考 | ※敷地一部に送電線路の地役権設定あり |
| 引渡時期 | 相談 |
| 取引態様 | 仲介 |
| 更新日 | 2026年04月16日 |
| 次回更新予定 | 2026年04月30日 |
| 物件番号 | FKKASA02 |
最新のAI技術を活用した相談サービスです。
お客様一人ひとりのニーズに合わせて最適な情報をご提供します。
リハウスAIチャットの詳しい説明はこちら
GoogleMaps
| スーパー | まいばすけっと世田谷給田4丁目店 約660m(徒歩9分) |
| 公園 | 給田五丁目公園 約240m(徒歩3分) |
| 病院 | 昭和大学附属烏山病院 約1050m(徒歩14分) |
| 病院 | いりえ内科クリニック 約550m(徒歩7分) |
| 小学校 | 世田谷区立給田小学校 約820m(徒歩11分) |
| 中学校 | 世田谷区立上祖師谷中学校 約2040m(徒歩26分) |
| その他利便施設1 | セブンイレブン三鷹北野4丁目店 約340m(徒歩5分) |
| その他利便施設2 | ファミリーマートサンズ三鷹北野店 約560m(徒歩7分) |
| その他利便施設3 | ドラッグセイムス世田谷給田店 約520m(徒歩7分) |
| その他利便施設4 | 調布緑ケ丘郵便局 約600m(徒歩8分) |
三井不動産リアルティ株式会社
国土交通大臣(15)第777号
0120-921-031
0120-921-031
物件の売却をご検討の方は、 はやめの査定依頼がおすすめです!
買い替えをご検討の方はこちら0120-921-031

