東海市富木島町峰畑 戸建
2,980万円



| 物件種別 | 中古戸建 |
| 所在地 | GoogleMaps |
| 交通 | |
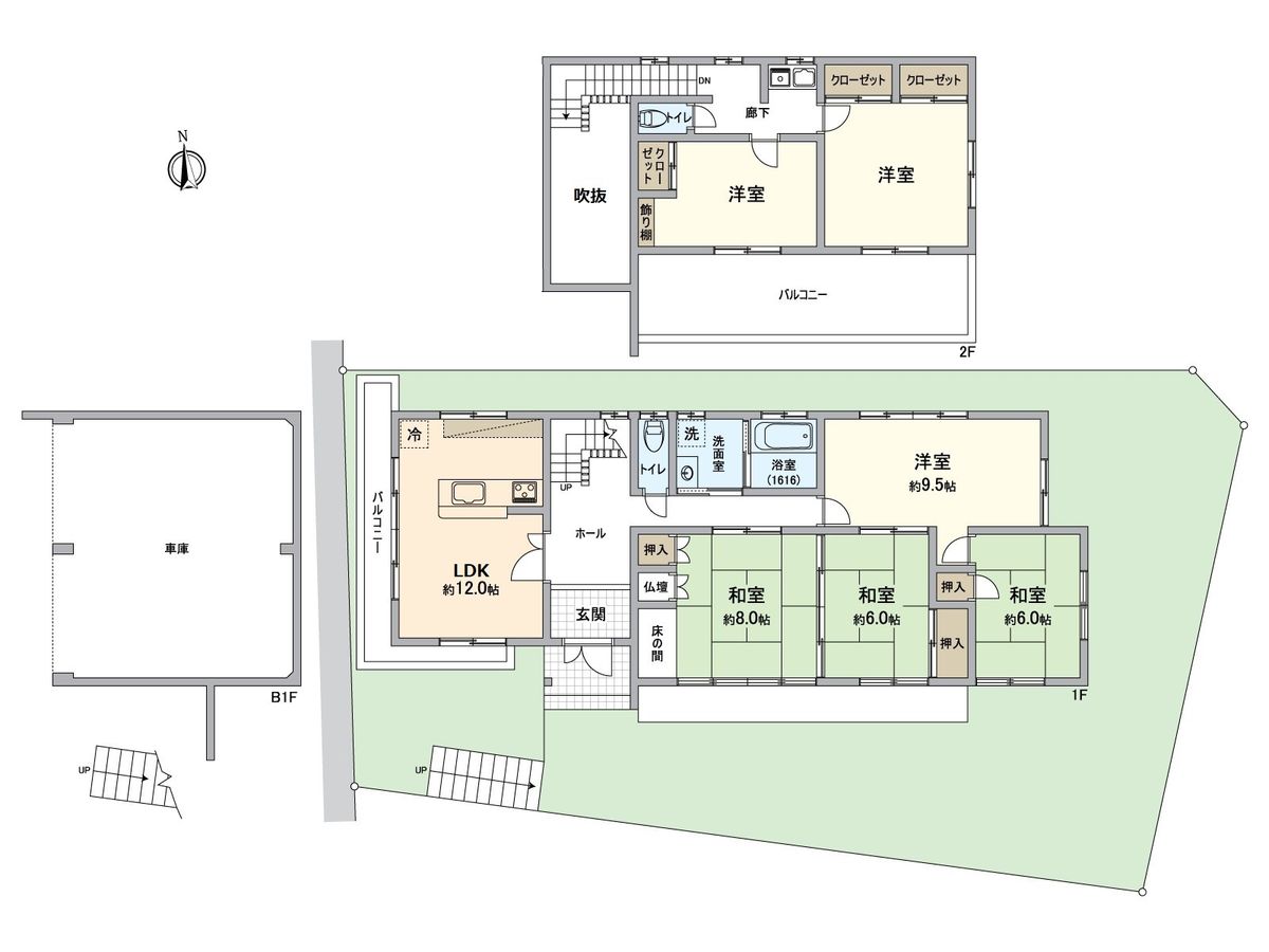
| 間取り | 6LDK |
| 建物面積 | 169.38㎡(約51.23坪) |
| 土地面積 | 228.79㎡(約69.2坪) |
| 築年月 | 1978年10月築 |
この物件情報を共有する
予約制内覧会を開催します!
| 開催日 | 12月6日(土)10:00 ~ 17:00 12月7日(日)10:00 ~ 17:00 12月13日(土)10:00 ~ 17:00 12月14日(日)10:00 ~ 17:00 12月20日(土)10:00 ~ 17:00 |
|---|
毎月のお支払い目安
返済計画を入力すると毎月のお支払い目安を表示できます
- ローン84,121円
- 管理費+修繕積立金0円
- その他費用0円
おすすめポイント
特徴
- 吹抜け
■おすすめポイント ━━━━━━━━━━━━━━━・・・・・ 〇 6LDK 〇 車庫2台分あり(車種によります) 〇 土地面積:約69.20坪 〇 家族との会話が弾む対面式キッチン 〇 落ち着いた雰囲気の和室が3室 〇 玄関ホールは開放感のある吹き抜けあり 〇 余裕のある広さの庭あり 〇 高台につき、日当たり、風通し、見晴らし良好 〇 道路向かいが大池公園につき、春の桜、夏の花火、 四季の移り変わりを部屋から楽しめます ■リフォーム履歴 ━━━━━━━━━━━━━━━・・・・・ 2014年11月~2015年3月 ・キッチン、浴室、洗面所、トイレ、給湯器新品交換 ・1階リビングダイニング、北東側洋室の床、クロス貼り換え ・外壁再塗装 ・耐震補強
お客様の安心取引を支える 360°サポート
360°サポートとはリノベーション&リフォーム情報
台所(キッチン)交換 | バスルーム交換 |
トイレ交換 | 洗面化粧台交換 |
床貼り替え | 給湯器交換 |
水回り(キッチン、浴室、トイレ、洗面所、給湯器)(2014年11月)
内装(床、壁)(2014年11月)
外装(外壁、屋根、樋・軒天・木部)(2014年11月)
耐震補強 シロアリ予防処理(2014年11月)
物件情報
| 所在地 | GoogleMaps |
| 価格 | 2,980万円 |
| 交通 | |
| その他費用 | - |
| 間取り | 6LDK |
| 建物面積 | 169.38㎡(約51.23坪) |
| 土地面積 | 228.79㎡(約69.2坪) |
| 築年月 | 1978年10月築 |
| 建物構造 | 木造2階 地下1階建 |
| 現況 | 空家 |
| 駐車場 | - |
| 土地権利 | 所有権 |
| 地目 | 宅地 |
| 接道状況 | 西側: 約 5m (公道) |
| 建ぺい率 | 60% |
| 容積率 | 200% |
| 用途地域 | 第一種住居地域 |
| 都市計画 | 市街化区域 |
| 備考 | 上記建物面積のうち地下車庫面積36.54㎡含む |
| 引渡時期 | 相談 |
| 取引態様 | 仲介 |
| 更新日 | 2025年11月28日 |
| 次回更新予定 | 2025年12月12日 |
| 物件番号 | FKVARA03 |
この物件のことを
AIに聞いてみませんか?
最新のAI技術を活用した相談サービスです。
お客様一人ひとりのニーズに合わせて最適な情報をご提供します。
リハウスAIチャットの詳しい説明はこちら

周辺情報
GoogleMaps
| スーパー | マックスバリュ東海荒尾店 約380m(徒歩5分) |
| 公園 | 大池公園 約60m(徒歩1分) |
| 小学校 | 東海市立平洲小学校 約820m(徒歩11分) |
| 中学校 | 東海市立平洲中学校 約940m(徒歩12分) |
| その他利便施設1 | セブンイレブン東海市富木島前田面店 約400m(徒歩5分) |
| その他利便施設2 | ゲンキー富木島店 約560m(徒歩7分) |
| その他利便施設3 | 東海富木島郵便局 約410m(徒歩6分) |
| その他利便施設4 | 名古屋銀行東海支店 約570m(徒歩8分) |
| その他利便施設5 | 市立中央図書館 約250m(徒歩4分) |
取扱店舗
三井のリハウス 大府センター
- 営業時間10:00~18:00
- 定休日毎週火曜日・水曜日
0120-04-1531
あなたへのおすすめ
東海市の物件情報
この物件を見学してみませんか?
この物件についてお問い合わせ
物件・住環境の詳しい情報、購入・ローン相談など、ささいなことでもお気軽にお問い合わせください。三井のリハウス 大府センター
- 営業時間10:00~18:00
- 定休日毎週火曜日・水曜日
0120-04-1531

物件の売却をご検討の方は、 はやめの査定依頼がおすすめです!
買い替えをご検討の方はこちら見学予約
お問い合わせ
0120-04-1531
- 営業時間 10:00~18:00
- 定休日 毎週火曜日・水曜日







