大府市江端町5丁目
東海道本線(熱海~米原) 大府駅 徒歩9分
4LDK
建物面積:123.89㎡
土地面積:144.25㎡
2021年07月築
7,500万円



| 物件種別 | 中古戸建 |
| 所在地 | GoogleMaps |
| 交通 | |
| 間取り | 4LDK |
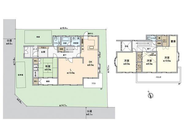
| 建物面積 | 154.2㎡(約46.64坪) |
| 土地面積 | 231㎡(約69.87坪) |
| 築年月 | 1993年12月築 |
予約制内覧会を開催します!
| 開催日 | 5月16日(土)10:00 ~ 17:00 5月17日(日)10:00 ~ 17:00 5月23日(土)10:00 ~ 17:00 5月24日(日)10:00 ~ 17:00 5月30日(土)10:00 ~ 17:00 |
|---|
■おすすめポイント ━━━━━━━━━━━━━━━・・・・・ 〇 東海道本線・武豊線「大府」駅 徒歩9分 〇 南側道路に面した角地につき解放感あり 〇 閑静な住宅地内で整然とした街並み 〇 広々としたリビング約21.5帖 〇 ゆとりある約8.0帖の和室 〇 2階洋室に書斎有 〇 駐車スペース2台分可能(車種によります)
| 所在地 | GoogleMaps |
| 価格 | 7,500万円 |
| 交通 | |
| その他費用 | - |
| 間取り | 4LDK |
| 建物面積 | 154.2㎡(約46.64坪) |
| 土地面積 | 231㎡(約69.87坪) |
| 築年月 | 1993年12月築 |
| 建物構造 | 木造2階建 |
| 現況 | 空家 |
| 駐車場 | - |
| 土地権利 | 所有権 |
| 地目 | 畑(現況地目:宅地) |
| 接道状況 | 南側: 約 6.1m (公道)、西側: 約 6m (公道) |
| 建ぺい率 | 60% |
| 容積率 | 100% |
| 用途地域 | 第一種低層住居専用地域 |
| 都市計画 | 市街化区域 |
| 備考 | - |
| 引渡時期 | 相談 |
| 取引態様 | 仲介 |
| 更新日 | 2026年05月02日 |
| 次回更新予定 | 2026年05月16日 |
| 物件番号 | FKVAWA0A |
最新のAI技術を活用した相談サービスです。
お客様一人ひとりのニーズに合わせて最適な情報をご提供します。
リハウスAIチャットの詳しい説明はこちら
GoogleMaps
| スーパー | フィールキャンパス 約320m(徒歩4分) |
| 公園 | 江端公園 約270m(徒歩4分) |
| 小学校 | 大府市立石ヶ瀬小学校 約620m(徒歩8分) |
| 中学校 | 大府市立大府西中学校 約2500m(徒歩32分) |
| その他利便施設1 | セブンイレブン大府駅西店 約260m(徒歩4分) |
| その他利便施設2 | サンドラッグ大府店 約1450m(徒歩19分) |
| その他利便施設3 | 大府森岡郵便局 約820m(徒歩11分) |
| その他利便施設4 | 知多信用金庫大府支店 約340m(徒歩5分) |
0120-04-1531
0120-04-1531
物件の売却をご検討の方は、 はやめの査定依頼がおすすめです!
買い替えをご検討の方はこちら0120-04-1531

