横浜市磯子区岡村2丁目
横浜市ブルーライン 弘明寺駅 バス8分 天神前 停歩3分
4LDK
建物面積:104.75㎡
土地面積:108.01㎡
2025年12月築(予定)
3,980万円



| 物件種別 | 中古戸建 |
| 所在地 | GoogleMaps |
| 交通 | |
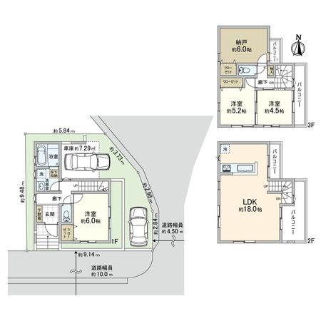
| 間取り | 3SLDK ※S・サービススペースは納戸です |
| 建物面積 | 92.34㎡(約27.93坪) |
| 土地面積 | 70.39㎡(約21.29坪) |
| 築年月 | 2020年02月築 |
予約制内覧会を開催します!
| 開催日 | 12月12日(金)11:00 ~ 16:00 12月13日(土)11:00 ~ 16:00 12月14日(日)11:00 ~ 16:00 12月15日(月)11:00 ~ 16:00 12月16日(火)11:00 ~ 16:00 |
|---|
返済計画を入力すると毎月のお支払い目安を表示できます
-物件のおすすめポイント- ▼立地 ・横浜市ブルーライン 蒔田駅 徒歩17分 ・横浜市ブルーライン 吉野町駅 徒歩20分 ▼建物の特徴 ・2020年2月築、築浅3階建一戸建 ・南東角地に位置し、陽光が差し込む明るい3SLDK ・東側隣地が公園のため、緑に囲まれつつも眺望の開けたロケーション ・敷地内にカースペース2台分を確保(車種制限あり) ・広々とした南側道路(幅約10.0m)は歩道も整備された開放感と安心感のある住環境 ▼お部屋の特徴 ・約18.0帖のLDKは家族がゆったりと過ごせる広さ ・LDKは南・東・西の3方向から光が入り、明るく風通しのよい空間 ・ゴミや日用品の仮置きに便利なキッチン横のバルコニー ・家族の顔を合わせる機会が自然と増えるリビングイン階段 ・3階洋室は引戸を開放すれば一体利用でき、ライフスタイルに応じた柔軟な設計 ・各洋室は2面採光で明るさと風通しに配慮した住空間 ・約6.0帖の納戸にはバルコニーと収納がついており、多目的に活用可能 ▼設備 ・調理中もリビングを見渡せる対面式キッチン ・雨の日の洗濯にも便利な浴室乾燥機 ■ご希望の住まい探しをお手伝いします ━━━━━ ・・・ 物件の詳細・ご相談はお気軽にお問い合わせください。
| 所在地 | GoogleMaps |
| 価格 | 3,980万円 |
| 交通 | |
| その他費用 | - |
| 間取り | 3SLDK ※S・サービススペースは納戸です |
| 建物面積 | 92.34㎡(約27.93坪) |
| 土地面積 | 70.39㎡(約21.29坪) |
| 築年月 | 2020年02月築 |
| 建物構造 | 木造3階建 |
| 現況 | 居住中 |
| 駐車場 | 有 |
| 土地権利 | 所有権 |
| 地目 | 宅地 |
| 接道状況 | 南側: 約 10m (公道)、東側: 約 4.5m (公道) |
| 建ぺい率 | 60% |
| 容積率 | 200% |
| 用途地域 | 第一種住居地域 |
| 都市計画 | 市街化区域 |
| 備考 | - |
| 引渡時期 | 相談 |
| 取引態様 | 仲介 |
| 更新日 | 2025年12月07日 |
| 次回更新予定 | 2025年12月21日 |
| 物件番号 | FL2ASA34 |
最新のAI技術を活用した相談サービスです。
お客様一人ひとりのニーズに合わせて最適な情報をご提供します。
リハウスAIチャットの詳しい説明はこちら
GoogleMaps
| スーパー | 京急ストア磯子丸山店 約250m(徒歩4分) |
| スーパー | ヤオコー横浜天神橋店 約450m(徒歩6分) |
| 公園 | 丸山一丁目公園 約30m(徒歩1分) |
| 病院 | 横浜市立脳卒中・神経脊椎センター 約350m(徒歩5分) |
| 小学校 | 横浜市立滝頭小学校 約550m(徒歩7分) |
| 中学校 | 横浜市立岡村中学校 約1500m(徒歩19分) |
| その他利便施設1 | ローソン磯子丸山一丁目店 約350m(徒歩5分) |
| その他利便施設2 | ファミリーマート磯子丸山二丁目店 約700m(徒歩9分) |
| その他利便施設3 | クリエイトエス・ディー磯子丸山店 約850m(徒歩11分) |
| その他利便施設4 | 横浜中村橋郵便局 約900m(徒歩12分) |
0120-297-131
0120-297-131
物件の売却をご検討の方は、 はやめの査定依頼がおすすめです!
買い替えをご検討の方はこちら0120-297-131

