保土ケ谷区境木本町(戸建)
6,980万円



| 物件種別 | 中古戸建 |
| 所在地 | GoogleMaps |
| 交通 | 横須賀線 東戸塚駅 徒歩17分 |
| 間取り | 3LDK |
| 建物面積 | 178.1㎡(約53.87坪) |
| 土地面積 | 172.7㎡(約52.24坪) |
| 築年月 | 1998年12月築 |
この物件情報を共有する
予約制内覧会を開催します!
| 開催日 | 5月16日(土)11:00 ~ 16:00 5月17日(日)11:00 ~ 16:00 5月18日(月)11:00 ~ 16:00 5月19日(火)11:00 ~ 16:00 5月20日(水)11:00 ~ 16:00 |
|---|
おすすめポイント
設備
- 屋根裏収納
特徴
- 前面道路幅員6m以上
- 開発分譲地内
- 吹抜け
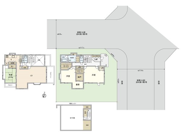
-物件のおすすめポイント- 【三井ホームの注文住宅(全館空調システム)】 ▼立地 ・JR横須賀線「東戸塚」駅 徒歩17分 ・東戸塚グリーンタウン旧分譲地内 ・東、北角地の為日当たりが良く開放感があります ・ゆとりある前面道路、東側約11.4m(歩道含む)・北側約6.5m ・前面道路より敷地が高く歩行者の視線が気になりにくい立地 ・ガーデニングも楽しめる外構・植栽計画 (アンティークレンガ敷、南東側はイングリッシュガーデン風、南西側は日本庭園風、おしゃれな物置も設置) ▼建物の特徴 (1階) ・東側玄関は吹き抜けかつ上部にステンドグラスもあり、明るく開放感のある空間です ・玄関吹き抜けの最大天井高は約5.1m ・洋室にミニキッチン付きで2世帯としてもご検討いただけます ・洋室はドアが2カ所有、ライフスタイルに合わせ分割して使用することも可能 ・主寝室には書斎コーナーを設け、ウォークインクローゼットと納戸を備えた、ゆとりある空間設計 (2階) ・ゆとりあるリビングは梁のないすっきりとした天井が特徴。バルコニーに面した開放的な空間が広がります ・リビングには収納力豊富なロフト付き ・リビングの最大天井高は約4.5m ・独立型キッチンは北・西の2方向に窓を備え、明るく心地よい空間 ・キッチン脇には便利な作業スペース有 ・バルコニーは2カ所有。東側はベランダガーデンも楽しめる広さ、南西側は物干しに適したスペース (地下車庫) ・2台分駐車可能(※車種による) ・1階から内階段でアクセスでき雨の日も安心 ・雨風・日差しからも守られ、車のメンテナンスにもプラス ・備蓄用倉庫スペース、ゴミ一時置き場付 ▼リフォーム内容 ・屋根、外壁全面塗装(2022年9月) ・キッチン、浴室、洗面室、トイレ2カ所 交換(2022年9月) ・全館空調システム交換(1F:2021年9月、2F:2024年7月) ■ご希望の住まい探しをお手伝いします ━━━━━ ・・・ 物件の詳細・ご相談はお気軽にお問い合わせください
お客様の安心取引を支える 360°サポート
360°サポートとはリノベーション&リフォーム情報
台所(キッチン)交換 | バスルーム交換 |
トイレ交換 | 洗面化粧台交換 |
水回り(キッチン、浴室、トイレ、洗面所)(2022年9月)
外装(外壁、屋根)(2022年9月)
全館空調システム 1F:2021年9月、2F:2024年7月(2021年9月)
物件情報
| 所在地 | GoogleMaps |
| 価格 | 6,980万円 |
| 交通 | 横須賀線 東戸塚駅 徒歩17分 |
| その他費用 | - |
| 間取り | 3LDK |
| 建物面積 | 178.1㎡(約53.87坪) |
| 土地面積 | 172.7㎡(約52.24坪) |
| 築年月 | 1998年12月築 |
| 建物構造 | 木造2階 地下1階建 |
| 現況 | 空家 |
| 駐車場 | 有 |
| 土地権利 | 所有権 |
| 地目 | 宅地 |
| 接道状況 | 東側: 約 11.4m (公道)、北側: 約 6.5m (公道) |
| 建ぺい率 | 50% |
| 容積率 | 80% |
| 用途地域 | 第一種低層住居専用地域 |
| 都市計画 | 市街化区域 |
| 備考 | 建物面積に地下車庫面積44.37平米を含みます |
| 引渡時期 | 即時 |
| 取引態様 | 仲介 |
| 更新日 | 2026年05月14日 |
| 次回更新予定 | 2026年05月28日 |
| 物件番号 | FL2AUA11 |
この物件のことを
AIに聞いてみませんか?
最新のAI技術を活用した相談サービスです。
お客様一人ひとりのニーズに合わせて最適な情報をご提供します。
リハウスAIチャットの詳しい説明はこちら

周辺情報
GoogleMaps
| スーパー | まいばすけっと権太坂1丁目店 約630m(徒歩8分) |
| スーパー | オーケー東戸塚店 約1110m(徒歩14分) |
| 公園 | 境木第二公園 約80m(徒歩1分) |
| 病院 | 田辺医院 約570m(徒歩8分) |
| 小学校 | 境木小学校 約620m(徒歩8分) |
| 中学校 | 横浜市立境木中学校 約730m(徒歩10分) |
| その他利便施設1 | ローソン権太坂一丁目店 約670m(徒歩9分) |
| その他利便施設2 | セブンイレブン横浜境木町店 約860m(徒歩11分) |
| その他利便施設3 | クリエイトエス・ディー戸塚品濃町店 約820m(徒歩11分) |
| その他利便施設4 | 西武東戸塚S.C. 約1240m(徒歩16分) |
取扱店舗
三井のリハウス 横浜センター
- 営業時間10:00~18:00
- 定休日毎週水曜日
0120-297-131
あなたへのおすすめ
横浜市保土ケ谷区の物件情報
この物件を見学してみませんか?
この物件についてお問い合わせ
物件・住環境の詳しい情報、購入・ローン相談など、ささいなことでもお気軽にお問い合わせください。三井のリハウス 横浜センター
- 営業時間10:00~18:00
- 定休日毎週水曜日
0120-297-131

物件の売却をご検討の方は、 はやめの査定依頼がおすすめです!
買い替えをご検討の方はこちら見学予約
お問い合わせ
0120-297-131
- 営業時間 10:00~18:00
- 定休日 毎週水曜日









