越谷市レイクタウン1丁目
武蔵野線 越谷レイクタウン駅 徒歩15分
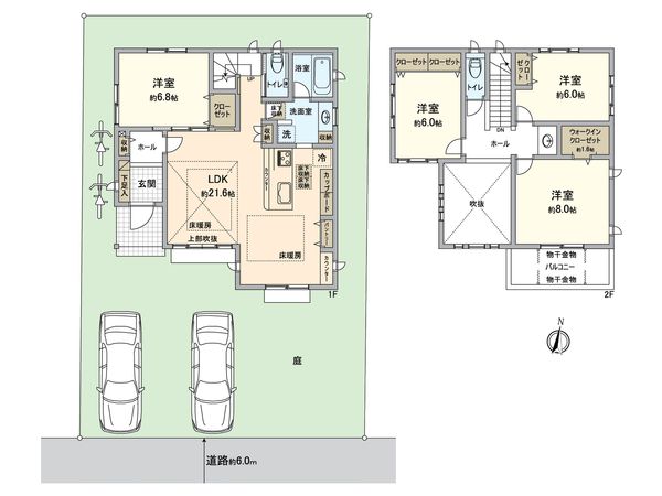
4SLDK
建物面積:150.19㎡
土地面積:167.39㎡
2019年01月築
10,980万円



| 物件種別 | 中古戸建 |
| 所在地 | GoogleMaps |
| 交通 | 武蔵野線 越谷レイクタウン駅 徒歩9分 |
| 間取り | 4LDK |
| 建物面積 | 115.49㎡(約34.93坪) |
| 土地面積 | 180.01㎡(約54.45坪) |
| 築年月 | 2015年05月築 |
-物件のおすすめポイント- ▼立地 ・JR武蔵野線「越谷レイクタウン」駅徒歩9分 ▼建物の特徴 ・パナホーム(株)施工、軽量鉄骨造の4LDK ・南側約6.0m道路につき日当たり良好 ・お庭ではガーデニングやビニールプールが楽しめます ・オール電化住宅 ▼お部屋の特徴 ・全居室6.0帖以上、LDK約21.6帖の使いやすい間取り ・吹き抜けのある開放感あふれるLDK ・全居室に収納スペース有り ▼設備 ・床下収納、ウォークインクローゼット等収納豊富 ・雨の日の洗濯にも便利な浴室乾燥機 ・LDK部分には冬でも快適な床暖房 ・快適な暮らしを守る電動シャッター(1階窓) ・カースペース2台分(車種制限有り) ■ ご希望の住まい探しをお手伝いします ━━━━━・・・ 物件の詳細・ご相談はお気軽にお問い合わせください。
| 所在地 | GoogleMaps |
| 価格 | 10,980万円 |
| 交通 | 武蔵野線 越谷レイクタウン駅 徒歩9分 |
| その他費用 | - |
| 間取り | 4LDK |
| 建物面積 | 115.49㎡(約34.93坪) |
| 土地面積 | 180.01㎡(約54.45坪) |
| 築年月 | 2015年05月築 |
| 建物構造 | 軽量鉄骨造2階建 |
| 現況 | 居住中 |
| 駐車場 | 有 |
| 土地権利 | 所有権 |
| 地目 | 宅地 |
| 接道状況 | - |
| 建ぺい率 | 50% |
| 容積率 | 100% |
| 用途地域 | 第一種低層住居専用地域 |
| 都市計画 | 市街化区域 |
| 備考 | ※管理費:月額2,000円 ※越谷レイクタウン北地区計画区域内 |
| 引渡時期 | 相談 |
| 取引態様 | 仲介 |
| 更新日 | 2026年05月14日 |
| 次回更新予定 | 2026年05月28日 |
| 物件番号 | FLRAUA0B |
最新のAI技術を活用した相談サービスです。
お客様一人ひとりのニーズに合わせて最適な情報をご提供します。
リハウスAIチャットの詳しい説明はこちら
GoogleMaps
| スーパー | カスミフードスクエア越谷レイクタウン店 約610m(徒歩8分) |
| 公園 | レイクタウン美季の杜公園 約40m(徒歩1分) |
| 病院 | 越谷レイクタウン内科 約800m(徒歩10分) |
| 小学校 | 明正小学校 約1180m(徒歩15分) |
| 中学校 | 光陽中学校 約1050m(徒歩14分) |
| その他利便施設1 | セブンイレブン越谷レイクタウン9丁目店 約270m(徒歩4分) |
| その他利便施設2 | ケーズデンキ越谷レイクタウン店 約350m(徒歩5分) |
| その他利便施設3 | イオンレイクタウンkaze 約750m(徒歩10分) |
| その他利便施設4 | 越谷レイクタウン駅 約690m(徒歩9分) |
三井不動産リアルティ株式会社
国土交通大臣(15)第777号
0120-977-321
0120-977-321
物件の売却をご検討の方は、 はやめの査定依頼がおすすめです!
買い替えをご検討の方はこちら0120-977-321

