ふじみ野市苗間 戸建
3,280万円



| 物件種別 | 中古戸建 |
| 所在地 | GoogleMaps |
| 交通 | 東武東上線 ふじみ野駅 徒歩9分 |
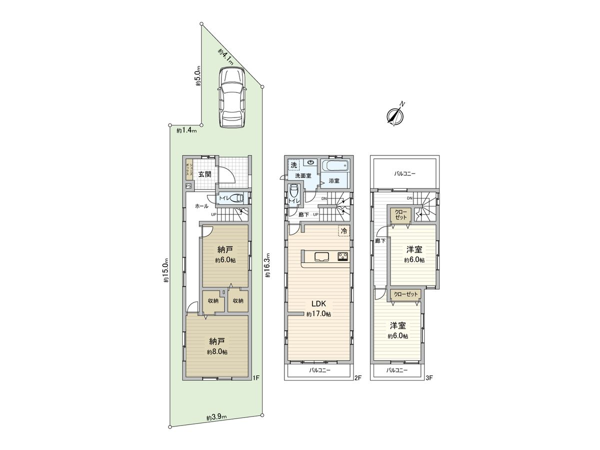
| 間取り | 2SLDK ※S・サービススペースは納戸です |
| 建物面積 | 111.37㎡(約33.68坪) |
| 土地面積 | 75.5㎡(約22.83坪) |
| 築年月 | 2011年04月築 |
この物件情報を共有する
おすすめポイント
設備
- 浴室乾燥機
- TVモニタ付インターホン
特徴
- 前面道路幅員6m以上
■ アクセス ━━━━━━━━━━━━━━━・・・・・ ○ 東武東上線「ふじみ野」駅徒歩9分 ■ おすすめポイント ━━━━━━━━━━━━━━━・・・・・ ○ 「ふじみ野」駅徒歩圏内の好立地 ○ 前面約16m公道 ○ 建物面積111.37平米(約33坪)の3階建て ○ 収納豊富な2SLDKの間取り ○ LDK広々約17.0帖 ○ バルコニー3ヶ所、北西と南東の2面バルコニー ○ 全居室2面採光につき通風良好 ○ カースペースあり(車種による) ○ ショッピングセンタートナリエふじみ野まで徒歩7分(約490m) ○ 買い物施設・公園まで徒歩圏内 ○ 学区内の小・中学校へ通学しやすい立地 ■ 設備 ━━━━━━━━━━━━━━━・・・・・ ○ システムキッチン ○ 浴室換気乾燥暖房機 ○ トイレ2ヶ所 ○ 温水洗浄便座 ○ 納戸2ケ所 ○ シューズボックス ○ 床下収納あり ○ TVモニター付インターホン ■ リフォーム履歴(令和7年7月実施) ━━━━━━━━━━━━━━━・・・・・ 【交換】システムキッチン、ユニットバス、洗面化粧台、トイレ2ケ所、 【張替】クロス(全室)、LDKフローリング 【その他】屋根・外装塗装工事、宅配ボックス新規設置、バルコニー防水施工 ■ 周辺環境 ━━━━━━━━━━━━━━━・・・・・ ○ 東原小学校 徒歩17分(約1310m) ○ 大井中学校 徒歩22分(約1690m) ○ 東武ストアフエンテふじみ野店 徒歩9分(約710m) ○ ロピアふじみ野店 徒歩8分(約640m) ○ ローソンふじみ野苗間店 徒歩2分(約150m) ○ ドラッグセガミトナリエふじみ野店 徒歩7分(約510m) ○ まみ内科クリニック 徒歩6分(約430m) ○ 苗間みほの公園 徒歩6分(約470m)
バーチャルオープンハウス
室内を内覧しているように物件を見学することができます。
リノベーション&リフォーム情報
全室クロス/壁紙貼り替え | 台所(キッチン)交換 |
バスルーム交換 | トイレ交換 |
洗面化粧台交換 | 床貼り替え |
水回り(キッチン、浴室、トイレ、洗面所)(2025年7月)
内装(全室クロス、床、壁)(2025年7月)
外装(屋根・外装塗装工事、バルコニー防水施工等)(2025年7月)
物件情報
| 所在地 | GoogleMaps |
| 価格 | 3,280万円 |
| 交通 | 東武東上線 ふじみ野駅 徒歩9分 |
| その他費用 | - |
| 間取り | 2SLDK ※S・サービススペースは納戸です |
| 建物面積 | 111.37㎡(約33.68坪) |
| 土地面積 | 75.5㎡(約22.83坪) |
| 築年月 | 2011年04月築 |
| 建物構造 | 木造3階建 |
| 現況 | 空家 |
| 駐車場 | 有 |
| 土地権利 | 所有権 |
| 地目 | 宅地 |
| 接道状況 | 北側: 約 16.4m (公道) |
| 建ぺい率 | 60% |
| 容積率 | 200% |
| 用途地域 | 第一種住居地域 |
| 都市計画 | 市街化区域 |
| 備考 | 大井苗間土地区画整理事業区域内 |
| 引渡時期 | 即時 |
| 取引態様 | 仲介 |
| 更新日 | 2026年05月25日 |
| 次回更新予定 | 2026年06月08日 |
| 物件番号 | FLSASA03 |
この物件のことを
AIに聞いてみませんか?
最新のAI技術を活用した相談サービスです。
お客様一人ひとりのニーズに合わせて最適な情報をご提供します。
リハウスAIチャットの詳しい説明はこちら

周辺情報
GoogleMaps
| スーパー | 東武ストアフエンテふじみ野店 約710m(徒歩9分) |
| スーパー | ロピアふじみ野店 約640m(徒歩8分) |
| 公園 | 苗間みほの公園 約470m(徒歩6分) |
| 病院 | まみ内科クリニック 約430m(徒歩6分) |
| 小学校 | 東原小学校 約1310m(徒歩17分) |
| 中学校 | 大井中学校 約1690m(徒歩22分) |
| その他利便施設1 | ローソンふじみ野苗間店 約150m(徒歩2分) |
| その他利便施設2 | ドラッグセガミトナリエふじみ野店 約510m(徒歩7分) |
| その他利便施設3 | トナリエふじみ野 約490m(徒歩7分) |
取扱店舗
- 営業時間
- 10:00~18:00
- 定休日
- 毎週火曜日・水曜日
- 住所
- 埼玉県富士見市ふじみ野西1-21-5 KIビルふじみ野 1F
三井不動産リアルティ株式会社
国土交通大臣(15)第777号
三井のリハウス ふじみ野センター
- 営業時間10:00~18:00
- 定休日毎週火曜日・水曜日
0120-993-431
あなたへのおすすめ
ふじみ野市の物件情報
この物件を見学してみませんか?
この物件についてお問い合わせ
物件・住環境の詳しい情報、購入・ローン相談など、ささいなことでもお気軽にお問い合わせください。三井のリハウス ふじみ野センター
- 営業時間10:00~18:00
- 定休日毎週火曜日・水曜日
0120-993-431

物件の売却をご検討の方は、 はやめの査定依頼がおすすめです!
買い替えをご検討の方はこちら見学予約
お問い合わせ
0120-993-431
- 営業時間 10:00~18:00
- 定休日 毎週火曜日・水曜日









