名古屋市名東区石が根町
名古屋市東山線 本郷駅 徒歩14分
3LDK
建物面積:72.96㎡
土地面積:126.45㎡
2021年03月築
4,780万円



| 物件種別 | 中古戸建 |
| 所在地 | GoogleMaps |
| 交通 | |
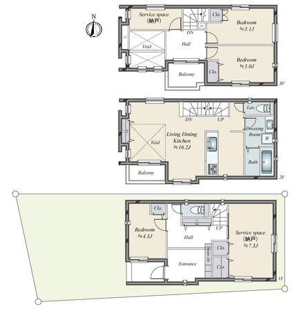
| 間取り | 4SLDK ※S・サービススペースは納戸です |
| 建物面積 | 102.26㎡(約30.93坪) |
| 土地面積 | 88.12㎡(約26.65坪) |
| 築年月 | 2025年06月築 |
-物件のおすすめポイント- ▼立地 ・地下鉄東山線・リニモ「藤が丘」駅徒歩11分(約880m) ・西側約15.9mの公道に接面し開放感あり ▼建物の特徴 ・2025年6月築の3階建4SLDK ・駐車スペース2台分あり(車種による) ▼お部屋の特徴 ・バルコニー南向きのため日当たり良好 ・吹き抜けのあるリビングは明るく開放感があります ・収納スペースの充実した間取り設計 ・ゆとりのある広い玄関 ・家族のコミュニケーションを重視したリビング階段 ・リビング・ダイニングに床暖房があり暖かくお過ごしいただけます ・リビングが見渡せる対面式キッチン ・家事の負担を軽減する食器洗浄乾燥機付き ・約7.5帖の納戸など収納充実 ▼周辺環境 ・Felna富が丘店まで徒歩7分(約530m)で買物便利 ・中段公園まで徒歩4分(約290m)で自然を身近に ・豊が丘小学校まで徒歩4分(約320m)で通学安心 ■ ご希望の住まい探しをお手伝いします ━━━━━・・・ 物件の詳細・ご相談はお気軽にお問い合わせください。
| 所在地 | GoogleMaps |
| 価格 | 4,780万円 |
| 交通 | |
| その他費用 | - |
| 間取り | 4SLDK ※S・サービススペースは納戸です |
| 建物面積 | 102.26㎡(約30.93坪) |
| 土地面積 | 88.12㎡(約26.65坪) |
| 築年月 | 2025年06月築 |
| 建物構造 | 木造3階建 |
| 現況 | 居住中 |
| 駐車場 | 有 |
| 土地権利 | 所有権 |
| 地目 | 宅地 |
| 接道状況 | 西側: 約 15.9m (公道) |
| 建ぺい率 | 60% |
| 容積率 | 200% |
| 用途地域 | 第二種住居地域 |
| 都市計画 | 市街化区域 |
| 備考 | - |
| 引渡時期 | 2026年07月下旬以降 |
| 取引態様 | 仲介 |
| 更新日 | 2026年04月30日 |
| 次回更新予定 | 2026年05月14日 |
| 物件番号 | FLXBAA09 |
最新のAI技術を活用した相談サービスです。
お客様一人ひとりのニーズに合わせて最適な情報をご提供します。
リハウスAIチャットの詳しい説明はこちら
GoogleMaps
| スーパー | Felna富が丘店 約530m(徒歩7分) |
| 公園 | 中段公園 約290m(徒歩4分) |
| 病院 | 都筑内科クリニック 約250m(徒歩4分) |
| 小学校 | 豊が丘小学校 約320m(徒歩4分) |
| 中学校 | 藤森中学校 約990m(徒歩13分) |
| その他利便施設1 | スギドラッグ富が丘店 約450m(徒歩6分) |
| その他利便施設2 | セブンイレブン名古屋豊が丘店 約160m(徒歩2分) |
| その他利便施設3 | 名古屋豊が丘郵便局 約390m(徒歩5分) |
0120-984-731
0120-984-731
物件の売却をご検討の方は、 はやめの査定依頼がおすすめです!
買い替えをご検討の方はこちら0120-984-731

