西東京市泉町2丁目
西武池袋・豊島線 ひばりヶ丘駅 徒歩19分
6LDK
建物面積:259.12㎡
土地面積:297.61㎡
2001年08月築
10,700万円

リハウスおすすめ物件


| 物件種別 | 中古戸建 |
| 所在地 | GoogleMaps |
| 交通 | |
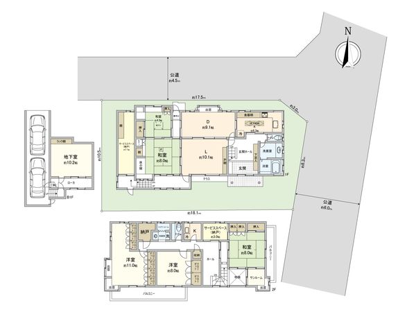
| 間取り | 6SLDK ※S・サービススペースは納戸です |
| 建物面積 | 265.1㎡(約80.19坪) |
| 土地面積 | 198.5㎡(約60.04坪) |
| 築年月 | 1986年12月築 |
返済計画を入力すると毎月のお支払い目安を表示できます
■ おすすめポイント ――――――――――・・・・・ 〇落ち着きある和風建築の佇まい 凛とした和の美意識が随所に息づく格調高い住まいです 〇炉・水屋・茶庭をしつらえた和室は、 穏やかな茶の湯のひとときにご利用いただけます 和の趣きをゆったりとお楽しみいただけます 〇約6m公道×約4.5m公道に面した開放感あふれる北東角地で、 やわらかな陽光が住まい全体を包み込む心地よい環境 〇土地面積198.5平米 建物面積265.1平米 ビルトインガレージ(2台分 ※車種による)を備えたゆとりの6LDK+K+3S(納戸) 多様なライフスタイルに対応できる贅沢な間取り 〇音を気にせずご利用いただける防音の地下室を完備 楽器演奏やシアタールーム、趣味の空間としてお使いいただけます 〇四季の移ろいを楽しめる吹き抜けとサンルームは特別な空間です ■ アクセス ―――――――――――――・・・・・ 〇JR中央線「武蔵境」駅 徒歩18分 〇西武新宿線「田無」駅 徒歩22分 〇JR中央線「吉祥寺」駅 バス28分「樋口橋」停歩2分 〇西武新宿線「田無」駅 バス11分「岩倉高校グラウンド前」停歩7分 〇西武池袋線「ひばりが丘」駅 バス25分 「岩倉高校グラウンド前」停 徒歩7分 〇3路線利用可 ■ ライフインフォメーション ―――――――――――――・・・・・ 〇レッドロブスター 武蔵野関前店 約300m(徒歩5分) ※画像の一部は実際の外観と家財写真をもとに、CGにて合成、再現したイメージで、実際とは多少異なります。
| 所在地 | GoogleMaps |
| 価格 | 10,700万円 |
| 交通 | |
| その他費用 | - |
| 間取り | 6SLDK ※S・サービススペースは納戸です |
| 建物面積 | 265.1㎡(約80.19坪) |
| 土地面積 | 198.5㎡(約60.04坪) |
| 築年月 | 1986年12月築 |
| 建物構造 | 木造2階 地下1階建 |
| 現況 | 居住中 |
| 駐車場 | - |
| 土地権利 | 所有権 |
| 地目 | 宅地 |
| 接道状況 | - |
| 建ぺい率 | 50% |
| 容積率 | 100% |
| 用途地域 | 第一種低層住居専用地域 |
| 都市計画 | 市街化区域 |
| 備考 | 本物件は規定の容積率等をオーバーしており、再建築にあたり同規模の建築物は建築できません |
| 引渡時期 | 相談 |
| 取引態様 | 仲介 |
| 更新日 | 2026年02月13日 |
| 次回更新予定 | 2026年02月27日 |
| 物件番号 | FM7BBA03 |
最新のAI技術を活用した相談サービスです。
お客様一人ひとりのニーズに合わせて最適な情報をご提供します。
リハウスAIチャットの詳しい説明はこちら
GoogleMaps
| スーパー | いなげや武蔵野関前店 約490m(徒歩7分) |
| スーパー | サミットストア向台町店 約1100m(徒歩14分) |
| 公園 | 都立小金井公園 約1360m(徒歩17分) |
| 公園 | おおぞら公園 約640m(徒歩8分) |
| 病院 | 武蔵野徳洲会病院 約1040m(徒歩13分) |
| 小学校 | 西東京市立向台小学校 約1150m(徒歩15分) |
| 中学校 | 西東京市立田無第四中学校 約1060m(徒歩14分) |
| その他利便施設1 | セブンイレブン柳橋店 約410m(徒歩6分) |
| その他利便施設2 | コーナンPROドイト小金井公園店 約460m(徒歩6分) |
| その他利便施設3 | ガスト関前店(から好し取扱店) 約240m(徒歩3分) |
三井不動産リアルティ株式会社
国土交通大臣(15)第777号
0120-558-321
0120-558-321
物件の売却をご検討の方は、 はやめの査定依頼がおすすめです!
買い替えをご検討の方はこちら0120-558-321

