清瀬市中里3丁目
西武池袋・豊島線 清瀬駅 徒歩21分
4LDK
建物面積:93.98㎡
土地面積:119.91㎡
新築
3,780万円



| 物件種別 | 中古戸建 |
| 所在地 | GoogleMaps |
| 交通 | |
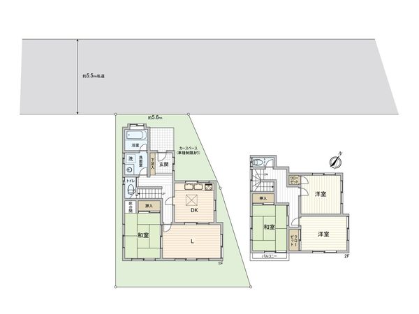
| 間取り | 4DK |
| 建物面積 | 97.49㎡(約29.49坪) |
| 土地面積 | 103㎡(約31.15坪) |
| 築年月 | 1983年06月築 |
■ おすすめポイント ――――――――――・・・・・ ○始発電車もある「清瀬駅」徒歩6分 ○駅まで平坦アプローチ ○前面道路幅員約5.5m ○土地103平米 ○建ぺい率60%、容積率200% ○建物約97平米・4DK ○カースペース付(車種による制限あり) ■ アクセス ―――――――――――――・・・・・ ○西武池袋線「清瀬」駅徒歩6分 ○西武新宿線「久米川」駅バス25分「松山二丁目」停歩4分 ■ ライフインフォメーション ――――――――・・・・・ ○市立清瀬第七小学校 徒歩11分 (約860m) ○市立清瀬第二中学校 徒歩20分 (約1540m) ○オーケー清瀬店 徒歩5分(約390m) ○西友清瀬店 徒歩7分 (約500m) ○セブンイレブン清瀬駅南口店 徒歩5分 (約390m) ○ココカラファイン清瀬店 徒歩5分 (約360m) ○井上内科クリニック 徒歩4分(約280m) ○公益財団法人結核予防会複十字病院 徒歩9分(約710m) ○清瀬中央公園 徒歩10分 (約780m)
| 所在地 | GoogleMaps |
| 価格 | 3,780万円 |
| 交通 | |
| その他費用 | - |
| 間取り | 4DK |
| 建物面積 | 97.49㎡(約29.49坪) |
| 土地面積 | 103㎡(約31.15坪) |
| 築年月 | 1983年06月築 |
| 建物構造 | 木造2階建 |
| 現況 | 空家 |
| 駐車場 | 有 |
| 土地権利 | 所有権 |
| 地目 | 山林(現況地目:宅地) |
| 接道状況 | 北側: 約 5.5m (私道) |
| 建ぺい率 | 60% |
| 容積率 | 200% |
| 用途地域 | 第一種中高層住居専用地域 |
| 都市計画 | 市街化区域 |
| 備考 | 都市計画道路区域内(計画決定) 一部都市計画道路区域内(計画決定) |
| 引渡時期 | 相談 |
| 取引態様 | 仲介 |
| 更新日 | 2026年04月27日 |
| 次回更新予定 | 2026年05月11日 |
| 物件番号 | FM7BCA10 |
最新のAI技術を活用した相談サービスです。
お客様一人ひとりのニーズに合わせて最適な情報をご提供します。
リハウスAIチャットの詳しい説明はこちら
GoogleMaps
| スーパー | オーケー清瀬店 約390m(徒歩5分) |
| スーパー | 西友清瀬店 約500m(徒歩7分) |
| 公園 | 清瀬中央公園 約780m(徒歩10分) |
| 病院 | 井上内科クリニック 約280m(徒歩4分) |
| 病院 | 公益財団法人結核予防会複十字病院 約710m(徒歩9分) |
| 小学校 | 清瀬市立清瀬第七小学校 約860m(徒歩11分) |
| 中学校 | 清瀬市立清瀬第二中学校 約1540m(徒歩20分) |
| その他利便施設1 | セブンイレブン清瀬駅南口店 約390m(徒歩5分) |
| その他利便施設2 | ローソンストア100清瀬松山店 約310m(徒歩4分) |
| その他利便施設3 | ココカラファイン清瀬店 約360m(徒歩5分) |
三井不動産リアルティ株式会社
国土交通大臣(15)第777号
0120-558-321
0120-558-321
物件の売却をご検討の方は、 はやめの査定依頼がおすすめです!
買い替えをご検討の方はこちら0120-558-321

