新宿区西落合1丁目
都営大江戸線 落合南長崎駅 徒歩5分
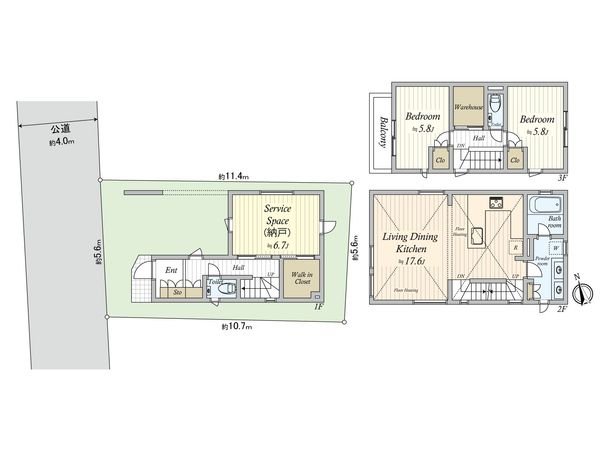
2SLDK
建物面積:91.94㎡
土地面積:107.09㎡
2015年08月築
15,500万円



| 物件種別 | 中古戸建 |
| 所在地 | GoogleMaps |
| 交通 | 山手線 目白駅 徒歩3分 |
| 間取り | 2SLDK ※S・サービススペースは納戸です |
| 建物面積 | 95.49㎡(約28.88坪) |
| 土地面積 | 58.76㎡(約17.77坪) ※別途私道約3.87㎡有 |
| 築年月 | 2023年06月築 |
-物件のおすすめポイント- ▼立地 ・山手線「目白駅」から徒歩3分の好立地 ・周辺には商業施設が多数あり、買い物に便利 ・小・中学校、公園が徒歩10分圏内にあり子育て環境良好 ・池袋・新宿へのアクセスも良好 ▼建物の特徴 ・令和5年6月築の築浅物件 ・西向き公道に接道 ・室内綺麗にお使いです。 (令和8年2月7日ハウスクリーニング実施) ・土地面積約58平米 ・西向きの採光が心地よい空間を演出します ・1階には駐車スペースを確保できる利便性も魅力 ▼お部屋の特徴 ・延床約95平米の2SLDK ・約17.6帖のゆったりとしたLDK ・家族の会話が弾むU型キッチン ・忙しい朝も便利な2つの洗面ボウル ■ご希望の住まい探しをお手伝いします━━━━━・・・ 物件の詳細・ご相談はお気軽にお問い合わせください。
| 所在地 | GoogleMaps |
| 価格 | 15,500万円 |
| 交通 | 山手線 目白駅 徒歩3分 |
| その他費用 | - |
| 間取り | 2SLDK ※S・サービススペースは納戸です |
| 建物面積 | 95.49㎡(約28.88坪) |
| 土地面積 | 58.76㎡(約17.77坪) ※別途私道約3.87㎡有 |
| 築年月 | 2023年06月築 |
| 建物構造 | 木造3階建 |
| 現況 | 空家 |
| 駐車場 | 有 |
| 土地権利 | 所有権 |
| 地目 | 宅地 |
| 接道状況 | 西側: 約 4m (公道) |
| 建ぺい率 | 60% |
| 容積率 | 300%(前面道路幅員により160%に制限されます。) |
| 用途地域 | 第一種住居地域 |
| 都市計画 | 市街化区域 |
| 備考 | - |
| 引渡時期 | 即時 |
| 取引態様 | 仲介 |
| 更新日 | 2026年05月09日 |
| 次回更新予定 | 2026年05月23日 |
| 物件番号 | FN5AUA0B |
最新のAI技術を活用した相談サービスです。
お客様一人ひとりのニーズに合わせて最適な情報をご提供します。
リハウスAIチャットの詳しい説明はこちら
GoogleMaps
| スーパー | クイーンズ伊勢丹 目白店 約280m(徒歩4分) |
| スーパー | ピーコックストア目白店 約500m(徒歩7分) |
| スーパー | オーケーストア 下落合店 約820m(徒歩11分) |
| スーパー | KINOKUNIYA Sutto目白駅店 約300m(徒歩4分) |
| 病院 | 医療法人社団悦伝会目白病院 約230m(徒歩3分) |
| 中学校 | 新宿区立落合中学校 約600m(徒歩8分) |
| その他利便施設1 | 目白駅(JR東日本 山手線) 約200m(徒歩3分) |
| その他利便施設2 | 雑司が谷駅(東京メトロ 副都心線) 約960m(徒歩12分) |
| その他利便施設3 | トラッド目白 約280m(徒歩4分) |
| その他利便施設4 | ナチュラルローソン目白三丁目店 約180m(徒歩3分) |
0120-118-321
0120-118-321
物件の売却をご検討の方は、 はやめの査定依頼がおすすめです!
買い替えをご検討の方はこちら0120-118-321

