和泉市青葉台3丁目
南海電鉄泉北線 和泉中央駅 バス15分 和泉青葉台口 停歩3分
4LDK
建物面積:139.94㎡
土地面積:198.01㎡
1997年12月築
2,280万円



| 物件種別 | 中古戸建 |
| 所在地 | GoogleMaps |
| 交通 | |
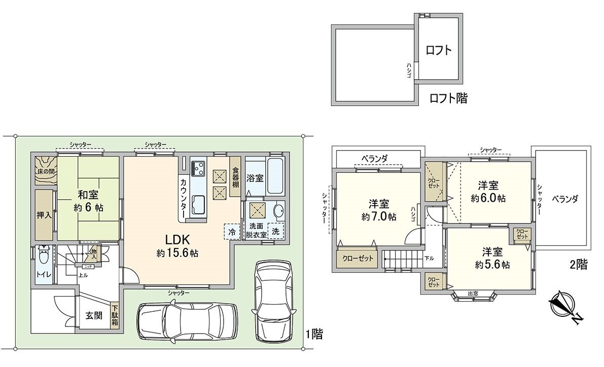
| 間取り | 4LDK |
| 建物面積 | 95.81㎡(約28.98坪) |
| 土地面積 | 100.01㎡(約30.25坪) |
| 築年月 | 2004年03月築 |
■ 南海本線「高石」駅徒歩10分・「北助松」駅徒歩13分 ■ 土地面積100.01平米(約30.25坪) ■ 平成16年3月建築・4LDK+ロフト ■ 駐車2台可(車種による制限有り) 【周辺施設】 ・ アプラ高石まで約700m ・ 業務スーパー高石綾園店まで約440m ・ スーパーサンディ高石駅前店まで約700m ・ スギドラック高石駅前店まで約560m ・ ローソン高石綾園4丁目店まで約240m 【小中学校:行政協定区域】※選択できます ■ 上條小学校 約1120m ■ 小津中学校 約1350m 〇 信太小学校 約2240m 〇 富秋中学校 約2200m
| 所在地 | GoogleMaps |
| 価格 | 2,280万円 |
| 交通 | |
| その他費用 | - |
| 間取り | 4LDK |
| 建物面積 | 95.81㎡(約28.98坪) |
| 土地面積 | 100.01㎡(約30.25坪) |
| 築年月 | 2004年03月築 |
| 建物構造 | 木造2階建 |
| 現況 | 居住中 |
| 駐車場 | 有 |
| 土地権利 | 所有権 |
| 地目 | 宅地 |
| 接道状況 | 北東側: 約 4.9m (公道) |
| 建ぺい率 | 60% |
| 容積率 | 200% |
| 用途地域 | 第二種中高層住居専用地域 |
| 都市計画 | 市街化区域 |
| 備考 | - |
| 引渡時期 | 相談 |
| 取引態様 | 仲介 |
| 更新日 | 2026年04月30日 |
| 次回更新予定 | 2026年05月14日 |
| 物件番号 | FNA7WA20 |
最新のAI技術を活用した相談サービスです。
お客様一人ひとりのニーズに合わせて最適な情報をご提供します。
リハウスAIチャットの詳しい説明はこちら
GoogleMaps
| スーパー | スーパーサンディ高石駅前 約700m(徒歩9分) |
| スーパー | 業務スーパー高石綾園店 約440m(徒歩6分) |
| その他利便施設1 | 南海本線「高石」駅 約800m(徒歩10分) |
| その他利便施設2 | アプラ高石 約700m(徒歩9分) |
| その他利便施設3 | アプラ高石 約700m(徒歩9分) |
| その他利便施設4 | 高石駅前広場 約750m(徒歩10分) |
| その他利便施設5 | ローソン高石綾園4丁目 約240m(徒歩3分) |
| その他利便施設6 | スギドラッグ高石駅前店 約560m(徒歩7分) |
三井不動産リアルティ株式会社
国土交通大臣(15)第777号
0120-373-321
リノベーション工事の可能範囲については、本物件の管理組合規約等により一定の制限が加わる場合がございます。詳細については、工事内容の確定後に判明する部分もありますので、この点については事前にお含みおきください。
リノベーションに関するお問い合わせ0120-373-321
物件の売却をご検討の方は、 はやめの査定依頼がおすすめです!
買い替えをご検討の方はこちら0120-373-321

