堺市東区白鷺町3丁
南海高野線 白鷺駅 徒歩13分
2SLDK
建物面積:98.12㎡
土地面積:120.78㎡
2020年11月築
4,590万円



| 物件種別 | 中古戸建 |
| 所在地 | GoogleMaps |
| 交通 | 南海高野線 北野田駅 徒歩9分 |
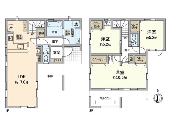
| 間取り | 3LDK |
| 建物面積 | 94.88㎡(約28.7坪) |
| 土地面積 | 110.41㎡(約33.39坪) |
| 築年月 | 2025年08月築 |
予約制内覧会を開催します!
| 開催日 | 5月2日(土)11:00 ~ 16:00 5月3日(日)11:00 ~ 16:00 5月9日(土)11:00 ~ 16:00 5月10日(日)11:00 ~ 16:00 5月16日(土)11:00 ~ 16:00 |
|---|
-物件のおすすめポイント- ▼立地 ・ 南海高野線「北野田」駅 徒歩9分 ▼建物の特徴 ・ 2階建て「3LDK」 2025年8月建築の築浅物件 ・ 駐車二台可能です(車種による制限あり) ・ 空き家につき引渡即可(代金受領後) ▼お部屋の特徴 ・ LDKは約17帖ございます ・ 掃除がしやすい全居室フローリング使用 ・ 各居室に収納がございます ・ 南向きバルコニーで日当たり良好です ▼設備 ・ 家事の負担を軽減できる食器洗浄機付システムキッチン ・ 追い焚き機能が付いたユニットバス ・ 1・2階温水洗浄便座付のトイレ ・ 戸建用宅配ボックス ▼周辺環境 ・堺市立登美丘東小学校 徒歩8分(約600m) ・サンディ堺美原店 徒歩10分(約750m) ■ご希望の住まい探しをお手伝いします ━━━━━ ・・・ 物件の詳細・ご相談はお気軽にお問い合わせください。
室内を内覧しているように物件を見学することができます。
| 所在地 | GoogleMaps |
| 価格 | 4,590万円 |
| 交通 | 南海高野線 北野田駅 徒歩9分 |
| その他費用 | - |
| 間取り | 3LDK |
| 建物面積 | 94.88㎡(約28.7坪) |
| 土地面積 | 110.41㎡(約33.39坪) |
| 築年月 | 2025年08月築 |
| 建物構造 | 木造2階建 |
| 現況 | 空家 |
| 駐車場 | 有 |
| 土地権利 | 所有権 |
| 地目 | 宅地 |
| 接道状況 | 南側: 約 4m (公道) |
| 建ぺい率 | 50% |
| 容積率 | 100% |
| 用途地域 | 第一種低層住居専用地域 |
| 都市計画 | 市街化区域 |
| 備考 | - |
| 引渡時期 | 即時 |
| 取引態様 | 仲介 |
| 更新日 | 2026年04月24日 |
| 次回更新予定 | 2026年05月08日 |
| 物件番号 | FNDBAA06 |
最新のAI技術を活用した相談サービスです。
お客様一人ひとりのニーズに合わせて最適な情報をご提供します。
リハウスAIチャットの詳しい説明はこちら
GoogleMaps
| スーパー | サンディ堺美原店 約750m(徒歩10分) |
| スーパー | ダイエー北野田店 約1000m(徒歩13分) |
| 病院 | 特定医療法人頌徳会日野病院 約600m(徒歩8分) |
| 小学校 | 堺市立登美丘東小学校 約600m(徒歩8分) |
| 中学校 | 堺市立野田中学校 約1200m(徒歩15分) |
0120-959-313
0120-959-313
物件の売却をご検討の方は、 はやめの査定依頼がおすすめです!
買い替えをご検討の方はこちら0120-959-313

