大田区田園調布5丁目
東急東横線 田園調布駅 徒歩14分
5LDK
建物面積:117.37㎡
土地面積:148.95㎡
2026年09月築(予定)
12,980万円



| 物件種別 | 中古戸建 |
| 所在地 | GoogleMaps |
| 交通 | 東急池上線 雪が谷大塚駅 徒歩6分 |
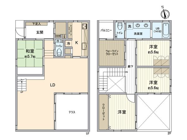
| 間取り | 4SLDK ※S・サービススペースは納戸です |
| 建物面積 | 124.02㎡(約37.51坪) |
| 土地面積 | 129.92㎡(約39.3坪) ※別途私道約24.37㎡有 |
| 築年月 | 2007年07月築 |
■ 交通アクセス ━―━━━━━━━━━━━━・・・・・ ○ 東急池上線「雪が谷大塚」駅 徒歩6分 ■ おすすめポイント ━━━━━━━━━━━・・・・・ ○ 土地面積:129.92平米(約39.30坪) ○ 建物面積:124.02平米(約37.51坪) ○ 間取り:4SLDK+小屋裏収納 ○ 吹抜けとテラスを活かした明るいLDK ○ 家族が顔を合わせるリビング階段 ○ リビングダイニングキッチンに、床暖房(一部) ○ 玄関をスッキリできるシューズクローク ○ ゲストルームなど多目的に利用できる和室 ○ ファミリークローゼットを活かした家事楽動線 ○ 各部屋に季節物の収納に便利な小屋裏収納あり ○ 1台分の駐車スペースあり(車種による) ■ ライフインフォメーション ━━━━━━━・・・・・ ○ ファミリーマート雪谷大塚店・・・・・・約6分(約420m) ○ まいばすけっと雪が谷大塚駅南店・・・約4分(約320m) ○ オオゼキ雪谷店・・・・・・・・・・・約6分(約450m) ○ 東急ストア雪が谷店・・・・・・・・・約8分(約570m) ○ ココカラファイン薬局雪谷大塚店・・・・約8分(約570m) ○ 区立雪谷小学校・・・・・・・・・・・約6分(約480m) ○ 区立雪谷中学校・・・・・・・・・・・約6分(約480m)
| 所在地 | GoogleMaps |
| 価格 | 12,980万円 |
| 交通 | 東急池上線 雪が谷大塚駅 徒歩6分 |
| その他費用 | - |
| 間取り | 4SLDK ※S・サービススペースは納戸です |
| 建物面積 | 124.02㎡(約37.51坪) |
| 土地面積 | 129.92㎡(約39.3坪) ※別途私道約24.37㎡有 |
| 築年月 | 2007年07月築 |
| 建物構造 | その他2階建 |
| 現況 | 居住中 |
| 駐車場 | - |
| 土地権利 | 所有権 |
| 地目 | 宅地 |
| 接道状況 | 南西側: 約 4m (私道) |
| 建ぺい率 | 50% |
| 容積率 | 100% |
| 用途地域 | 第一種低層住居専用地域 |
| 都市計画 | 市街化区域 |
| 備考 | - |
| 引渡時期 | 相談 |
| 取引態様 | 仲介 |
| 更新日 | 2026年05月25日 |
| 次回更新予定 | 2026年06月08日 |
| 物件番号 | FQ7ASA04 |
最新のAI技術を活用した相談サービスです。
お客様一人ひとりのニーズに合わせて最適な情報をご提供します。
リハウスAIチャットの詳しい説明はこちら
GoogleMaps
| スーパー | オオゼキ雪谷店 約450m(徒歩6分) |
| スーパー | 東急ストア雪が谷店 約570m(徒歩8分) |
| 小学校 | 大田区立雪谷小学校 約480m(徒歩6分) |
| 中学校 | 大田区立雪谷中学校 約480m(徒歩6分) |
| その他利便施設1 | 雪が谷大塚駅 約480m(徒歩6分) |
三井不動産リアルティ株式会社
国土交通大臣(15)第777号
0120-81-3101
0120-81-3101
物件の売却をご検討の方は、 はやめの査定依頼がおすすめです!
買い替えをご検討の方はこちら0120-81-3101

