申し訳ございません。お探しの物件は、掲載が終了したか、成約済みになった可能性があります。
あなたがお探しの条件に合う物件をピックアップさせていただきました。お気軽に担当店舗へお問い合わせください。
中古戸建
5,490万円
名古屋市北区大曽根4丁目
名古屋市名城線 大曽根駅 徒歩5分
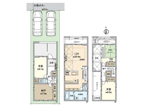
4SLDK
建物面積:179.85㎡
土地面積:139.07㎡
1976年10月築
新築戸建
4,398万円
名古屋市北区金城町4丁目
名古屋市名城線 黒川駅 徒歩21分
1SLDK
建物面積:86.94㎡
土地面積:88.22㎡
新築
3,980万円
名古屋市北区東味鋺2丁目
名鉄小牧線 味鋺駅 徒歩4分
4LDK
建物面積:114.16㎡
土地面積:119.92㎡
2018年11月築
4,990万円
名古屋市北区山田4丁目
名古屋市名城線 大曽根駅 徒歩13分
3SLDK
建物面積:111㎡
土地面積:76.63㎡
2026年06月築(予定)
建物面積:113.19㎡
建物面積:101.39㎡
3,890万円
名古屋市北区安井3丁目
名鉄小牧線 上飯田駅 徒歩19分
2SSLDK(S=納戸)
建物面積:95.25㎡
土地面積:90.6㎡
2024年11月築
4,799万円
名古屋市北区浪打町1丁目
名古屋市名城線 黒川駅 徒歩19分
建物面積:114.44㎡
土地面積:83.81㎡
営業時間
10:00~18:00
定休日
毎週火曜日・水曜日
住所
メールアドレス
パスワード
お気に入り物件で価格変更・オープンハウス情報の更新があります