名古屋市昭和区広池町
名古屋市桜通線 桜山駅 徒歩11分
5SLDK
建物面積:144.29㎡
土地面積:221.48㎡
2015年11月築
9,580万円



| 物件種別 | 中古戸建 |
| 所在地 | GoogleMaps |
| 交通 | |
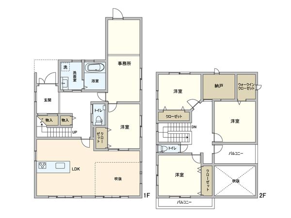
| 間取り | 4SLDK+事務所 ※S・サービススペースは納戸です ※S・サービススペースは納戸です |
| 建物面積 | 156.73㎡(約47.41坪) |
| 土地面積 | 156.36㎡(約47.29坪) |
| 築年月 | 2020年08月築 |
■ おすすめポイント ▼立地 ・鶴舞線 桜通線「御器所」駅・桜通線「桜山」駅 徒歩8分の好立地 ・鶴舞線「荒畑」駅 徒歩14分で複数路線利用可能 ▼特徴 ・2020年8月築の築浅物件 ・約47坪の土地 ・シンプルモノトーン外観の家 ・広いカーポートと手すり付玄関 ・浴室に窓があり換気に便利 ・全居室、廊下に収納スペース+納戸で収納充実 ▼設備 ・1階に事務所スペースあり ・2面バルコニーと吹抜けで採光良好 ・ウォークインクローゼット完備 ・トイレ1・2階に有り ▼周辺環境 ・御器所小学校約390mで通学便利 ・マックスバリュ約630mで買物便利 ・セブンイレブン約380m、薬局約600m ・台町ふれあい公園約400mで緑豊か ■ ご希望の住まい探しをお手伝いします ━━━━━・・・ 物件の詳細・ご相談はお気軽にお問い合わせください。
| 所在地 | GoogleMaps |
| 価格 | 9,580万円 |
| 交通 | |
| その他費用 | - |
| 間取り | 4SLDK+事務所 ※S・サービススペースは納戸です ※S・サービススペースは納戸です |
| 建物面積 | 156.73㎡(約47.41坪) |
| 土地面積 | 156.36㎡(約47.29坪) |
| 築年月 | 2020年08月築 |
| 建物構造 | 木造2階建 |
| 現況 | 空家 |
| 駐車場 | - |
| 土地権利 | 所有権 |
| 地目 | 宅地 |
| 接道状況 | 北側: 約 7.2m (公道) |
| 建ぺい率 | 60% |
| 容積率 | 200% |
| 用途地域 | 第一種住居地域 |
| 都市計画 | 市街化区域 |
| 備考 | ※本物件は既定の建ぺい率をオーバーしており、再建築にあたり同規模の建築物は建築できません。 |
| 引渡時期 | 相談 |
| 取引態様 | 仲介 |
| 更新日 | 2026年05月23日 |
| 次回更新予定 | 2026年06月06日 |
| 物件番号 | FQRBDA03 |
最新のAI技術を活用した相談サービスです。
お客様一人ひとりのニーズに合わせて最適な情報をご提供します。
リハウスAIチャットの詳しい説明はこちら
GoogleMaps
| スーパー | マックスバリュ御器所店 約630m(徒歩8分) |
| 公園 | 台町ふれあい公園 約400m(徒歩5分) |
| 病院 | 名古屋市立大学病院 約1120m(徒歩14分) |
| 小学校 | 御器所小学校 約390m(徒歩5分) |
| 中学校 | 桜山中学校 約380m(徒歩5分) |
| その他利便施設1 | セブンイレブン名古屋阿由知通4丁目店 約380m(徒歩5分) |
| その他利便施設2 | スギ薬局御器所西店 約600m(徒歩8分) |
| その他利便施設3 | 名古屋出口郵便局 約430m(徒歩6分) |
| その他利便施設4 | 名古屋市昭和区役所 約700m(徒歩9分) |
三井不動産リアルティ株式会社
国土交通大臣(15)第777号
0120-059-321
0120-059-321
物件の売却をご検討の方は、 はやめの査定依頼がおすすめです!
買い替えをご検討の方はこちら0120-059-321

