新座市道場1丁目
西武池袋・豊島線 ひばりヶ丘駅 バス18分 あけぼの住宅前 停歩4分
3LDK
建物面積:95.22㎡
土地面積:104.14㎡
新築
3,480万円



| 物件種別 | 中古戸建 |
| 所在地 | GoogleMaps |
| 交通 | 東武東上線 志木駅 徒歩11分 |
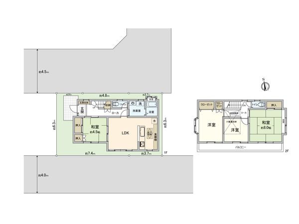
| 間取り | 4LDK |
| 建物面積 | 86.94㎡(約26.29坪) |
| 土地面積 | 76.58㎡(約23.16坪) ※別途私道約123.17㎡有 (共有持分 173/1231) |
| 築年月 | 1994年10月築 |
■アクセス ━━━━━━━━━━・・・・・ ○ 東武東上線「志木」駅徒歩11分 ■おすすめポイント ━━━━━━━━━━━・・・・・ ○ 区画の整った、閑静な住宅街に立地 ○ 駅までフラットな道のり ○ 使い勝手の良い4LDK ○ 枠組壁工法(2×4工法) ○ 会話の弾む、対面式カウンターキッチン ○ 豊富な収納 (小屋裏収納、床下収納、階段収納 等) ○ バルコニー南向きにつき、陽当たり良好 ○ 両面道路および間口約11mにつき、通風良好・開放感あり ○ 約8帖の和室 ○ トイレ2か所 ○ 屋外水栓有 ○ 小学校まで徒歩7分!お子様の通学も安心です ○ 都市ガス・本下水 ○ バイク・自転車駐輪スペースあり(車種による) ○ 建替用地としても検討いただけます ○ 室内きれいにお使いです ■リフォーム履歴 ━━━━━━━━━━━・・・・・ ○ 外壁・屋根塗装(令和5年1月) ○ クロス貼替、畳表替え(令和4年3月) ○ 洗面化粧台交換(平成28年2月) ○ 浴室シャワー水栓交換(平成28年2月) ○ キッチン換気扇交換(平成28年2月)
| 所在地 | GoogleMaps |
| 価格 | 3,480万円 |
| 交通 | 東武東上線 志木駅 徒歩11分 |
| その他費用 | - |
| 間取り | 4LDK |
| 建物面積 | 86.94㎡(約26.29坪) |
| 土地面積 | 76.58㎡(約23.16坪) ※別途私道約123.17㎡有 (共有持分 173/1231) |
| 築年月 | 1994年10月築 |
| 建物構造 | 木造2階建 |
| 現況 | 居住中 |
| 駐車場 | 無 |
| 土地権利 | 所有権 |
| 地目 | 宅地 |
| 接道状況 | 北側: 約 4.5m (私道)、南側: 約 4m (私道) |
| 建ぺい率 | 60% |
| 容積率 | 200%(但し、前面道路幅員により180%に制限されます) |
| 用途地域 | 第一種住居地域 |
| 都市計画 | 市街化区域 |
| 備考 | ※新座都市計画東北土地区画整理事業区域 ※高度地区:25m |
| 引渡時期 | 2026年04月下旬以降 |
| 取引態様 | 仲介 |
| 更新日 | 2026年04月16日 |
| 次回更新予定 | 2026年04月30日 |
| 物件番号 | FR4AUA1E |
最新のAI技術を活用した相談サービスです。
お客様一人ひとりのニーズに合わせて最適な情報をご提供します。
リハウスAIチャットの詳しい説明はこちら
GoogleMaps
| スーパー | TAIRAYA志木店 約680m(徒歩9分) |
| スーパー | いなげや新座東店 約610m(徒歩8分) |
| 公園 | 下東公園(ライオン公園) 約250m(徒歩4分) |
| 病院 | 新座志木中央総合病院 約660m(徒歩9分) |
| 小学校 | 新座市立東北小学校 約500m(徒歩7分) |
| 中学校 | 新座市立第二中学校 約1100m(徒歩14分) |
| その他利便施設1 | ファミリーマート新座東北一丁目店 約440m(徒歩6分) |
| その他利便施設2 | サンドラッグ朝霞三原店 約510m(徒歩7分) |
| その他利便施設3 | 島忠新座店 約180m(徒歩3分) |
三井不動産リアルティ株式会社
国土交通大臣(15)第777号
0120-71-3131
0120-71-3131
物件の売却をご検討の方は、 はやめの査定依頼がおすすめです!
買い替えをご検討の方はこちら0120-71-3131

