世田谷区下馬5丁目
東急東横線 祐天寺駅 徒歩12分
2SLDK
建物面積:103.54㎡
土地面積:81.27㎡
2012年08月築
15,480万円



| 物件種別 | 中古戸建 |
| 所在地 | GoogleMaps |
| 交通 | |
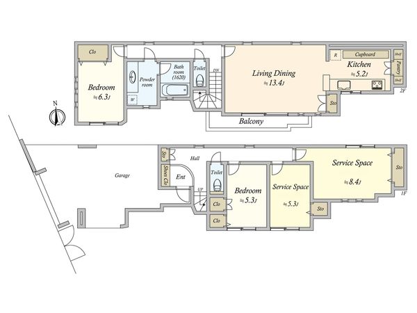
| 間取り | 2LDK+2S ※S・サービススペースは納戸です |
| 建物面積 | 110.34㎡(約33.37坪) |
| 土地面積 | 117.59㎡(約35.57坪) |
| 築年月 | 2017年11月築 |
予約制内覧会を開催します!
| 開催日 | 3月7日(土)11:00 ~ 15:00 3月8日(日)11:00 ~ 15:00 3月14日(土)11:00 ~ 15:00 3月15日(日)11:00 ~ 15:00 3月21日(土)11:00 ~ 15:00 |
|---|
返済計画を入力すると毎月のお支払い目安を表示できます
▼ 交通アクセス━━━━━━━━━━━━━━━・・・・ ○ 東急田園都市線「桜新町」駅 徒歩8分 ○ 東急世田谷線「上町」駅 徒歩13分 ○ 東急田園都市線「駒沢大学」駅 徒歩19分 ▼ おすすめポイント ━━━━━━━━━━━━・・・・・ ○ 2LDK+2Sタイプ(4部屋利用可能) ○ 平均天井高 2.8m超・勾配天井のリビングダイニング ○ リビングダイニングには床暖房あり(TES式温水式) ○ 全室南向きにつき、日当たり良好 ○ 南面バルコニー ○ パントリーや食器棚付きの半独立型キッチン ○ 約2.8帖とゆとりのある洗面室 ○ 窓付きの浴室(1620タイプ・浴室乾燥機付) ○ トイレ2か所あり(1F・2F) ○ シャッター付の駐車スペースあり
室内を内覧しているように物件を見学することができます。
| 所在地 | GoogleMaps |
| 価格 | 15,480万円 |
| 交通 | |
| その他費用 | - |
| 間取り | 2LDK+2S ※S・サービススペースは納戸です |
| 建物面積 | 110.34㎡(約33.37坪) |
| 土地面積 | 117.59㎡(約35.57坪) |
| 築年月 | 2017年11月築 |
| 建物構造 | 木造2階建 |
| 現況 | 居住中 |
| 駐車場 | 有 |
| 土地権利 | 所有権 |
| 地目 | 宅地 |
| 接道状況 | 西側: 約 12m (公道) |
| 建ぺい率 | 60% |
| 容積率 | 150% |
| 用途地域 | 第一種低層住居専用地域 |
| 都市計画 | 市街化区域 |
| 備考 | ▼間取り:2LDK+2S ▼本物件前面道路の認定幅員:4.0m ▼本物件前面道路は主要生活道路です。 |
| 引渡時期 | 相談 |
| 取引態様 | 仲介 |
| 更新日 | 2026年02月26日 |
| 次回更新予定 | 2026年03月12日 |
| 物件番号 | FRMAWA02 |
最新のAI技術を活用した相談サービスです。
お客様一人ひとりのニーズに合わせて最適な情報をご提供します。
リハウスAIチャットの詳しい説明はこちら
GoogleMaps
| スーパー | ピーコックストア桜新町店 約810m(徒歩11分) |
| スーパー | まいばすけっと弦巻1丁目店 約650m(徒歩9分) |
| 公園 | 新町公園 約810m(徒歩11分) |
| 小学校 | 世田谷区立弦巻小学校 約890m(徒歩12分) |
| 中学校 | 世田谷区立弦巻中学校 約210m(徒歩3分) |
| その他利便施設1 | クオール薬局ナチュラルローソン世田谷弦巻三丁目店 約210m(徒歩3分) |
| その他利便施設2 | セブンイレブン世田谷新町3丁目店 約730m(徒歩10分) |
| その他利便施設3 | スギ薬局弦巻店 約550m(徒歩7分) |
| その他利便施設4 | 世田谷弦巻郵便局 約230m(徒歩3分) |
0120-995-637
0120-995-637
物件の売却をご検討の方は、 はやめの査定依頼がおすすめです!
買い替えをご検討の方はこちら0120-995-637

