草加市長栄3丁目
東武伊勢崎・大師線 新田駅 バス15分 ネオポリス住宅入口 停歩4分
4SLDK
建物面積:126.02㎡
土地面積:161.38㎡
1985年01月築
2,680万円



| 物件種別 | 中古戸建 |
| 所在地 | GoogleMaps |
| 交通 | |
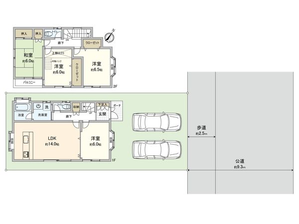
| 間取り | 4LDK |
| 建物面積 | 94.39㎡(約28.55坪) |
| 土地面積 | 106.1㎡(約32.09坪) |
| 築年月 | 2003年11月築 |
-物件のおすすめポイント- ▼建物の特徴 ・火を使わないオール電化住宅 ・太陽の恵みを電気に変換し、光熱費の削減に貢献する太陽光発電システムあり ・カースペース2台分(車種による) ・前面道路幅員北東側約9.3m公道 ▼お部屋の特徴 ・全居室6帖以上・南東向きの4LDK ・LDKは隣接した洋室と一体利用も可能 ・2階洋室約6帖には多目的に利用可能なロフト付 ・明るく奥行きの出る出窓を採用 ▼周辺環境 ・ミニストップ・・・約350m(徒歩5分) ・TAIRAYA・・・約690(徒歩9分) ■ ご希望の住まい探しをお手伝いします ━━━━━・・・ 物件の詳細・ご相談はお気軽にお問い合わせください。
| 所在地 | GoogleMaps |
| 価格 | 2,680万円 |
| 交通 | |
| その他費用 | - |
| 間取り | 4LDK |
| 建物面積 | 94.39㎡(約28.55坪) |
| 土地面積 | 106.1㎡(約32.09坪) |
| 築年月 | 2003年11月築 |
| 建物構造 | 木造2階建 |
| 現況 | 居住中 |
| 駐車場 | 有 |
| 土地権利 | 所有権 |
| 地目 | 宅地 |
| 接道状況 | 北東側: 約 9.3m (公道) |
| 建ぺい率 | 60% |
| 容積率 | 200% |
| 用途地域 | 第一種中高層住居専用地域 |
| 都市計画 | 市街化区域 |
| 備考 | ※都市ガスは敷地内未引込みのため、引込みにあたっては別途費用要 |
| 引渡時期 | 相談 |
| 取引態様 | 仲介 |
| 更新日 | 2026年04月19日 |
| 次回更新予定 | 2026年05月03日 |
| 物件番号 | FRPBCA0A |
最新のAI技術を活用した相談サービスです。
お客様一人ひとりのニーズに合わせて最適な情報をご提供します。
リハウスAIチャットの詳しい説明はこちら
GoogleMaps
| スーパー | TAIRAYA 約690m(徒歩9分) |
| 公園 | 青柳四丁目ふれあい公園 約570m(徒歩8分) |
| 病院 | かとうファミリークリニック 約510m(徒歩7分) |
| 小学校 | 青柳小学校 約1070m(徒歩14分) |
| 中学校 | 川柳中学校 約190m(徒歩3分) |
| その他利便施設1 | ドラッグセイムス 約300m(徒歩4分) |
| その他利便施設2 | ミニストップ 約350m(徒歩5分) |
| その他利便施設3 | セブンイレブン 約470m(徒歩6分) |
0120-923-679
0120-923-679
物件の売却をご検討の方は、 はやめの査定依頼がおすすめです!
買い替えをご検討の方はこちら0120-923-679

