福岡市南区長住6丁目
西鉄天神大牟田線 高宮駅 バス14分 野間四角 停歩3分
4SLDK
建物面積:319.98㎡
土地面積:383㎡
1998年09月築
12,800万円



| 物件種別 | 中古戸建 |
| 所在地 | GoogleMaps |
| 交通 | |
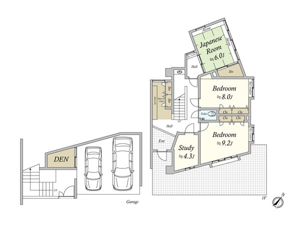
| 間取り | 3SLDK ※S・サービススペースは納戸です |
| 建物面積 | 165.82㎡(約50.16坪) |
| 土地面積 | 220.39㎡(約66.66坪) |
| 築年月 | 2012年07月築 |
-物件のおすすめポイント- ▼立地 ・西鉄天神大牟田線「高宮」駅 徒歩10分 ・高宮四丁目の閑静な住宅地に所在 ・西高宮小・高宮中学校校区 ▼建物の特徴 ・平成24年建築、鉄筋コンクリート造の邸宅 ・2階にワイドな窓を設け、明るさと開放感を演出したデザイン ・眺望・陽当り・通風良好 ・ビルトインガレージ並列2台分あり ・屋上に見晴らしの良いルーフテラスあり ▼お部屋の特徴 ・約27.8帖の開放的なLDK ・各所に採光窓を取り入れた明るい室内です ・玄関にシューズクロークあり ・1・2階にトイレ・洗面台あり ・リビング横にキッズコーナーあり ・1階に約6帖の和室あり ▼設備 ・Panasonic製システムキッチン(食器洗浄乾燥機付) ・1620サイズの浴室(二面採光窓・浴室換気乾燥暖房機付) ■ ご希望の住まい探しをお手伝いします ━━━━━・・・ 物件の詳細・ご相談はお気軽にお問い合わせください。
| 所在地 | GoogleMaps |
| 価格 | 12,800万円 |
| 交通 | |
| その他費用 | - |
| 間取り | 3SLDK ※S・サービススペースは納戸です |
| 建物面積 | 165.82㎡(約50.16坪) |
| 土地面積 | 220.39㎡(約66.66坪) |
| 築年月 | 2012年07月築 |
| 建物構造 | 鉄筋コンクリート造2階建 |
| 現況 | 居住中 |
| 駐車場 | 有 |
| 土地権利 | 所有権 |
| 地目 | 宅地 |
| 接道状況 | 南東側: 約 5.7m (公道) |
| 建ぺい率 | 60% |
| 容積率 | 150% |
| 用途地域 | 第一種中高層住居専用地域 |
| 都市計画 | 市街化区域 |
| 備考 | 【付随建物】 ・種類:車庫 ・構造:鉄筋コンクリート造陸屋根平家建 ・床面積:27.38平米 |
| 引渡時期 | 相談 |
| 取引態様 | 仲介 |
| 更新日 | 2026年05月16日 |
| 次回更新予定 | 2026年05月30日 |
| 物件番号 | FSGBDA0A |
最新のAI技術を活用した相談サービスです。
お客様一人ひとりのニーズに合わせて最適な情報をご提供します。
リハウスAIチャットの詳しい説明はこちら
GoogleMaps
| スーパー | ボンラパス高宮店 約780m(徒歩10分) |
| 公園 | 上高宮南公園 約230m(徒歩3分) |
| 病院 | 福岡赤十字病院 約1060m(徒歩14分) |
| 小学校 | 西高宮小学校 約1100m(徒歩14分) |
| 中学校 | 高宮中学校 約1010m(徒歩13分) |
| その他利便施設1 | 福岡高宮郵便局 約580m(徒歩8分) |
| その他利便施設2 | 西日本シティ銀行高宮支店 約820m(徒歩11分) |
| その他利便施設3 | ドラッグ新生堂高宮駅前店 約720m(徒歩9分) |
| その他利便施設4 | セブンイレブン福岡高宮西店 約520m(徒歩7分) |
三井不動産リアルティ九州株式会社
国土交通大臣(2)第009717号
0120-914-031
0120-914-031
物件の売却をご検討の方は、 はやめの査定依頼がおすすめです!
買い替えをご検討の方はこちら0120-914-031

