大阪市生野区巽北2丁目
大阪メトロ千日前線 北巽駅 徒歩7分
5LDK
建物面積:123.52㎡
土地面積:59㎡
1998年04月築
3,450万円



| 物件種別 | 中古戸建 |
| 所在地 | GoogleMaps |
| 交通 | |
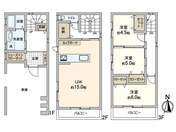
| 間取り | 3LDK |
| 建物面積 | 87.28㎡(約26.4坪) |
| 土地面積 | 49.85㎡(約15.07坪) ※別途私道約7.72㎡有 |
| 築年月 | 2020年04月築 |
返済計画を入力すると毎月のお支払い目安を表示できます
-物件のおすすめポイント- ▼立地 ・大阪メトロ千日前線「北巽」駅徒歩7分 ・近鉄難波・奈良線「今里」駅徒歩17分 ▼建物の特徴 ・2020年4月建築 ・専有面積87.28平米の3LDK ・ハイルーフ車駐車可能(車種による制限有) ・シューズインクローク有 ▼お部屋の特徴 ・南向きバルコニーにつき陽当たり良好 ・2.3階にバルコニー有 ▼設備 ・カップボード ・食器洗乾燥機 ・浴室暖房乾燥機 ▼周辺環境 ・北巽小学校 410m ・巽中学校 1040m ■ ご希望の住まい探しをお手伝いします ━━━━━・・・ 物件の詳細・ご相談はお気軽にお問い合わせください。
| 所在地 | GoogleMaps |
| 価格 | 3,450万円 |
| 交通 | |
| その他費用 | - |
| 間取り | 3LDK |
| 建物面積 | 87.28㎡(約26.4坪) |
| 土地面積 | 49.85㎡(約15.07坪) ※別途私道約7.72㎡有 |
| 築年月 | 2020年04月築 |
| 建物構造 | 木造3階建 |
| 現況 | 空家 |
| 駐車場 | - |
| 土地権利 | 所有権 |
| 地目 | 宅地 |
| 接道状況 | 南側: 約 4m (私道) |
| 建ぺい率 | 80% |
| 容積率 | 200% |
| 用途地域 | 準工業地域 |
| 都市計画 | 市街化区域 |
| 備考 | - |
| 引渡時期 | 相談 |
| 取引態様 | 仲介 |
| 更新日 | 2025年11月07日 |
| 次回更新予定 | 2025年11月21日 |
| 物件番号 | FSLAUA02 |
GoogleMaps
| スーパー | 万代巽北店 約450m(徒歩6分) |
| 公園 | 巽北さくら公園 約270m(徒歩4分) |
| 病院 | かねむらクリニック 約170m(徒歩3分) |
| 小学校 | 北巽小学校 約410m(徒歩6分) |
| 中学校 | 巽中学校 約1040m(徒歩13分) |
| その他利便施設1 | スギ薬局巽北店 約200m(徒歩3分) |
| その他利便施設2 | ファミリーマート北巽駅西店 約380m(徒歩5分) |
| その他利便施設3 | 生野北巽郵便局 約340m(徒歩5分) |
| その他利便施設4 | 生野区・子ども子育てプラザ 約410m(徒歩6分) |
| その他利便施設5 | 白菊幼稚園 約280m(徒歩4分) |
三井不動産リアルティ株式会社
国土交通大臣(15)第777号
0120-9881-77
0120-9881-77
物件の売却をご検討の方は、 はやめの査定依頼がおすすめです!
買い替えをご検討の方はこちら0120-9881-77
