大阪市東成区大今里1丁目
4,480万円



| 物件種別 | 中古戸建 |
| 所在地 | GoogleMaps |
| 交通 | |
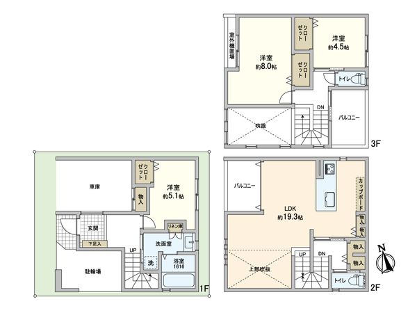
| 間取り | 3LDK |
| 建物面積 | 114.5㎡(約34.63坪) |
| 土地面積 | 61.55㎡(約18.61坪) ※別途私道約273.77㎡有 (共有持分 1/14) |
| 築年月 | 2012年12月築 |
この物件情報を共有する
おすすめポイント
設備
- 床暖房
- 浴室乾燥機
- 複層ガラス
- CATV
- TVモニタ付インターホン
- 食器洗乾燥機
特徴
- 開発分譲地内
- 吹抜け
■おすすめポイント■ ○ 平成24年12月築のオール電化住宅 ○ 3沿線が利用可能でアクセス良好 ・OsakaMetro今里筋線「今里」駅 ・OsakaMetro千日前線「今里」駅 ・近鉄奈良線・大阪線「今里」駅 ○ 吹き抜けがある明るく開放感のあるLDK ○ お手入れしやすいIHコンロ ○ トイレ2か所ございます ○ 床暖房有(リビング、キッチン) ○ 耐久性・断熱性・耐火性に優れた 旭化成パワーボード外壁 ○ 駐車スペース有(車種による) ○ LDK部分のバルコニーには電動シャッター付き ○ 収納量充実しております(各居室、車庫) ○ 今里小学校徒歩1分 ○ 室内丁寧に使用されております。
物件情報
| 所在地 | GoogleMaps |
| 価格 | 4,480万円 |
| 交通 | |
| その他費用 | - |
| 間取り | 3LDK |
| 建物面積 | 114.5㎡(約34.63坪) |
| 土地面積 | 61.55㎡(約18.61坪) ※別途私道約273.77㎡有 (共有持分 1/14) |
| 築年月 | 2012年12月築 |
| 建物構造 | 木造3階建 |
| 現況 | 居住中 |
| 駐車場 | 有 |
| 土地権利 | 所有権 |
| 地目 | 宅地 |
| 接道状況 | 西側: 約 4m (私道) |
| 建ぺい率 | 80%・80% |
| 容積率 | 300%・200% |
| 用途地域 | 近隣商業地域/第一種住居地域 |
| 都市計画 | 市街化区域 |
| 備考 | 近隣商業地域 容積率/300% (但し、前面道路幅員(m) ×6/10 × 100%に制限されます。)(加重平均) |
| 引渡時期 | 相談 |
| 取引態様 | 仲介 |
| 更新日 | 2026年04月26日 |
| 次回更新予定 | 2026年05月10日 |
| 物件番号 | FSLBCA06 |
この物件のことを
AIに聞いてみませんか?
最新のAI技術を活用した相談サービスです。
お客様一人ひとりのニーズに合わせて最適な情報をご提供します。
リハウスAIチャットの詳しい説明はこちら

周辺情報
GoogleMaps
| スーパー | サンディ今里店 約230m(徒歩3分) |
| 小学校 | 大阪市立今里小学校 約50m(徒歩1分) |
| 中学校 | 大阪市立本庄中学校 約620m(徒歩8分) |
| その他利便施設1 | 今里駅(OsakaMetro千日前線) 約400m(徒歩5分) |
| その他利便施設2 | 今里駅(OsakaMetro今里筋線) 約290m(徒歩4分) |
| その他利便施設3 | 今里駅(近鉄奈良線・大阪線) 約1150m(徒歩15分) |
| その他利便施設4 | ファミリーマート大今里一丁目店 約170m(徒歩3分) |
| その他利便施設5 | セブンイレブン大阪大今里1丁目店 約180m(徒歩3分) |
| その他利便施設6 | 大阪市東成区役所 約500m(徒歩7分) |
| その他利便施設7 | 東成大今里郵便局 約460m(徒歩6分) |
取扱店舗
- 営業時間
- 10:00~18:00
- 定休日
- 毎週火曜日・水曜日
- 住所
- 大阪府大阪市天王寺区上本町6-9-17上六日光ビル10F
三井不動産リアルティ株式会社
国土交通大臣(15)第777号
三井のリハウス 上本町センター
- 営業時間10:00~18:00
- 定休日毎週火曜日・水曜日
0120-9881-77
大阪市東成区の物件情報
この物件を見学してみませんか?
この物件についてお問い合わせ
物件・住環境の詳しい情報、購入・ローン相談など、ささいなことでもお気軽にお問い合わせください。三井のリハウス 上本町センター
- 営業時間10:00~18:00
- 定休日毎週火曜日・水曜日
0120-9881-77

物件の売却をご検討の方は、 はやめの査定依頼がおすすめです!
買い替えをご検討の方はこちら見学予約
お問い合わせ
0120-9881-77
- 営業時間 10:00~18:00
- 定休日 毎週火曜日・水曜日

