福岡市南区高宮4丁目
西鉄天神大牟田線 高宮駅 徒歩13分
4LDK
建物面積:149.89㎡
土地面積:280.99㎡
1982年01月築
7,500万円



| 物件種別 | 中古戸建 |
| 所在地 | GoogleMaps |
| 交通 | 西鉄天神大牟田線 高宮駅 バス25分 西花畑小学校 停歩3分 |
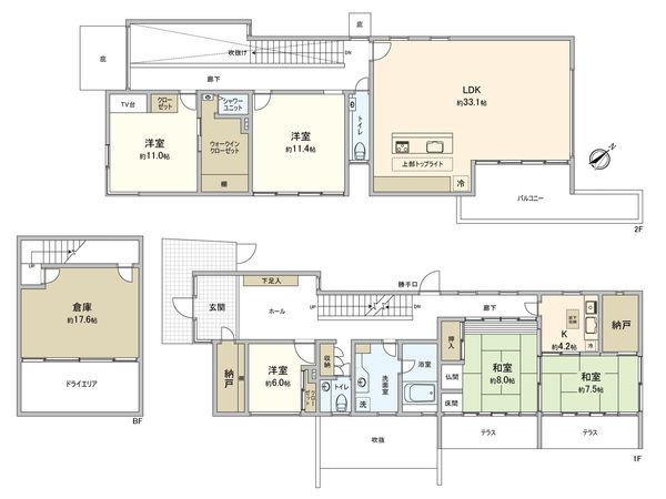
| 間取り | 5SLDK ※S・サービススペースは納戸です |
| 建物面積 | 261.35㎡(約79.05坪) |
| 土地面積 | 297.15㎡(約89.88坪) |
| 築年月 | 1998年04月築 |
予約制内覧会を開催します!
| 開催日 | 5月23日(土)11:00 ~ 17:00 5月24日(日)11:00 ~ 17:00 5月30日(土)11:00 ~ 17:00 5月31日(日)11:00 ~ 17:00 |
|---|
■ おすすめポイント━━━━・・・ ○ 水辺の畔のリゾート感溢れる注文住宅 ○ 総床面積 261.35平米(約79坪)の 大規模邸宅 ○ 敷地面積 約89坪 ○ 安心の鉄筋コンクリート造 ○ カーポート付き駐車場に複数台駐車可能 (4台程度) ○ キッチン2箇所で二世帯住居としても 利用可能です ○ 事務所兼用住宅としてもおすすめです ○ 玄関前に宅配ボックス有り ○ LDKは広々33帖超 ○ メインキッチンはアイランド型 ○ 2階洋室WIC内にシャワールーム有り ○ エントランス・ホールには、吹抜けがあり 開放感を感じられます ○ 陽当たり・通風・眺望良好 ○ 都市ガス利用可 ○ テレビモニタ付きインターホン ■ ライフインフォメーション━━━━━・・・ ○ マルキョウ桧原店まで約510m(徒歩7分) ○ 桧原桜公園まで約180m(徒歩3分) ○ 福岡桜町郵便局まで約330m(徒歩5分) ○ ドラッグストアコスモス桧原店まで約480m(徒歩6分) ○ セブンイレブン福岡桧原2丁目店まで約470m(徒歩6分) ○ 西花畑小学校まで約580m ○ 花畑中学校まで約580m
| 所在地 | GoogleMaps |
| 価格 | 7,500万円 |
| 交通 | 西鉄天神大牟田線 高宮駅 バス25分 西花畑小学校 停歩3分 |
| その他費用 | - |
| 間取り | 5SLDK ※S・サービススペースは納戸です |
| 建物面積 | 261.35㎡(約79.05坪) |
| 土地面積 | 297.15㎡(約89.88坪) |
| 築年月 | 1998年04月築 |
| 建物構造 | 鉄筋コンクリート造2階 地下1階建 |
| 現況 | 空家 |
| 駐車場 | 有 |
| 土地権利 | 所有権 |
| 地目 | 宅地 |
| 接道状況 | 南西側: 約 11.3m (公道) |
| 建ぺい率 | 50% |
| 容積率 | 80% |
| 用途地域 | 第一種低層住居専用地域 |
| 都市計画 | 市街化区域 |
| 備考 | - |
| 引渡時期 | 相談 |
| 取引態様 | 仲介 |
| 更新日 | 2026年05月21日 |
| 次回更新予定 | 2026年06月04日 |
| 物件番号 | FSMBDA05 |
最新のAI技術を活用した相談サービスです。
お客様一人ひとりのニーズに合わせて最適な情報をご提供します。
リハウスAIチャットの詳しい説明はこちら
GoogleMaps
| スーパー | マルキョウ桧原店 約510m(徒歩7分) |
| 公園 | 桧原桜公園 約180m(徒歩3分) |
| 小学校 | 西花畑小学校 約580m(徒歩8分) |
| 中学校 | 花畑中学校 約580m(徒歩8分) |
| その他利便施設1 | 福岡桜町郵便局 約330m(徒歩5分) |
| その他利便施設2 | ディスカウントドラッグコスモス桧原店 約480m(徒歩6分) |
| その他利便施設3 | セブンイレブン福岡桧原2丁目店 約470m(徒歩6分) |
0120-977-831
リノベーション工事の可能範囲については、本物件の管理組合規約等により一定の制限が加わる場合がございます。詳細については、工事内容の確定後に判明する部分もありますので、この点については事前にお含みおきください。
リノベーションに関するお問い合わせ0120-977-831
物件の売却をご検討の方は、 はやめの査定依頼がおすすめです!
買い替えをご検討の方はこちら0120-977-831

