宇治市木幡南山
4LDK/88.29㎡(約26.7坪)
1,480万円



物件情報
おすすめポイント
周辺情報
取扱店舗
| 物件種別 | 中古戸建 |
| 所在地 | GoogleMaps |
| 交通 | |
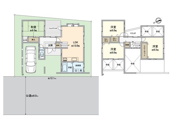
| 間取り | 4LDK |
| 建物面積 | 88.29㎡(約26.7坪) |
| 土地面積 | 111.12㎡(約33.61坪) |
| 築年月 | 2001年12月築 |
この物件情報を共有する
おすすめポイント
特徴
- 前面道路幅員6m以上
- 吹抜け
-物件のおすすめポイント- ▼立地 ・JR奈良線「木幡」徒歩9分 他 ・第一種低層住居専用地域 ▼特徴 ・LDKは3面、他居室は2面からの採光を確保 ・ご家族が憩うリビングは上部吹抜け仕様 ・コミュニケーションが育まれるリビング階段 ・キッチンと洗面室が近く、家事動線良好 ・和室は床の間付、客間としても活用可能 ・各洋室・和室・2階廊下に収納スペースを設置 ・前面道路は幅員約6mの公道、駐車場有(車種による) ▼周辺環境 ・ファミリーマート宇治木幡店 徒歩8分(約630m) ■ ご希望の住まい探しをお手伝いします ━━━━━・・・ 物件の詳細・ご相談はお気軽にお問い合わせください。
物件情報
| 所在地 | GoogleMaps |
| 価格 | 1,480万円 |
| 交通 | |
| その他費用 | - |
| 間取り | 4LDK |
| 建物面積 | 88.29㎡(約26.7坪) |
| 土地面積 | 111.12㎡(約33.61坪) |
| 築年月 | 2001年12月築 |
| 建物構造 | 木造2階建 |
| 現況 | 空家 |
| 駐車場 | 有 |
| 土地権利 | 所有権 |
| 地目 | 宅地 |
| 接道状況 | 北西側: 約 6m (公道) |
| 建ぺい率 | 50% |
| 容積率 | 80% |
| 用途地域 | 第一種低層住居専用地域 |
| 都市計画 | 市街化区域 |
| 備考 | - |
| 引渡時期 | 相談 |
| 取引態様 | 仲介 |
| 更新日 | 2026年04月18日 |
| 次回更新予定 | 2026年05月02日 |
| 物件番号 | FSXBAA05 |
この物件のことを
AIに聞いてみませんか?
最新のAI技術を活用した相談サービスです。
お客様一人ひとりのニーズに合わせて最適な情報をご提供します。
リハウスAIチャットの詳しい説明はこちら

周辺情報
GoogleMaps
| スーパー | フレスコ木幡店 約1200m(徒歩15分) |
| 小学校 | 宇治市立御蔵山小学校 約1200m(徒歩15分) |
| 中学校 | 宇治市立木幡中学校 約1100m(徒歩14分) |
| その他利便施設1 | 木幡駅(JR奈良線) 約720m(徒歩9分) |
| その他利便施設2 | 木幡駅(京阪宇治線) 約910m(徒歩12分) |
| その他利便施設3 | ファミリーマート宇治木幡店 約630m(徒歩8分) |
| その他利便施設4 | 宇治木幡郵便局 約850m(徒歩11分) |
取扱店舗
三井のリハウス 京都伏見センター
- 営業時間
- 10:00~18:00
- 定休日
- 毎週火曜日・水曜日
- 住所
- 京都府京都市伏見区観音寺町210-1 プリシード桃山御陵ビル1F
三井不動産リアルティ株式会社
国土交通大臣(15)第777号
三井のリハウス 京都伏見センター
- 営業時間10:00~18:00
- 定休日毎週火曜日・水曜日
0120-983-941
宇治市の物件情報
この物件を見学してみませんか?
この物件についてお問い合わせ
物件・住環境の詳しい情報、購入・ローン相談など、ささいなことでもお気軽にお問い合わせください。三井のリハウス 京都伏見センター
- 営業時間10:00~18:00
- 定休日毎週火曜日・水曜日
0120-983-941

物件の売却をご検討の方は、 はやめの査定依頼がおすすめです!
買い替えをご検討の方はこちら見学予約
お問い合わせ
0120-983-941
- 営業時間 10:00~18:00
- 定休日 毎週火曜日・水曜日

