世田谷区宇奈根2丁目
東急田園都市線 二子玉川駅 バス23分 永安寺前 停歩11分
3LDK
建物面積:114.77㎡
土地面積:135.54㎡
2007年06月築
7,380万円



| 物件種別 | 中古戸建 |
| 所在地 | GoogleMaps |
| 交通 | |
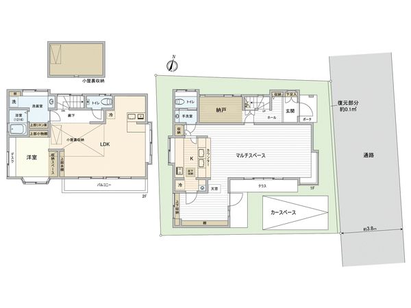
| 間取り | 1SLDK ※S・サービススペースは納戸です |
| 建物面積 | 100.19㎡(約30.3坪) |
| 土地面積 | 107.73㎡(約32.58坪) ※セットバック約0.08㎡を含む |
| 築年月 | 1983年09月築 |
-物件のおすすめポイント- ▼立地 ・京王線「桜上水」駅 徒歩15分 ・小田急線「経堂」駅 徒歩18分 ▼物件の特徴 ・第一種低層住居専用地域の閑静な住宅街 ・土地面積107.73平米(約32.58坪) ・建物面積100.19平米(約30.30坪) ・カースペース有り(車種による制限有り) ・1階は多目的に利用可能な明るく開放感のある空間 ・小規模店舗としても利用可(建築基準法に基づく運営可能な店舗の制限有り) ・1階キッチンはシンク2カ所、背面にも作業台有り ・南向きで陽当たり良好な1階テラス・2階バルコニー ・1階、2階共に南側、東側から陽が差し込む明るい空間 ▼周辺環境 ・世田谷区立八幡山小学校・・・・約790m(徒歩10分) ・世田谷区立緑丘中学校・・・・・約570m(徒歩8分) ・セブンイレブン世田谷桜上水1丁目店 ・・・・・・・・約370m(徒歩5分) ・ドラッグセイムス世田谷船橋店 ・・・・・・・・約410m(徒歩6分) ・世田谷桜上水一郵便局・・・・・約490m(徒歩7分) ・世田谷区立葭根公園・・・・・・約570m(徒歩8分) ・サミットストア世田谷船橋店・・約710m(徒歩9分) ・まいばすけっと経堂2丁目店・・約710m(徒歩9分) ■ご希望の住まい探しをお手伝いします ━━━━━ ・・・ 物件の詳細・ご相談はお気軽にお問い合わせください。
| 所在地 | GoogleMaps |
| 価格 | 7,380万円 |
| 交通 | |
| その他費用 | - |
| 間取り | 1SLDK ※S・サービススペースは納戸です |
| 建物面積 | 100.19㎡(約30.3坪) |
| 土地面積 | 107.73㎡(約32.58坪) ※セットバック約0.08㎡を含む |
| 築年月 | 1983年09月築 |
| 建物構造 | 木造2階建 |
| 現況 | 空家 |
| 駐車場 | 有 |
| 土地権利 | 所有権 |
| 地目 | 宅地 |
| 接道状況 | - |
| 建ぺい率 | 40% |
| 容積率 | 80% |
| 用途地域 | 第一種低層住居専用地域 |
| 都市計画 | 市街化区域 |
| 備考 | 1階南西側部分増築未登記あり 本物件は、建築基準法に定める道路に接道していないため原則として建物の建築・増築・改築はできません。 建築審査会の同意を得て建築基準法43条2項2号の許可を受けた場合には、建築物の建築・増築・改築が可能となります。 |
| 引渡時期 | 即時 |
| 取引態様 | 仲介 |
| 更新日 | 2026年04月05日 |
| 次回更新予定 | 2026年04月19日 |
| 物件番号 | FT6BDA03 |
最新のAI技術を活用した相談サービスです。
お客様一人ひとりのニーズに合わせて最適な情報をご提供します。
リハウスAIチャットの詳しい説明はこちら
GoogleMaps
| スーパー | サミットストア世田谷船橋店 約710m(徒歩9分) |
| スーパー | まいばすけっと経堂2丁目店 約710m(徒歩9分) |
| 公園 | 世田谷区立葭根公園 約570m(徒歩8分) |
| 小学校 | 世田谷区立八幡山小学校 約790m(徒歩10分) |
| 中学校 | 世田谷区立緑丘中学校 約570m(徒歩8分) |
| その他利便施設1 | セブンイレブン世田谷桜上水1丁目店 約370m(徒歩5分) |
| その他利便施設2 | ドラッグセイムス世田谷船橋店 約410m(徒歩6分) |
| その他利便施設3 | 世田谷桜上水一郵便局 約490m(徒歩7分) |
0120-78-4131
0120-78-4131
物件の売却をご検討の方は、 はやめの査定依頼がおすすめです!
買い替えをご検討の方はこちら0120-78-4131

