広島市西区竜王町
山陽本線 横川駅 徒歩19分
4LDK
建物面積:145.06㎡
土地面積:132.23㎡
2012年10月築
2,880万円



| 物件種別 | 中古戸建 |
| 所在地 | GoogleMaps |
| 交通 | 山陽本線 新井口駅 バス9分 田方が丘団地 停歩2分 |
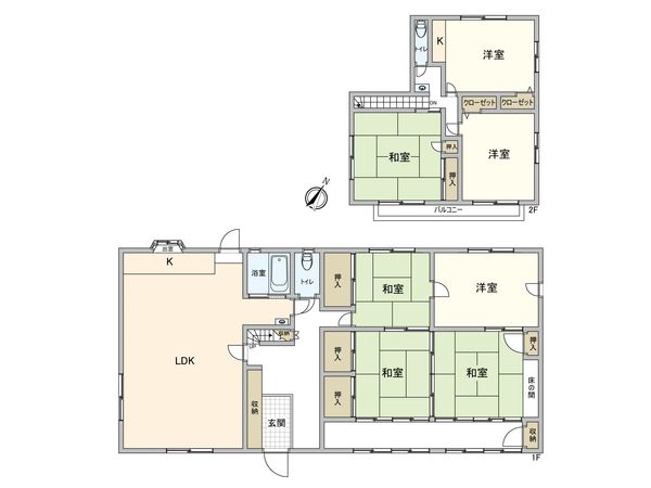
| 間取り | 7LDK |
| 建物面積 | 188.38㎡(約56.98坪) |
| 土地面積 | 325.7㎡(約98.52坪) |
| 築年月 | 1983年02月築 |
■おすすめポイント━━━━━━━━━━━━━━━・・・・・ 〇 閑静な住宅街 〇 7LDKの戸建 〇 高台のため日当たり・眺望等良好 〇 両面道路のため通風良好 〇 1階部分30坪越えのゆったりとしたスペース 〇 祝事等大人数の来客にも対応可能な続き間 〇 開放感溢れる広い庭 〇 水回りが一カ所にまとまった間取 〇 並列2台駐車可能な車庫(※車種によります)
| 所在地 | GoogleMaps |
| 価格 | 2,880万円 |
| 交通 | 山陽本線 新井口駅 バス9分 田方が丘団地 停歩2分 |
| その他費用 | - |
| 間取り | 7LDK |
| 建物面積 | 188.38㎡(約56.98坪) |
| 土地面積 | 325.7㎡(約98.52坪) |
| 築年月 | 1983年02月築 |
| 建物構造 | 軽量鉄骨造2階建 |
| 現況 | 空家 |
| 駐車場 | - |
| 土地権利 | 所有権 |
| 地目 | 宅地 |
| 接道状況 | 北東側: 約 14.8m (公道)、南西側: 約 6.4m (公道) |
| 建ぺい率 | 60% |
| 容積率 | 200% |
| 用途地域 | 第二種中高層住居専用地域 |
| 都市計画 | 市街化区域 |
| 備考 | 上記建物面積のうち地下車庫面積25.72㎡含む |
| 引渡時期 | 相談 |
| 取引態様 | 仲介 |
| 更新日 | 2026年04月11日 |
| 次回更新予定 | 2026年04月25日 |
| 物件番号 | FV2AUA06 |
最新のAI技術を活用した相談サービスです。
お客様一人ひとりのニーズに合わせて最適な情報をご提供します。
リハウスAIチャットの詳しい説明はこちら
GoogleMaps
| スーパー | マックスバリュー エクスプレス 草津南店 約2250m(徒歩29分) |
| 公園 | 田方第三公園 約440m(徒歩6分) |
| 小学校 | 広島市立古田台小学校 約1050m(徒歩14分) |
| 中学校 | 広島市立古田中学校 約1100m(徒歩14分) |
| その他利便施設1 | ローソン広島田方橋店 約730m(徒歩10分) |
三井不動産リアルティ中国株式会社
国土交通大臣(7)第5169号
0120-321-756
リノベーション工事の可能範囲については、本物件の管理組合規約等により一定の制限が加わる場合がございます。詳細については、工事内容の確定後に判明する部分もありますので、この点については事前にお含みおきください。
リノベーションに関するお問い合わせ0120-321-756
物件の売却をご検討の方は、 はやめの査定依頼がおすすめです!
買い替えをご検討の方はこちら0120-321-756

