広島市西区井口4丁目
広島電鉄宮島線 修大協創中高前駅 徒歩10分
3SLDK
建物面積:104.59㎡
土地面積:118.11㎡
2023年10月築
4,150万円



| 物件種別 | 中古戸建 |
| 所在地 | GoogleMaps |
| 交通 | |
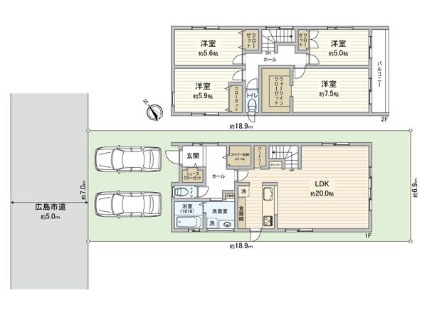
| 間取り | 4LDK |
| 建物面積 | 112.82㎡(約34.12坪) |
| 土地面積 | 148.56㎡(約44.93坪) |
| 築年月 | 2024年04月築 |
■おすすめポイント━━━━━━━━━━━━━━━・・・・・ 〇 令和6年4月完成の未入居戸建 〇 オール電化住宅 〇 LDKは広々約20帖の4LDK 〇 Panasonic製品を多数採用しています ・キッチン、ユニットバス、トイレ、扉、床材等を採用 〇 ご家族との会話がはずむ対面キッチン 〇 タッチレスの水栓となります 〇 収納力が非常に充実しています シューズクローゼット、ファミリー収納、パントリー、食器棚等 〇 洗面室にはタオルや洋服等の収納に便利な可動棚あり 〇 バルコニーは南東向きのため室内の日当たりが良いです 〇 南側はひな壇になっており、眺望、日当り、風通し良好 〇 2階からは瀬戸内海が望めます
| 所在地 | GoogleMaps |
| 価格 | 4,150万円 |
| 交通 | |
| その他費用 | - |
| 間取り | 4LDK |
| 建物面積 | 112.82㎡(約34.12坪) |
| 土地面積 | 148.56㎡(約44.93坪) |
| 築年月 | 2024年04月築 |
| 建物構造 | 木造2階建 |
| 現況 | 空家 |
| 駐車場 | - |
| 土地権利 | 所有権 |
| 地目 | 宅地 |
| 接道状況 | - |
| 建ぺい率 | 50% |
| 容積率 | 100% |
| 用途地域 | 第一種低層住居専用地域 |
| 都市計画 | 市街化区域 |
| 備考 | - |
| 引渡時期 | 即時 |
| 取引態様 | 仲介 |
| 更新日 | 2026年04月17日 |
| 次回更新予定 | 2026年05月01日 |
| 物件番号 | FV2BCA04 |
最新のAI技術を活用した相談サービスです。
お客様一人ひとりのニーズに合わせて最適な情報をご提供します。
リハウスAIチャットの詳しい説明はこちら
GoogleMaps
| スーパー | マックスバリュエクスプレス藤垂園店 約1270m(徒歩16分) |
| 公園 | 井口第一公園 約90m(徒歩2分) |
| 小学校 | 広島市立井口小学校 約1560m(徒歩20分) |
| 中学校 | 広島市立井口中学校 約2190m(徒歩28分) |
| その他利便施設1 | セブンイレブン広島井口4丁目店 約750m(徒歩10分) |
三井不動産リアルティ中国株式会社
国土交通大臣(7)第5169号
0120-321-756
0120-321-756
物件の売却をご検討の方は、 はやめの査定依頼がおすすめです!
買い替えをご検討の方はこちら0120-321-756

